|
|
|
Home | Forums |
Downloads | Gallery |
News & Articles | Resources |
Jobs | FAQ |
| Join |
Welcome !
|
52 Users Online (50 Members):
Show Users Online
- Most ever was 626 - Mon, Jan 12, 2015 at 2:00:17 PM |
Forums
|
Forums >> Revit Building >> Technical Support >> 2009-Resizing crop region of Callout & Broken Patterns
|
|
|
active

Joined: Sat, Mar 19, 2005
157 Posts
 |
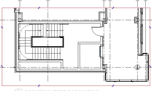
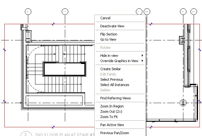
Hi all I have used a detail callout in the floor plan and did a lot of detailing in the callout, now I want to resize the callout, but couldn't, when I select the callout I can see the grip points on all 4 sides, but when I try to drag them they are again coming back to the same location. When I open the callout and select the crop region and right click it, I neither can see the delete button highlighted(See Attchment 2) nor the grip points(See Attchment 1). Another issue is in the same project some of my fill patterns(Concrete) are broken in one view(Section) where as they are fine in all other views with the same scale and I also tried apply template too. See Attchment 3 there are 2 diif views. I have never faced this kind of problems in my 6 years experience in revit projects. Do anyone have the solution??? Thanks in advance.
-----------------------------------
Pavan Reddy
Revit Manager
Intelligence is not always knowing the answers, it's always asking the questions. |
This user is offline |
|
 | |
|
|
active
Joined: Tue, Apr 12, 2005
1310 Posts
 |
With regard to the callout, it may be that it's pinned. You can't resize it if it is pinned, either in the view or on the callout bubble. I'm not sure what you mean about the fill regions - they appear fine in the view that you posted.
|
This user is offline |
View Website
|
 |
|
active

Joined: Sat, Mar 19, 2005
157 Posts
 |
No the callout is not pinned, if pinned you can't even see the grip points for the the same in the floor plan. Regarding the fill patterns in the left side view there are traingles in the Concrete pattern, but not in the right side view, looks like broken.
-----------------------------------
Pavan Reddy
Revit Manager
Intelligence is not always knowing the answers, it's always asking the questions. |
This user is offline |
|
 |
|
active

Joined: Sat, Mar 19, 2005
157 Posts
 |
got answer...the callout is linked with the scope box...I kept none for the scope box then it worked.
-----------------------------------
Pavan Reddy
Revit Manager
Intelligence is not always knowing the answers, it's always asking the questions. |
This user is offline |
|
 |
 |
Similar Threads |
|
Crop region not affecting grid lines |
Revit Building >> Technical Support
|
Tue, Oct 19, 2010 at 4:00:29 PM
|
1
|
|
callouts and crop regions |
Revit Building >> Technical Support
|
Thu, Oct 29, 2009 at 8:31:28 AM
|
1
|
|
Crop Regions, Keynotes & Room Tags |
Revit Building >> Technical Support
|
Sun, Dec 31, 2006 at 7:12:23 PM
|
4
|
|
Revit 2009-Crop Region and Show Crop Buttons Disappeared |
Revit Building >> Technical Support
|
Thu, Jun 25, 2009 at 2:09:47 PM
|
3
|
|
Crop region size for 3d image |
Revit Building >> Technical Support
|
Thu, Apr 17, 2014 at 6:54:27 AM
|
1
|
 |
|
Site Stats
Members: | 2161655 | Objects: | 23325 | Forum Posts: | 152479 | Job Listings: | 3 |
|