|
|
|
Home | Forums |
Downloads | Gallery |
News & Articles | Resources |
Jobs | FAQ |
| Join |
Welcome !
|
46 Users Online (44 Members):
Show Users Online
- Most ever was 626 - Mon, Jan 12, 2015 at 2:00:17 PM |
Forums
|
Forums >> Revit Building >> Technical Support >> How to create Thermal insulated wall?
|
|
|
active
Joined: Tue, Apr 12, 2005
1310 Posts
 |
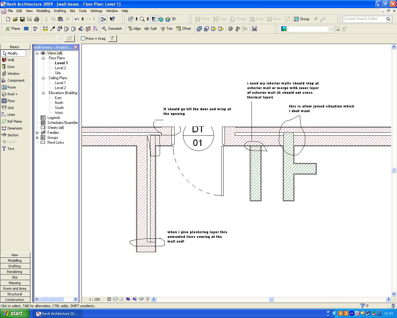
With respect to the plaster, how does this work in real life? If your external skin is built off the floor slab then you would see the floor slab, unless it is plasters over. You can use the Linework tool to hide the line if you wish.
|
This user is offline |
View Website
|
 | |
|
|
active
Joined: Fri, Feb 9, 2007
56 Posts No Rating |
hi tim, In real life the slab line will be covered with plastering, but here in revit we should not do i think because while dimensioning i am facing lot of problems, so i will offset the floor slab little within the wall! do u think this will also be a problem? In futureDoing line work is also not a bad idea’s may allocate few more hours for that. is this the way everyone work in revit? Thank you push
|
This user is offline |
|
 |
|
active
Joined: Tue, Apr 12, 2005
1310 Posts
 |
I try to do the model the way it is in real life, which is what you have done. If the dimensioning is the problem, there are tools to ensure that you dimension to the correct line. I asume that you want to dimension to the masonry line and not the plaster line - use the tab button to find the correct line.
|
This user is offline |
View Website
|
 |
|
active
Joined: Fri, Feb 9, 2007
56 Posts No Rating |
hi please refer the 2 attached images, yes i got ur point there is no issue in dimensioning its only with wrapping...........so i gone without plastering and i need to spend more time in elevation to hide unwanted lines which i think will be lesser then to correct theses all junctions in floor plan.............need ur views about it.thank you
|
This user is offline |
|
 |
|
site moderator|||
Joined: Tue, May 16, 2006
13079 Posts
 |
You need to learn your wall-cleanup rules. Look in your HELP using cleanup and read this to start: Applying a Function to a Layer of a Compound Structure
|
This user is offline |
|
 |
 |
Similar Threads |
|
Wall type transition |
Revit Building >> Technical Support
|
Tue, Oct 26, 2010 at 9:56:12 AM
|
3
|
|
Curtain wall Panels Pre-delevoped Adding a Door or Window? |
Revit Building >> Technical Support
|
Fri, Jan 20, 2012 at 7:55:06 AM
|
1
|
|
Choosing a Thermal Imaging Overlay |
Revit Building >> Technical Support
|
Sat, Oct 25, 2025 at 11:03:32 PM
|
0
|
|
Rigid Insulation |
General Discussion >> Wishlist
|
Thu, Jan 10, 2008 at 8:33:53 AM
|
0
|
|
Custom Physical and Thermal assets |
Revit Building >> Technical Support
|
Sun, Jul 9, 2017 at 10:14:57 AM
|
1
|
 |
|
Site Stats
Members: | 2161655 | Objects: | 23325 | Forum Posts: | 152479 | Job Listings: | 3 |
|