RevitCity.com Logo

Home  |  Forums  |  Downloads  |  Gallery  |  News & Articles  |  Resources  |  Jobs  |  FAQ  |  SearchSearch  |  Join  |  LoginLogin

Welcome !

55 Users Online (53 Members): Show Users Online - Most ever was 626 - Mon, Jan 12, 2015 at 2:00:17 PM

 

Sponsored Ads

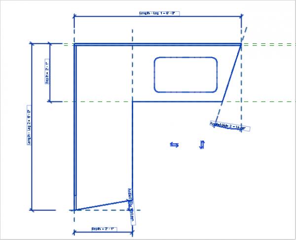
Counter L-shapped with Angled Ends and Toggle Sink Hole

Login or Join to download.

14422 Downloads

No Rating

Counter L-shapped with Angled Ends and Toggle Sink Hole

This is the standard L counter family that I modified to be able to hide the sink hole and to angle the sides independantly.  This will let you have more counter options or splice between families using 45 degree angle or other.

CSI Division: 09 06 00 Schedules for Finishes
RevitCity Division: Casework > Domestic Kitchen

Product Version: Revit Architecture 2013

Uploaded By: amelamed
Uploaded On: Mon, Apr 8, 2013
Original Creator: Alex from Green Generation Building

Login or Join to download.


Comments

Wed, Sep 14, 2022 at 9:46:26 PM

#1

jbemory

active

Joined Thu, Mar 21, 2013
5 Stars from 1 Votes

This user is offline

Can you make it so the counter edges are "square to the world" and Filletable for radius?  Sink size editable?  Back Splash size editable?

 

Thank You


Add a Comment

Site Stats

Members:

2161655

Objects:

23325

Forum Posts:

152479

Job Listings:

3

Sponsored Ads

Home | Forums | Downloads | Gallery | News & Articles | Resources | Jobs | Search | Advertise | About RevitCity.com | Link To Us | Site Map | Member List | Firm List | Contact Us

Copyright 2003-2010 Pierced Media LC, a design company. All Rights Reserved.

Page generation time: 0.9185

Login

User Name:

Password:

Remember Me  

Forgot Password?