|
|
|
Home | Forums |
Downloads | Gallery |
News & Articles | Resources |
Jobs | FAQ |
| Join |
Welcome !
|
39 Users Online (37 Members):
Show Users Online
- Most ever was 626 - Mon, Jan 12, 2015 at 2:00:17 PM |
Forums
|
Forums >> Revit Building >> Technical Support >> a roof question...
|
|
|
active
Joined: Thu, Nov 29, 2007
43 Posts No Rating |
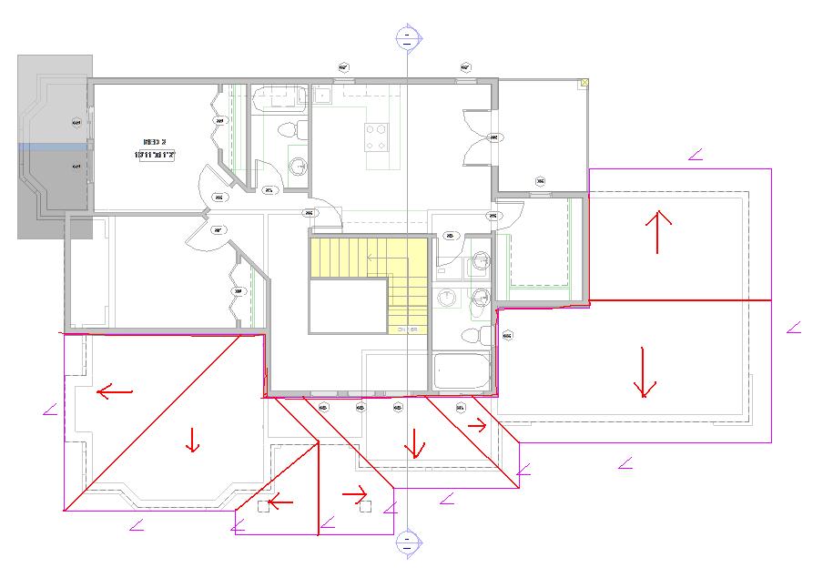
I am trying to draw the main flkoor roof, and have it meet the second floor walls. I have included a pic. the lines in red are what i would like the ridges to do. i know in the software we are converting from, we would draw lines around the second floor walla (where we want the roof to end). and then make them barge's. then when we generate the roof all the slopes would meet at the second floor walls. any help would be greatly appreciated. Thanks Tim
-----------------------------------
Revit user since 2008. |
This user is offline |
|
 | |
|
|
active
Joined: Thu, Nov 29, 2007
43 Posts No Rating |
i couldn't figure out how to edit my original post. i forgot to say that i un-checked the define slope box for all the purple roof lines that follow the second floor walls. but revit said it couldn't generate the roof. thanks again Tim
-----------------------------------
Revit user since 2008. |
This user is offline |
|
 |
|
site moderator|||

Joined: Fri, Feb 10, 2006
1874 Posts
 |
check this tutorial from CadClips it may be of help http://www.cadclips.com/downloads/CADCLIP-REV-VARYING-ROOF-PLATES.wmv HTH
-----------------------------------
best regards, coreed,aia bmpArchitects,Inc. "Revit has to be implemented, Not installed." Long Live Revit |
This user is offline |
|
 |
|
active
Joined: Mon, Jul 4, 2005
137 Posts
 |
Uncheck the pitch for the front rake of the porch and side rake of the garage and align eaves, should work.
|
This user is offline |
|
 |
|
active
Joined: Thu, Nov 29, 2007
43 Posts No Rating |
thanks guys, for the help. finally got it figured. thanks for the suggestions, will keep them in mind. Tim
-----------------------------------
Revit user since 2008. |
This user is offline |
|
 |
 |
Similar Threads |
|
Extruded roof - fascia - (Newbie question) |
Revit Building >> Technical Support
|
Wed, Jul 5, 2017 at 8:12:43 PM
|
13
|
|
Roof Question |
Revit Building >> Technical Support
|
Wed, Sep 20, 2017 at 10:13:43 AM
|
2
|
|
Revit 2013 Roof Question |
Revit Building >> Technical Support
|
Fri, Jul 13, 2012 at 7:43:31 PM
|
1
|
|
Roof question |
General Discussion >> Revit Project Management
|
Mon, Apr 28, 2008 at 1:30:48 PM
|
1
|
|
another double pitch roof question! |
Revit Building >> Technical Support
|
Thu, Jun 14, 2007 at 10:42:50 AM
|
6
|
 |
|
Site Stats
Members: | 2161655 | Objects: | 23325 | Forum Posts: | 152479 | Job Listings: | 3 |
|