|
|
|
Home | Forums |
Downloads | Gallery |
News & Articles | Resources |
Jobs | FAQ |
| Join |
Welcome !
|
74 Users Online (73 Members):
Show Users Online
- Most ever was 626 - Mon, Jan 12, 2015 at 2:00:17 PM |
Forums
|
Forums >> Revit Building >> Technical Support >> Revit Architecture 2008 - Foundation Wall Tool works funny
|
|
|
active
Joined: Fri, Sep 29, 2006
32 Posts No Rating |
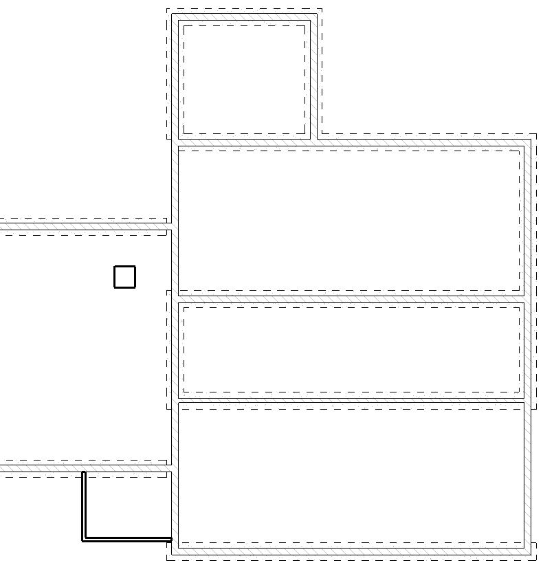
Does anybody have an idea what can be hapening with my foundation walls? They don't display the full length of the wall they belong to (see image). This is suppose to be a "staight forward" command, Under "Structure" you select "Foundation" then "Wall" and you pick your wall and the footing should show under your wall, but for some reason is being cut at the intersection with other walls. I have been playing with "Edit Wall Joins" but no results. Any ideas?
|
This user is offline |
|
 | |
|
|
site moderator|||

Joined: Mon, Mar 14, 2005
777 Posts
 |
I tried to duplicate this but it is working fine for me. have you changed anything in the properties? what if you click on the missing wall section again? what if you do the perimeter and than the inside walls?
-----------------------------------
Integrator Architectural Engineering Construction KarelCAD |
This user is offline |
View Website
|
 |
|
active
Joined: Fri, Sep 29, 2006
32 Posts No Rating |
If I try to click in the missing section again there is nothing there (only can pick the wall). If I erase the inside walls the footing shows fine, but when I draw the inside walls again isome areas disappear. I haven't change any settings (that I know) I am using a standard cmu wall. My file is quite heavy now but maybe I can make a copy of these objects if you want to take a look at it (if you have the time, of course). Please let me know. Thanks
|
This user is offline |
|
 |
|
site moderator|||

Joined: Mon, Mar 14, 2005
777 Posts
 |
if you can make a copy and delete everything else. try and make it as small as possible and i'll have a look when i get a minute (or two)
-----------------------------------
Integrator Architectural Engineering Construction KarelCAD |
This user is offline |
View Website
|
 |
 |
Similar Threads |
|
wall foundation issues |
Revit Building >> Technical Support
|
Fri, Jan 25, 2013 at 12:15:18 PM
|
4
|
|
Foundation walls in elevation |
Revit Building >> Technical Support
|
Sun, May 22, 2005 at 8:46:49 PM
|
4
|
|
Wall/Site join |
Revit Building >> Technical Support
|
Fri, Aug 22, 2008 at 10:39:41 AM
|
3
|
|
Raft Foundation Sweeps |
Revit Building >> Technical Support
|
Wed, Feb 13, 2008 at 8:10:08 AM
|
2
|
|
Crashes with Architecture 2008 |
Revit Building >> Technical Support
|
Mon, Oct 22, 2007 at 6:48:44 PM
|
12
|
 |
|
Site Stats
Members: | 2161655 | Objects: | 23325 | Forum Posts: | 152479 | Job Listings: | 3 |
|