|
|
|
Home | Forums |
Downloads | Gallery |
News & Articles | Resources |
Jobs | FAQ |
| Join |
Welcome !
|
49 Users Online (47 Members):
Show Users Online
- Most ever was 626 - Mon, Jan 12, 2015 at 2:00:17 PM |
Forums
|
Forums >> Revit Building >> Technical Support >> High window visibility in plan
|
|
|
active
Joined: Sun, Feb 25, 2007
45 Posts No Rating |
I have a window that is above the cut plane of a floor. However, I want to show the location of the window on the plan. Is there a way to do this with visibility or view range settings? If not, does anyone have a good suggestion how to do this? I tried model lines, but they get over drawn by the wall and don't show up. Thanks for any help.
|
This user is offline |
|
 | |
|
|
active
Joined: Fri, Dec 12, 2003
168 Posts
 |
YOu use a plan region. Go to the view toolbar, click plan region draw a box where the windows are. Then select the properties of this and adjust the view range. this affects just this area.
|
This user is offline |
|
 |
|
active
Joined: Sun, Feb 25, 2007
45 Posts No Rating |
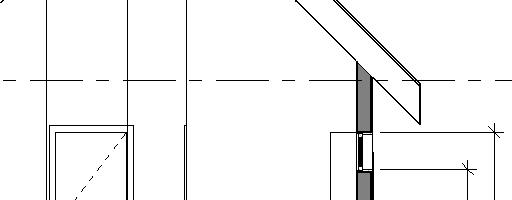
While the plan region worked fine, I came across this as I continued working. See attached files. Here are two different windows, both above the cut plane. One window shows in the plan, while the other does not. I've attached the plan views and the section views as well as my view range settings. Can anyone explain? I would prefer the windows above the cut plane to show as they do in the view that you can see them, as opposed to making a view region.
|
This user is offline |
|
 |
|
active
Joined: Sun, Feb 25, 2007
45 Posts No Rating |
sorry for the poor images, I'll work on some better ones.
|
This user is offline |
|
 |
|
active
Joined: Sun, Feb 25, 2007
45 Posts No Rating |
Here are better images...
|
This user is offline |
|
 |
 |
Similar Threads |
|
Window Visibility in Plan View |
Revit Building >> Technical Support
|
Wed, Apr 20, 2016 at 9:31:05 AM
|
14
|
|
Showing High Windows Cut In Plan |
Community >> Newbies
|
Mon, May 28, 2007 at 3:09:47 PM
|
1
|
|
Cheating a Floor Plan Cut |
Revit Building >> Technical Support
|
Mon, Jul 26, 2010 at 5:53:23 PM
|
5
|
|
window head showing in floor plan [ 1 2 ] |
Revit Building >> Technical Support
|
Fri, Apr 29, 2011 at 1:51:22 PM
|
16
|
|
SECTION CUT VISIBILITY ISSUES WITH WINDOWS |
Revit Building >> Technical Support
|
Wed, Feb 3, 2016 at 11:28:10 AM
|
9
|
 |
|
Site Stats
Members: | 2161655 | Objects: | 23325 | Forum Posts: | 152479 | Job Listings: | 3 |
|