|
|
|
Home | Forums |
Downloads | Gallery |
News & Articles | Resources |
Jobs | FAQ |
| Join |
Welcome !
|
62 Users Online (60 Members):
Show Users Online
- Most ever was 626 - Mon, Jan 12, 2015 at 2:00:17 PM |
Forums
|
Forums >> Revit Structure >> Technical Support >> Crop hiding dimensions
|
|
|
active
Joined: Fri, Jun 22, 2007
62 Posts
 |
Revit Structure 2008. For addendums and sketches we started duplicating as dependant. Then drag the view onto a new sketch border. But after adjusting the crop to focus on the changed area, if the crop crossed a dimension it automatically hides it. Is there a toggle to turn this off or an easy work-around? I thought about drawing detail lines and arrows but because it's dependant those detail lines and arrows show on the final view. I hope this makes sense. If not, then let me know and I'll try to explain this better. Thanks in advance.
|
This user is offline |
|
 | |
|
|
active
Joined: Tue, Jun 29, 2004
543 Posts
 |
Maybe just a screenshot with an arrow pointing to the culprit 
|
This user is offline |
View Website
|
 |
|
active
Joined: Fri, Jun 22, 2007
62 Posts
 |
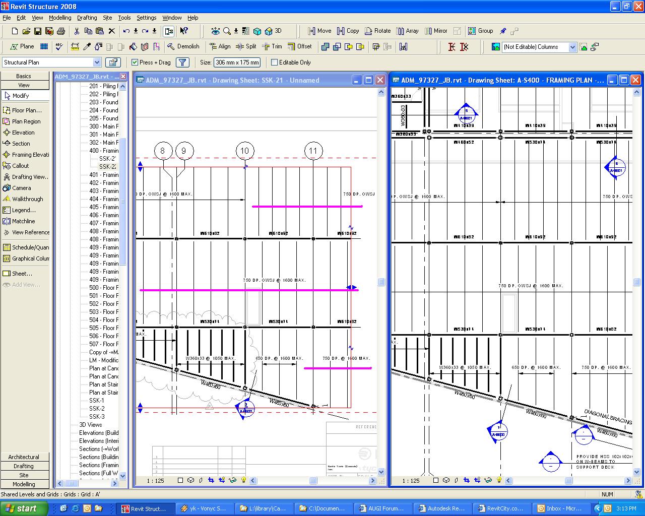
Here's a screen capture of the problem. Let me explain what I was trying to do. I have a plan showing the layout of joists. I've then taken a dimension with tiny text (cause you can't override dim text) and shown the span of the joists. Then with text, I've written the type of joists and the spacing. eg: 750 DP OWSJ @ 1200 MAX. The dimension line is very long because all the joists are the same along that line. But if I crop across that line it disappears. This is really for an Addendum which is supposed to be snapshot of the actual drawing so that is why I'm concerned. Thanks for your help, I appreciate it! JB
|
This user is offline |
|
 |
|
active
Joined: Tue, May 2, 2006
15 Posts No Rating |
maybe I don't quite know what your talking about but try going into view properties and uncheck text crop about half way down. It got me for a while. Hope this helps
|
This user is offline |
|
 |
|
active
Joined: Tue, Jun 29, 2004
543 Posts
 |
I have read of someone creating their own dimension style in the family editor. It shouldn't be too hard to do. You have your constraints to set extension lines, create tick marks or arrows or whatever you want. Slight problem will be the text though. Need to import that from a dxf/dwg file, which is a little work, but it's possible.
|
This user is offline |
View Website
|
 |
 |
Similar Threads |
|
Crop hiding dimensions |
Revit Building >> Technical Support
|
Mon, Jul 9, 2007 at 3:32:51 PM
|
13
|
|
Hiding specific dimensions |
Revit Structure >> Technical Support
|
Mon, Jun 10, 2013 at 7:20:50 AM
|
1
|
|
dimensions on plot sheet with reference to whats inside a view crop region |
Revit Building >> Technical Support
|
Wed, Apr 18, 2007 at 10:18:33 PM
|
2
|
|
Dimensions & Crop Regions |
Revit Building >> Technical Support
|
Mon, Sep 18, 2006 at 9:56:41 PM
|
2
|
|
Crop Regions can't crop imported images |
Revit Building >> Technical Support
|
Mon, May 5, 2008 at 2:25:13 AM
|
1
|
 |
|
Site Stats
Members: | 2161655 | Objects: | 23325 | Forum Posts: | 152479 | Job Listings: | 3 |
|