RevitCity.com Logo

Home  |  Forums  |  Downloads  |  Gallery  |  News & Articles  |  Resources  |  Jobs  |  FAQ  |  SearchSearch  |  Join  |  LoginLogin

Welcome !

27 Users Online (25 Members): Show Users Online - Most ever was 626 - Mon, Jan 12, 2015 at 2:00:17 PM

 

Forums

Forums >> Revit Building >> Technical Support >> Rotating a Callout on a Sheet?

Search this ThreadSearch this Thread | Page 1 of 1 |

Mon, Jul 2, 2007 at 12:17:21 PM | Rotating a Callout on a Sheet?

#1

DLicata


active
DLicata Avatar

Joined: Mon, Apr 2, 2007
278 Posts
3.5 Stars: 7 Votes


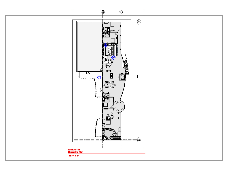
Just like the title says.  I have a callout plan that I put on a sheet but its really tall and I want to scale it up so you can see everything in the plan better.  Is there any way I can rotate the callout on the sheet and then scale it up so it all fits on the sheet?  Thanks guys.

Attached Images

25062_Sheet_Help_copy.jpg

-----------------------------------

 LHAA

 Licata Hansen Associates Architecture

Reno, NV USA

This user is offline

View Website

Mon, Jul 2, 2007 at 12:22:15 PM | Rotating a Callout on a Sheet?

#2

DLicata


active
DLicata Avatar

Joined: Mon, Apr 2, 2007
278 Posts
3.5 Stars: 7 Votes


Nevermind I figured it out! Thanks tho!


-----------------------------------

 LHAA

 Licata Hansen Associates Architecture

Reno, NV USA

This user is offline

View Website

Search this ThreadSearch this Thread | Page 1 of 1 |



Similar Threads

Thread/Thread Starter

Forum

Last Post

Replies

Rotating Views On a Sheet [ 1 2 ]

Revit Building >> Technical Support

Tue, Jun 17, 2008 at 12:49:46 AM

18

Rotating details on sheets without rotating their callouts in plan

Revit Building >> Technical Support

Wed, Dec 10, 2008 at 5:28:37 PM

3

Rotating Views on a Sheet -180

Revit Building >> Technical Support

Tue, Nov 5, 2013 at 9:44:26 AM

9

Callout sheet number breaking

Revit Building >> Technical Support

Wed, Jan 6, 2021 at 8:07:46 AM

2

Rotating Views on Sheet

Revit Systems >> Technical Support

Tue, Jan 19, 2010 at 12:30:55 PM

2

Site Stats

Members:

2161655

Objects:

23325

Forum Posts:

152479

Job Listings:

3

Sponsored Ads

Home | Forums | Downloads | Gallery | News & Articles | Resources | Jobs | Search | Advertise | About RevitCity.com | Link To Us | Site Map | Member List | Firm List | Contact Us

Copyright 2003-2010 Pierced Media LC, a design company. All Rights Reserved.

Page generation time: 0.2399

Login

User Name:

Password:

Remember Me  

Forgot Password?

Search Forums

Advanced Search

Search Forums

Advanced Search


Clear Highlights


Clear Highlights