|
|
|
Home | Forums |
Downloads | Gallery |
News & Articles | Resources |
Jobs | FAQ |
| Join |
Welcome !
|
42 Users Online (40 Members):
Show Users Online
- Most ever was 626 - Mon, Jan 12, 2015 at 2:00:17 PM |
Forums
|
Forums >> Revit Building >> Technical Support >> Doors IN Demo Plan
|
|
|
active
Joined: Fri, Sep 8, 2006
23 Posts
 |
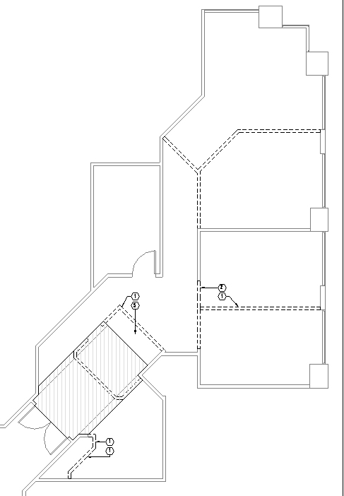
I'm trying to create a Demolition Plan using our firm's standards but I'm having a bit of trouble. I can't get the doors and door swings to show up when the Demo filter is applied. All it shows are dashed lines, for the demo'd walls. (See attached photo) Any idea how to get the doors AND door swings to show up. Ideally, I would want them to be dashed lines...just like the demo'd walls. Any help would be great! THANKS!
|
This user is offline |
|
 | |
|
|
active

Joined: Sun, Nov 27, 2005
298 Posts
 |
Make sure that you have the phase setting correct. It sounds like you have the doors on the wrong phase or the view on the wrong phase. View phase should be new , doors and walls to be removed should be on existing.
----------------------------------- BallewDesigns.com |
This user is offline |
View Website
|
 |
 |
Similar Threads |
|
New Door Cuts in the Demo Plan |
Revit Building >> Technical Support
|
Wed, May 22, 2013 at 3:21:44 PM
|
7
|
|
Hiding Demo'd Garage Doors |
Revit Building >> Technical Support
|
Wed, Aug 10, 2005 at 8:02:23 PM
|
6
|
|
Legend for Demo Plan |
Revit Building >> Technical Support
|
Thu, May 2, 2013 at 3:51:18 PM
|
7
|
|
Revit 2013 - DEMO DOORS |
Revit Building >> Technical Support
|
Mon, Jun 17, 2013 at 7:28:45 AM
|
2
|
|
Copying doors from one phase to another |
Revit Building >> Technical Support
|
Thu, Feb 7, 2008 at 2:29:40 PM
|
0
|
 |
|
Site Stats
Members: | 2161655 | Objects: | 23325 | Forum Posts: | 152479 | Job Listings: | 3 |
|