RevitCity.com Logo

Home  |  Forums  |  Downloads  |  Gallery  |  News & Articles  |  Resources  |  Jobs  |  FAQ  |  SearchSearch  |  Join  |  LoginLogin

Welcome !

66 Users Online (64 Members): Show Users Online - Most ever was 626 - Mon, Jan 12, 2015 at 2:00:17 PM

 

Forums

Forums >> Revit Building >> Technical Support >> Section Sheet: Getting levels to line up

Search this ThreadSearch this Thread | Page 1 of 1 |

Tue, Mar 27, 2007 at 1:12:00 PM | Section Sheet: Getting levels to line up

#1

tim1424


active

Joined: Tue, Mar 6, 2007
46 Posts
No Rating


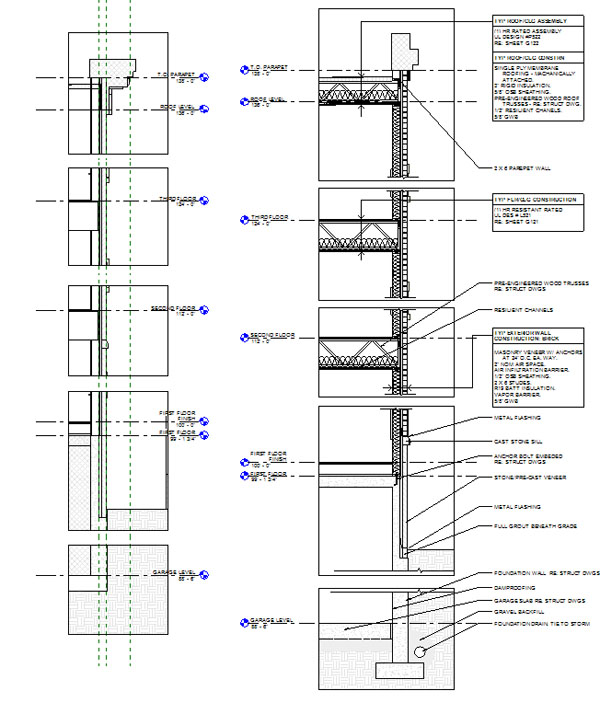
I am trying to get my levels to line up from "split wall section" to "split wall section" on my wall section sheet but I can't seem to get it.  Any help?  Thanks in advance!



Attached Images

21758_section.jpg

This user is offline

 

Wed, Mar 28, 2007 at 8:05:41 AM | Section Sheet: Getting levels to line up

#2

robinballew


active
robinballew Avatar

Joined: Sun, Nov 27, 2005
298 Posts
3 Stars: 4 Votes


when you split the view it will not auto line up. No good way other than eyeball it.. Sorry..

-----------------------------------
BallewDesigns.com

This user is offline

View Website

Search this ThreadSearch this Thread | Page 1 of 1 |



Similar Threads

Thread/Thread Starter

Forum

Last Post

Replies

Section line disappears from plan when section view is placed on same sheet

Revit Building >> Technical Support

Thu, Sep 4, 2014 at 7:46:20 AM

5

Adjusting section lines

Revit Building >> Technical Support

Wed, Aug 9, 2006 at 12:27:06 AM

0

Section title line showing wrong reference sheet

Revit Building >> Technical Support

Thu, May 5, 2011 at 11:02:24 AM

2

Section line angled?

Revit Building >> Technical Support

Sat, Jan 20, 2007 at 10:45:03 AM

1

Sheet Underlay

General Discussion >> Wishlist

Mon, Sep 22, 2014 at 6:56:41 PM

9

Site Stats

Members:

2161655

Objects:

23325

Forum Posts:

152479

Job Listings:

3

Sponsored Ads

Home | Forums | Downloads | Gallery | News & Articles | Resources | Jobs | Search | Advertise | About RevitCity.com | Link To Us | Site Map | Member List | Firm List | Contact Us

Copyright 2003-2010 Pierced Media LC, a design company. All Rights Reserved.

Page generation time: 0.6345

Login

User Name:

Password:

Remember Me  

Forgot Password?

Search Forums

Advanced Search

Search Forums

Advanced Search


Clear Highlights


Clear Highlights