RevitCity.com Logo

Home  |  Forums  |  Downloads  |  Gallery  |  News & Articles  |  Resources  |  Jobs  |  FAQ  |  SearchSearch  |  Join  |  LoginLogin

Welcome !

48 Users Online (46 Members): Show Users Online - Most ever was 626 - Mon, Jan 12, 2015 at 2:00:17 PM

 

Forums

Forums >> Revit Building >> Technical Support >> Ceiling Visibility Issue

Search this ThreadSearch this Thread | Page 1 of 1 |

Mon, Feb 5, 2007 at 6:20:49 PM | Ceiling Visibility Issue

#1

lpettijohn


active

Joined: Thu, Jan 11, 2007
2 Posts
No Rating


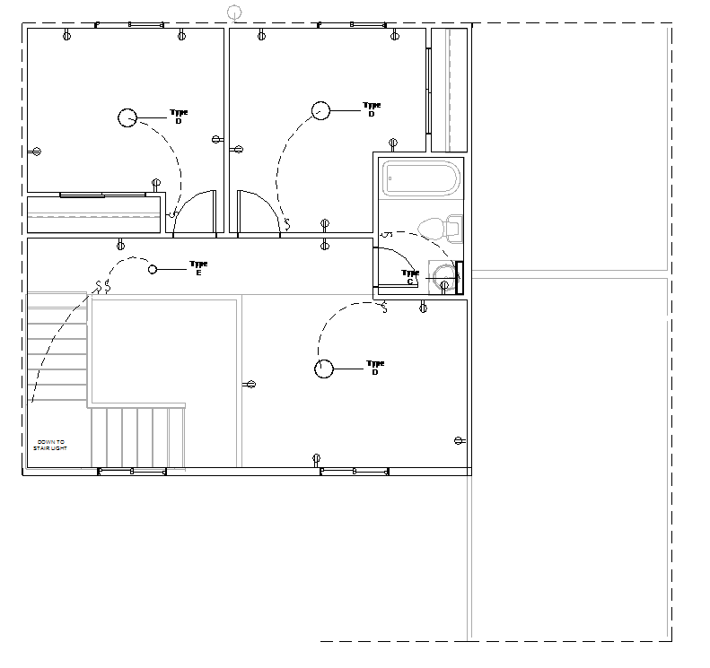
This is what my second floor ceiling looks like.  I need the walls to look normal.  I think it's a visibility setting.  Any help.

Attached Images

20217_Ceiling_Plan_Help.bmp

This user is offline

 

Search this ThreadSearch this Thread | Page 1 of 1 |



Similar Threads

Thread/Thread Starter

Forum

Last Post

Replies

Component visibility issue and sloped ceiling issue

Revit Building >> Technical Support

Wed, Apr 9, 2008 at 12:42:53 PM

1

Ceiling Plan & Visibility??

Revit Building >> Technical Support

Fri, Dec 7, 2007 at 9:13:34 AM

1

ceiling issue

Revit Building >> Technical Support

Wed, Mar 16, 2005 at 3:32:56 PM

2

Barrel Vault ceiling problems

Revit Building >> Technical Support

Mon, Nov 22, 2010 at 4:58:04 PM

1

Ceiling dependent lighting

Community >> Newbies

Wed, Oct 24, 2012 at 12:21:07 PM

8

Site Stats

Members:

2161655

Objects:

23325

Forum Posts:

152479

Job Listings:

3

Sponsored Ads

Home | Forums | Downloads | Gallery | News & Articles | Resources | Jobs | Search | Advertise | About RevitCity.com | Link To Us | Site Map | Member List | Firm List | Contact Us

Copyright 2003-2010 Pierced Media LC, a design company. All Rights Reserved.

Page generation time: 0.3424

Login

User Name:

Password:

Remember Me  

Forgot Password?

Search Forums

Advanced Search

Search Forums

Advanced Search


Clear Highlights


Clear Highlights