RevitCity.com Logo

Home  |  Forums  |  Downloads  |  Gallery  |  News & Articles  |  Resources  |  Jobs  |  FAQ  |  SearchSearch  |  Join  |  LoginLogin

Welcome !

54 Users Online (52 Members): Show Users Online - Most ever was 626 - Mon, Jan 12, 2015 at 2:00:17 PM

 

Forums

Forums >> Revit Building >> Technical Support >> How do you hold a label in place?

Search this ThreadSearch this Thread | Page 1 of 1 |

Tue, Jul 25, 2006 at 11:11:02 AM | How do you hold a label in place?

#1

MisterXYZ


active

Joined: Tue, Jul 25, 2006
2 Posts
No Rating


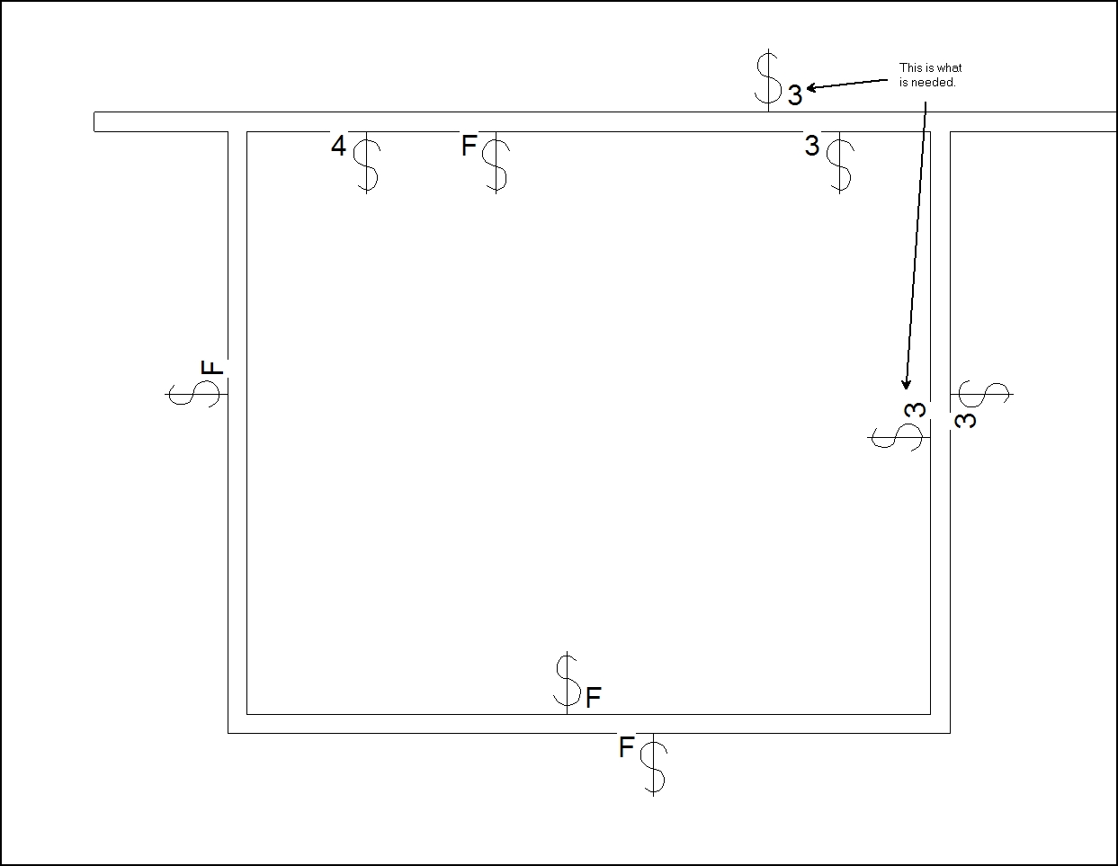
Have a question for those experienced with labels. How do I hold one in place (please take a look at the attached file). I would like the switch so that the number is always on the bottom (subscript) and to the right of the "S" - no matter the orientation of the switch. Any idea how I can do that?

Attached Images

label.jpg

This user is offline

 

Search this ThreadSearch this Thread | Page 1 of 1 |



Similar Threads

Thread/Thread Starter

Forum

Last Post

Replies

Place an annotation symbol, then drag a label?

Revit Building >> Technical Support

Fri, Aug 17, 2012 at 9:42:10 AM

2

Partial Label Annotation

Revit Structure >> Tips & Tricks

Mon, Apr 20, 2015 at 10:14:20 AM

3

Hold Clouds

Revit Systems >> Tips & Tricks

Tue, Jul 21, 2015 at 10:00:52 AM

1

creating a label to call up project parameters

Revit Structure >> Technical Support

Fri, Mar 11, 2011 at 3:21:05 PM

1

Label location flexible

Revit Structure >> Technical Support

Thu, Oct 13, 2011 at 4:42:22 AM

0

Site Stats

Members:

2161655

Objects:

23325

Forum Posts:

152479

Job Listings:

3

Sponsored Ads

Home | Forums | Downloads | Gallery | News & Articles | Resources | Jobs | Search | Advertise | About RevitCity.com | Link To Us | Site Map | Member List | Firm List | Contact Us

Copyright 2003-2010 Pierced Media LC, a design company. All Rights Reserved.

Page generation time: 0.3495

Login

User Name:

Password:

Remember Me  

Forgot Password?

Search Forums

Advanced Search

Search Forums

Advanced Search


Clear Highlights


Clear Highlights