|
|
|
Home | Forums |
Downloads | Gallery |
News & Articles | Resources |
Jobs | FAQ |
| Join |
Welcome !
|
61 Users Online (59 Members):
Show Users Online
- Most ever was 626 - Mon, Jan 12, 2015 at 2:00:17 PM |
Forums
|
Forums >> Revit Building >> Technical Support >> how to fix this gutter
|
|
|
active
Joined: Sat, Nov 7, 2020
0 Posts No Rating |
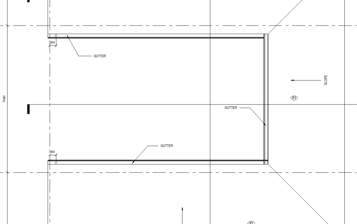
Hi, could anyone give me some suggestion on how to fix the gutter at the corner, the roofs were created seperately and the gutters can't join.
|
This user is offline |
|
 | |
|
|
site moderator|||
Joined: Tue, May 16, 2006
13079 Posts
 |
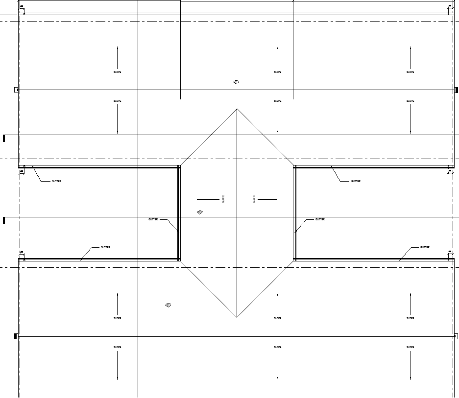
Do NOT create 3 seperate gutters.
If all edges, at the gutter line, are at the same elevation, simply pick all 3 when doing your gutter.
This is really a sweep.
|
This user is offline |
|
 |
|
active
Joined: Sat, Nov 7, 2020
0 Posts No Rating |
Thank you for your reply WWHub, I tried this ,but it still don't work ,see the attachment. I think the problem may be because the three roofs are created seperately .Anyidea how to fix this?
|
This user is offline |
|
 |
|
active
Joined: Sat, Nov 7, 2020
0 Posts No Rating |
Thanks again WWHub. I just figure it out.
|
This user is offline |
|
 |
 |
Similar Threads |
|
Gutter display on roof plan |
Revit Building >> Technical Support
|
Mon, Jun 11, 2007 at 3:47:21 PM
|
0
|
|
Gutter but what about gutter downpipe? |
Revit Building >> Tips & Tricks
|
Mon, Feb 22, 2016 at 12:31:57 AM
|
5
|
|
Annoying gutter join |
Revit Building >> Technical Support
|
Mon, Aug 4, 2014 at 6:38:10 PM
|
3
|
|
CUSTOM GUTTER PROFILE |
Revit Building >> Technical Support
|
Wed, Mar 27, 2013 at 1:59:53 PM
|
2
|
|
sloping gutter |
Revit Building >> Technical Support
|
Thu, May 10, 2007 at 6:16:35 PM
|
1
|
 |
|
Site Stats
Members: | 2161655 | Objects: | 23325 | Forum Posts: | 152479 | Job Listings: | 3 |
|