RevitCity.com Logo

Home  |  Forums  |  Downloads  |  Gallery  |  News & Articles  |  Resources  |  Jobs  |  FAQ  |  SearchSearch  |  Join  |  LoginLogin

Welcome !

29 Users Online (27 Members): Show Users Online - Most ever was 626 - Mon, Jan 12, 2015 at 2:00:17 PM

 

Forums

Forums >> Revit Structure >> Technical Support >> restrain precast beam to side of a column

Search this ThreadSearch this Thread | Page 1 of 1 |

Wed, Nov 18, 2020 at 6:01:00 AM | restrain precast beam to side of a column

#1

freebutterflyx


active

Joined: Fri, Nov 11, 2016
0 Posts
No Rating


I started a Revit cource some time ago but due to the Covid regulations this course has been suspended for unknown time.

We only saw the basics so far. Now I try to learn it by myself (internet, youtube,...).

 

Now I'm trying to draw a concrete frame: precast concrete column with corbels and a precast concrete beam on the corbels.

I used a standard family for the beam and I made a family for the columns (just two heights at the top of the column).

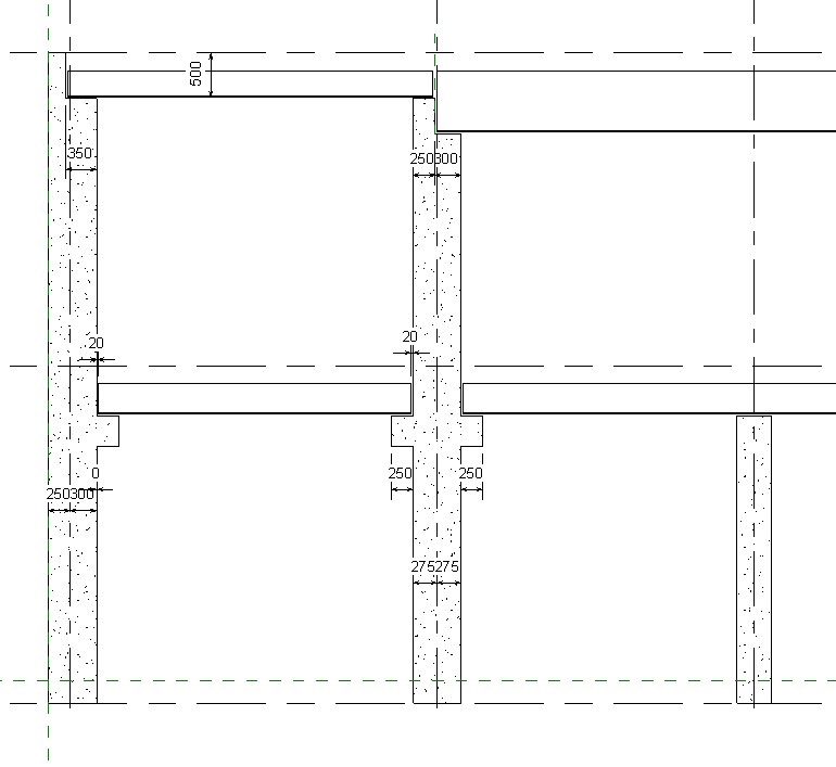
So far I have this: see attachement

 

I can draw most of it, I can change the column and beam geometry.

But I have one problem. I always want 20mm between precast beam and column.

The beam has a "installation tolerance" variable of 20mm. So I draw the beam between the sides of the column and I have this 20mm.

But when I change the column width, the beam doesn't change with it.

And I can't figure this out. I should add some restraints I think but it never works wright.

 

Anyone can guide me the correct way?



Attached Images

161022_problem.png.jpg

This user is offline

 

Wed, Nov 18, 2020 at 8:20:22 AM | restrain precast beam to side of a column

#2

WWHub


site moderator|||

Joined: Tue, May 16, 2006
13079 Posts
3.5 Stars: 404 Votes


With steel framing, you can control the end setback of beams but I don't know that you can do that with concrete.  Possibly because concrete is basically cast-in-place and there would be no setback. 

I wonder if people are using the steel system for precast elements?

 


This user is offline

 

Search this ThreadSearch this Thread | Page 1 of 1 |



Similar Threads

Thread/Thread Starter

Forum

Last Post

Replies

Precast Beam System not sitting on beam

Revit Structure >> Technical Support

Thu, Jan 10, 2013 at 11:45:48 AM

2

How to extend top flange of beam (over top of column)?

Revit Building >> Technical Support

Fri, Jun 15, 2012 at 10:35:08 AM

1

How to show beam column connection in plan properly

Revit Structure >> Technical Support

Fri, Nov 7, 2014 at 12:53:30 PM

1

Tee beam as column?

Revit Building >> Technical Support

Tue, Nov 6, 2012 at 2:41:46 PM

1

beams not snapping to beam/column

Revit Structure >> Technical Support

Fri, Feb 19, 2010 at 4:30:22 PM

1

Site Stats

Members:

2161655

Objects:

23325

Forum Posts:

152479

Job Listings:

3

Sponsored Ads

Home | Forums | Downloads | Gallery | News & Articles | Resources | Jobs | Search | Advertise | About RevitCity.com | Link To Us | Site Map | Member List | Firm List | Contact Us

Copyright 2003-2010 Pierced Media LC, a design company. All Rights Reserved.

Page generation time: 0.3154

Login

User Name:

Password:

Remember Me  

Forgot Password?

Search Forums

Advanced Search

Search Forums

Advanced Search


Clear Highlights


Clear Highlights