|
|
|
Home | Forums |
Downloads | Gallery |
News & Articles | Resources |
Jobs | FAQ |
| Join |
Welcome !
|
32 Users Online (30 Members):
Show Users Online
- Most ever was 626 - Mon, Jan 12, 2015 at 2:00:17 PM |
Forums
|
Forums >> Revit Building >> Technical Support >> Resetting Staircase Tread Number Tag (Revit 20180
|
|
|
active
Joined: Fri, Feb 23, 2018
0 Posts No Rating |
Hi,I've been working on a multi-story stair case and I had to delete the stairs and start over. When I tag the stairs with the tread number tag, it carries on the numbering from the previous numbering. So in my case the number begins at 21, rather than 1. Is there any way to reset the numbering? I am using Revit 2018.Thanks
|
This user is offline |
|
 | |
|
|
active

Joined: Thu, Mar 17, 2005
1231 Posts
 |
What Tag Family are you using ?
It sounds like you still have 'Connected Levels' from the previous stair ?
-----------------------------------
.
FULL 'DOWNLOAD ACCESS' to all 850+ CADclips videos for only $150
|
This user is offline |
View Website
|
 |
|
active

Joined: Thu, Mar 17, 2005
1231 Posts
 |
See image . . . .
-----------------------------------
.
FULL 'DOWNLOAD ACCESS' to all 850+ CADclips videos for only $150
|
This user is offline |
View Website
|
 |
|
active
Joined: Fri, Feb 23, 2018
0 Posts No Rating |
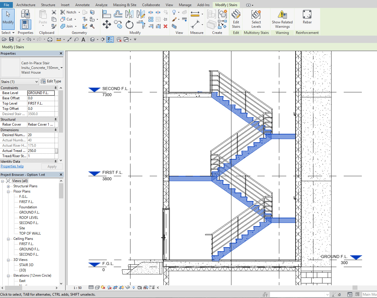
Yeah I did have a connected stair from a previous one but I had to delete it as I couldn't get the railings on the landings at the floor level to connect. I've attached an image of the section of the staircase higlighting it and the ground floor plan indicating the tread numbers.
|
This user is offline |
|
 |
 |
Similar Threads |
|
New Stair Tag Family! |
Revit Building >> Technical Support
|
Thu, Nov 13, 2014 at 1:20:06 AM
|
2
|
|
Stair Riser/Tread Number in Multistory Stairs |
Revit Building >> Technical Support
|
Tue, Sep 13, 2016 at 9:47:54 AM
|
7
|
|
How to create Folded Plate Staircase |
Revit Building >> Technical Support
|
Wed, Dec 17, 2008 at 4:09:59 PM
|
7
|
|
How to model a non-typical length stair tread for the top tread |
Revit Structure >> Technical Support
|
Mon, Jan 25, 2016 at 1:55:19 PM
|
4
|
|
Revit Staircase is Unreliable and Inacurate |
Revit Building >> Technical Support
|
Thu, Aug 11, 2016 at 5:11:34 PM
|
2
|
 |
|
Site Stats
Members: | 2161655 | Objects: | 23325 | Forum Posts: | 152479 | Job Listings: | 3 |
|