|
|
|
Home | Forums |
Downloads | Gallery |
News & Articles | Resources |
Jobs | FAQ |
| Join |
Welcome !
|
50 Users Online (48 Members):
Show Users Online
- Most ever was 626 - Mon, Jan 12, 2015 at 2:00:17 PM |
Forums
|
Forums >> Revit Building >> Technical Support >> Nothing shows up on my RCP
|
|
|
active
Joined: Thu, Feb 2, 2017
0 Posts No Rating |
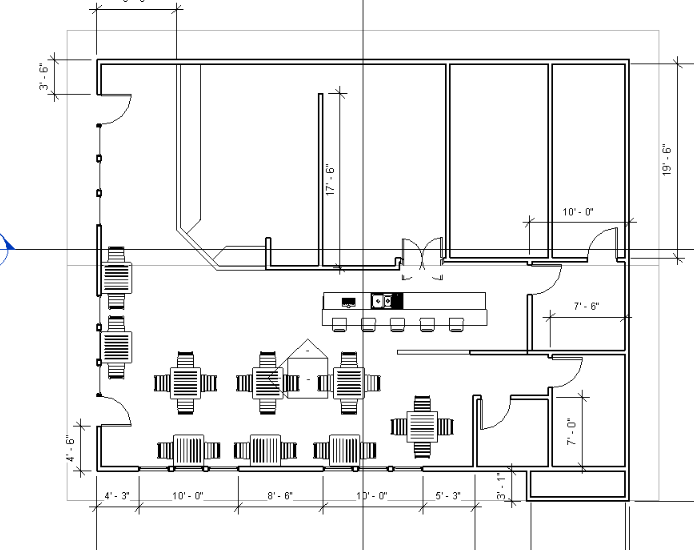
I have a 9' partial drop ceiling with flus-mounted lights. The remainder of the space is open to the roof above. The only thing that shows up in the ceiling view are the walls that attach to the sloped roof above (some of the walls show up), I can't figure out which view range to assign - I've tried various settings and watched tutorials, but I can't seem to get it - I'm using Revit 2018 - never had the problem before with Revit 2016 - Any ideas?
I've attached the FP View and Ceiling View...Thanks for helping!
|
This user is offline |
|
 | |
|
|
site moderator|||
Joined: Tue, May 16, 2006
13079 Posts
 |
Cut some sections through this space so we all can see the walls around the perimeter.
Also show the RCP view properties.
|
This user is offline |
|
 |
|
active
Joined: Thu, Feb 2, 2017
0 Posts No Rating |
I cannot get manufacturer ceiling-hung pendant lights (vs Revit standard fixtures) to host to ceilings above 10' high. They will only host to walls. I cannot change the hosting because it is greyed out.
I have 16' high ceilings - and no matter what, the fixtures remain suspended at 10' as I raise the ceiling (they float in space) - any ideas on how to get them to fasten to the 16' ceiling?
Thanks again!
|
This user is offline |
|
 |
|
active

Joined: Mon, Nov 19, 2007
93 Posts
 |
What a family is hosted to is established within the family itself. Open up the family and see if it is hosted to a wall. If it is you will need to recreate it in a family that has a ceiling as the host (You can select the light and just copy it to the new family).What I would do is copy the light to a generic family that has no host. This way when you bring it into your model, you can place it wherevever you like. The problem with hosted families is that they will be deleted if the host is deleted. This can be a big issue.
-----------------------------------
__________I'm the guy they come to when they didn't follow my recommended workflows.__________ |
This user is offline |
|
 |
 |
Similar Threads |
|
2D light family shows too big on RCP legend |
Revit Building >> Technical Support
|
Wed, Jul 3, 2013 at 11:35:44 AM
|
1
|
|
Visibility woes - Structure shows through ceilings |
Revit Building >> Technical Support
|
Fri, Apr 29, 2016 at 10:48:21 AM
|
1
|
|
Sconce in RCP |
Community >> Newbies
|
Fri, Jun 17, 2011 at 8:16:36 AM
|
1
|
|
Switch annotation help - RCP |
Revit Building >> Technical Support
|
Thu, Jan 13, 2011 at 3:32:47 PM
|
7
|
|
dropping in light fixtures and ceiling fans into RCP's |
Revit Building >> Technical Support
|
Mon, Aug 11, 2008 at 9:19:45 AM
|
6
|
 |
|
Site Stats
Members: | 2161655 | Objects: | 23325 | Forum Posts: | 152479 | Job Listings: | 3 |
|