Forums
|
Forums >> General Discussion >> Revit Project Management >> Room under the roof
|
|
|
active
Joined: Tue, May 10, 2016
0 Posts No Rating |
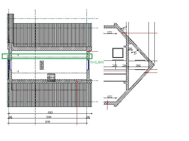
Does anybody know how to manage to show in Revit a line in a plan that is located under a inclined plan (for instance under an sloped roof) that divides the room in two parts, the one where the free height is over 1,6m and the part where the height is less than 1,6m.
It would basically be the result of projecting to the floor the cut that an horizontal plane at 1,6 m would produce with the ceiling.
|
This user is offline |
|
 | |
|
|
site moderator|||
Joined: Tue, May 16, 2006
13079 Posts
 |
Your question is not clear. You can draw any 2d line you want in a plan.
Maybe some notes and arrows in your posted view would help communicate???
|
This user is offline |
|
 |
|
active
Joined: Tue, May 10, 2016
0 Posts No Rating |
I'm aware of that, but the problem is that i want the POSITION of the line to be defined by the project and not just draw it where I see fit.
Again is the projection of the intersection that an horizontal plane at 1,6 m would produce with the ceiling, therefore it should be drawn at an exact location defined by the slope of the roof. I usually do this by simply making a CAD sketch where I calculate the distance X in an horizontal projection from the line and the wall, and then I just draw a line in Revit set at X from the closest wall, but I'd really really like to know how could I manage to do this directly (and more important automatically) in Revit so, for instance if I cahnge the slope of the aforementioned roof, the position of the line would automatically adapt.
|
This user is offline |
|
 |
|
active
Joined: Mon, Nov 12, 2007
19 Posts
 |
You could just change the computation height for rooms on that level to 1,6 meters. You do this by selecting the level, and find computation height in properties. It will update to design changes, but it wont give you a line.
|
This user is offline |
|
 |
|
site moderator|||
Joined: Tue, May 16, 2006
13079 Posts
 |
This is covered in your Help.
http://help.autodesk.com/view/RVT/2016/ENU/?caas=caas/screencast/Main/Details/587bf5e7-ebbe-4a67-9636-3e0d92f4f2f5.html
|
This user is offline |
|
 |
|
active
Joined: Tue, May 10, 2016
0 Posts No Rating |
"You could just change the computation height for rooms on that level to 1,6 meters. You do this by selecting the level, and find computation height in properties. It will update to design changes, but it wont give you a line."
That could be useful, it doesn't solve all my problems but seems a step on the right direction, thanks.
Sadly I still need the line, cause I should show it's distance to the wall via dimensions.
|
This user is offline |
|
 |
|
active
Joined: Tue, May 10, 2016
0 Posts No Rating |
"This is covered in your Help.
http://help.autodesk.com/view/RVT/2016/ENU/?caas=caas/screencast/Main/Details/587bf5e7-ebbe-4a67-9636-3e0d92f4f2f5.html"
That is also an useful trick, and I was aware of that possibility. The problem is that the line that I wish to project is not a real line, is virtual (Maybe I'm simply asking too much) but is pissing me off that I'm unable to solve what should be an easy problem using exclusively Revit.
|
This user is offline |
|
 |
|
site moderator|||
Joined: Tue, May 16, 2006
13079 Posts
 |
Not a problem if the line is real 3d in its own sub-category that can be turned off/on in vg.
|
This user is offline |
|
 |
 |
Similar Threads |
|
room relationship to its wall floor and roof |
Revit Building >> Technical Support
|
Thu, Jan 20, 2011 at 7:34:02 AM
|
2
|
|
Skylights not associating with room |
Revit Building >> Technical Support
|
Sat, Dec 11, 2010 at 1:18:26 AM
|
1
|
|
Room boundaries in dormer opening |
Revit Building >> Technical Support
|
Wed, Aug 22, 2018 at 9:57:04 AM
|
3
|
|
Schedule amount of concrete per room |
Revit Building >> Technical Support
|
Thu, Nov 25, 2010 at 9:47:52 PM
|
2
|
|
Creating a Roof Plan in Revit |
Community >> Newbies
|
Wed, Oct 3, 2007 at 8:51:58 AM
|
1
|
 |
|
Site Stats
Members: | 2161655 | Objects: | 23325 | Forum Posts: | 152479 | Job Listings: | 3 |
|