|
|
|
Home | Forums |
Downloads | Gallery |
News & Articles | Resources |
Jobs | FAQ |
| Join |
Welcome !
|
45 Users Online (43 Members):
Show Users Online
- Most ever was 626 - Mon, Jan 12, 2015 at 2:00:17 PM |
Forums
|
Forums >> Revit Building >> Technical Support >> Visibility woes - Structure shows through ceilings
|
|
|
active
Joined: Thu, Mar 12, 2015
0 Posts
 |
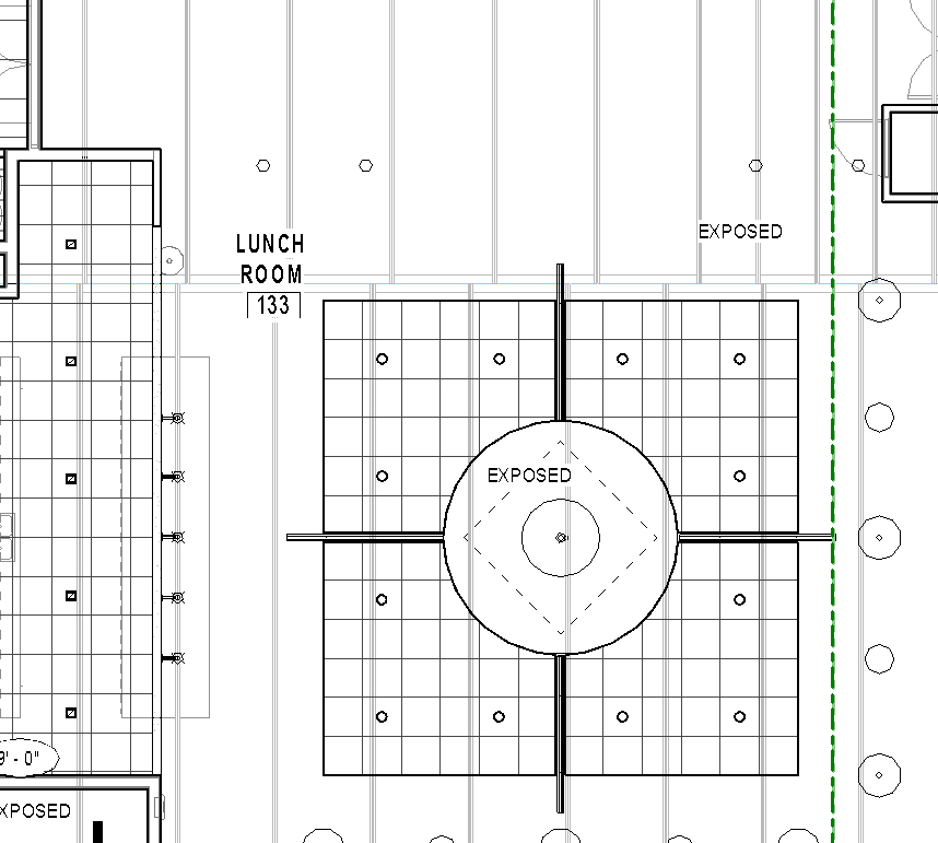
I have a linked structural drawing in my project that I need to show in the RCP.
It works great except for the fact that the structure shows right thru the ceiling as seen in the attached image.
Does anyone know a way to prevent this? I've tried everything that I can think of with no luck.
Thanks!
|
This user is offline |
|
 | |
|
|
site moderator|||
Joined: Tue, May 16, 2006
13079 Posts
 |
I see a bunch of lines ... obvious ceiling but otherwise how are we supposed to know what is the structure and what isn't? Communicate!
Is the structural modeled Revit or CAD? You say drawing and that implies CAD. No suggestions for this.
If a linked Revit, cut a section and look at where the structure is in relation to your ceiling. What's wrong?
Hopefully your view is not wireframe or that you have an underlay on.
|
This user is offline |
|
 |
 |
Similar Threads |
|
Nothing Shows |
Revit Building >> Technical Support
|
Fri, Sep 23, 2016 at 9:34:31 AM
|
5
|
|
View Range/Plan Region Visibility Controls in RCP |
Revit Building >> Technical Support
|
Wed, Feb 1, 2012 at 11:20:32 AM
|
1
|
|
Ceilings in Revit |
Revit Building >> Technical Support
|
Thu, Nov 15, 2012 at 4:10:07 PM
|
2
|
|
Ceilings in Revit Structure |
Community >> The Studio
|
Thu, Nov 26, 2009 at 1:11:26 AM
|
1
|
|
ceiling problem |
Revit Structure >> Technical Support
|
Tue, Jan 13, 2009 at 3:22:48 PM
|
1
|
 |
|
Site Stats
Members: | 2161655 | Objects: | 23325 | Forum Posts: | 152479 | Job Listings: | 3 |
|