RevitCity.com Logo

Home  |  Forums  |  Downloads  |  Gallery  |  News & Articles  |  Resources  |  Jobs  |  FAQ  |  SearchSearch  |  Join  |  LoginLogin

Welcome !

32 Users Online (30 Members): Show Users Online - Most ever was 626 - Mon, Jan 12, 2015 at 2:00:17 PM

 

Forums

Forums >> Revit Building >> Technical Support >> Shifting floors

Search this ThreadSearch this Thread | Page 1 of 1 |

Wed, Apr 13, 2016 at 1:06:31 PM | Shifting floors

#1

CharlesDickens99


active

Joined: Mon, Jul 29, 2013
19 Posts
No Rating


 

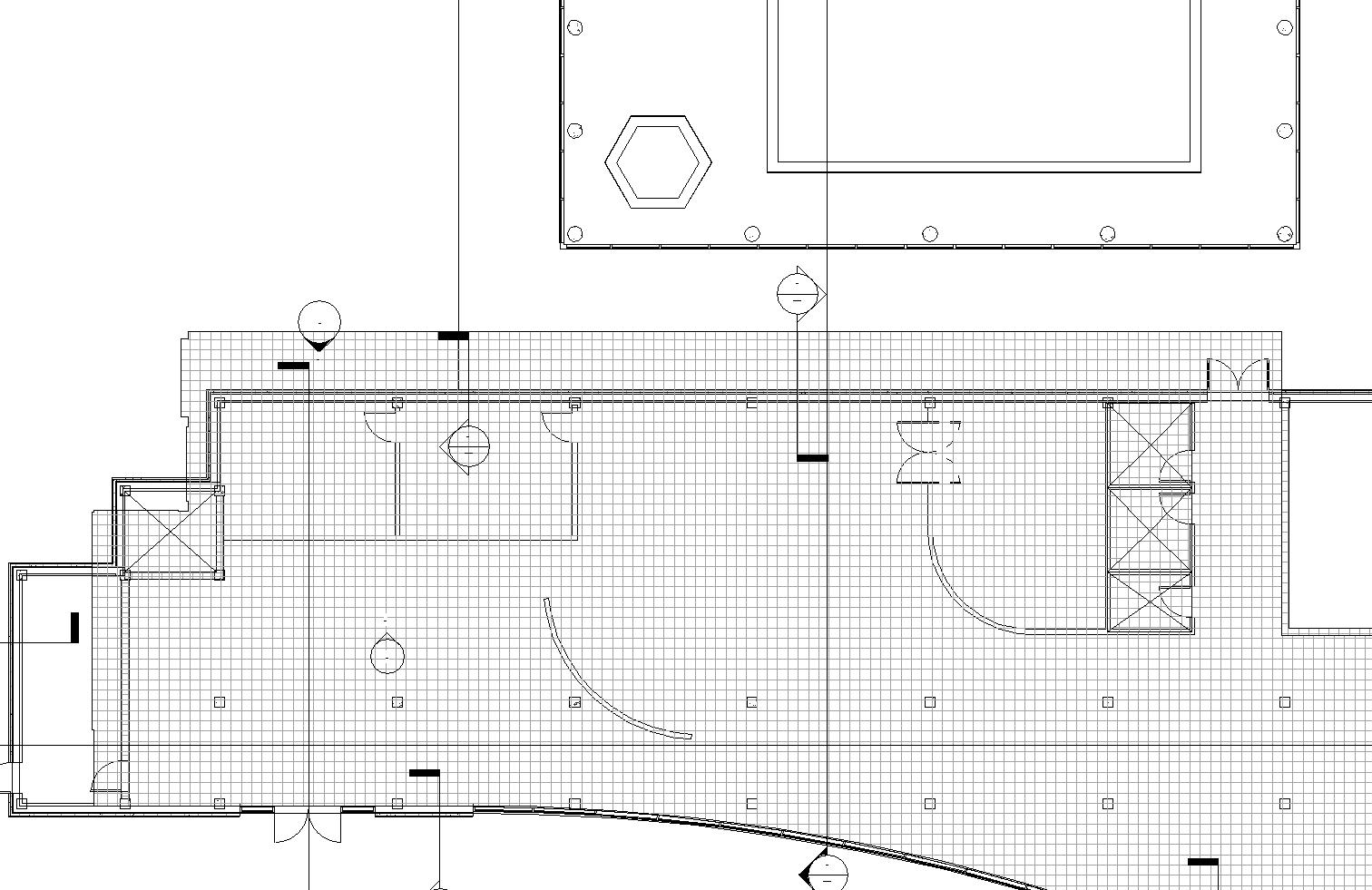
Has anyone experienced this problem? I have floor which I wish to modify  to create drainage points.

 

So I modify floors using split line and add point commands. This should only effect floor in bathroom area.

 

However, when I do this to the floor  (VCT on concrete)  it jumps outside its original boundary, the external wall.

 

 

 

Of course, this can be re-edited but why did it do it in the first place?



Attached Images

144980_KL_12_04_16.jpg

This user is offline

 

Wed, Apr 13, 2016 at 5:05:44 PM | Shifting floors

#2

dgcad


active
dgcad Avatar

Joined: Thu, Mar 17, 2005
1231 Posts
3.5 Stars: 36 Votes


I/ve never seen that happen before.


-----------------------------------

.

FULL 'DOWNLOAD ACCESS' to all 850+ CADclips videos for only $150

 

This user is offline

View Website

Search this ThreadSearch this Thread | Page 1 of 1 |



Similar Threads

Thread/Thread Starter

Forum

Last Post

Replies

Ceiling Hosted families shifting with ceiling

Revit Building >> Technical Support

Thu, May 8, 2008 at 12:35:40 PM

3

Shifting Elements in Wall Sections

Revit Systems >> Technical Support

Thu, Mar 12, 2009 at 12:39:23 PM

1

POWERFUL PC -> slow view-shifting

Workflow & Implementation >> Hardware

Wed, Aug 10, 2011 at 4:51:42 PM

7

Joining the Geometry of two floors

Revit Structure >> Technical Support

Wed, May 14, 2008 at 5:46:12 AM

1

Grouping Floors

Revit Building >> Technical Support

Mon, Aug 22, 2005 at 3:47:49 PM

1

Site Stats

Members:

2161655

Objects:

23325

Forum Posts:

152479

Job Listings:

3

Sponsored Ads

Home | Forums | Downloads | Gallery | News & Articles | Resources | Jobs | Search | Advertise | About RevitCity.com | Link To Us | Site Map | Member List | Firm List | Contact Us

Copyright 2003-2010 Pierced Media LC, a design company. All Rights Reserved.

Page generation time: 0.4039

Login

User Name:

Password:

Remember Me  

Forgot Password?

Search Forums

Advanced Search

Search Forums

Advanced Search


Clear Highlights


Clear Highlights