|
Forums >> Revit Building >> Technical Support >> SECTION CUT VISIBILITY ISSUES WITH WINDOWS
|
|
|
active
Joined: Tue, Apr 1, 2008
0 Posts No Rating |
(Using Revit Architecture 2016)
Hello! I'm having some issues with a window family currently. (see screenshot) The window on the right (next to the door) is the same exact family as the windows on the left (with the plan region box around it). Sill height of right window is at 2'-0", left window sill height is at 9'-0" (1'-6" h). Plan region is cutting at 9'-6" (we've tried all kinds of dif scenarios with adjusting visibility/view range/etc. where it's cutting the transom window on the left and still to no avail with getting it to properly show the section cut of the window). Cannot figure out why the left windows are not reading the same as the right even with the proper cut levels established. I've attached the family if that helps. Thanks in advance!
|
This user is offline |
|
 |
|
|
|
site moderator|||

Joined: Fri, Nov 12, 2010
1749 Posts
 |
It looks the same to me.. only the left one is offset into the wall further. Am I missing something?
|
This user is offline |
View Website
|
 |
|
active
Joined: Tue, Apr 1, 2008
0 Posts No Rating |
The left set of windows do not show any glass, mullions, etc. (which it should, givent that I set the plan region around it to cut through @ 9'-6" and the sill height sits at 9'-0") None of that detail is shown and suggests it's not cutting through the window, but rather the sill). The window on the right clearly shows the anatomy of the window because the cut plane settings are working. However, not so for the left.
|
This user is offline |
|
 |
|
active
Joined: Tue, Apr 1, 2008
0 Posts No Rating |
And by "right window", I am speaking about the one that is adjacent to the door.
|
This user is offline |
|
 |
|
site moderator|||
Joined: Tue, May 16, 2006
13079 Posts
 |
Look again at your plan region properties. We can't because you don't post them and a section showing heights.
Move the cut plane up and see what happens.
|
This user is offline |
|
 |
|
active
Joined: Tue, Apr 1, 2008
0 Posts No Rating |
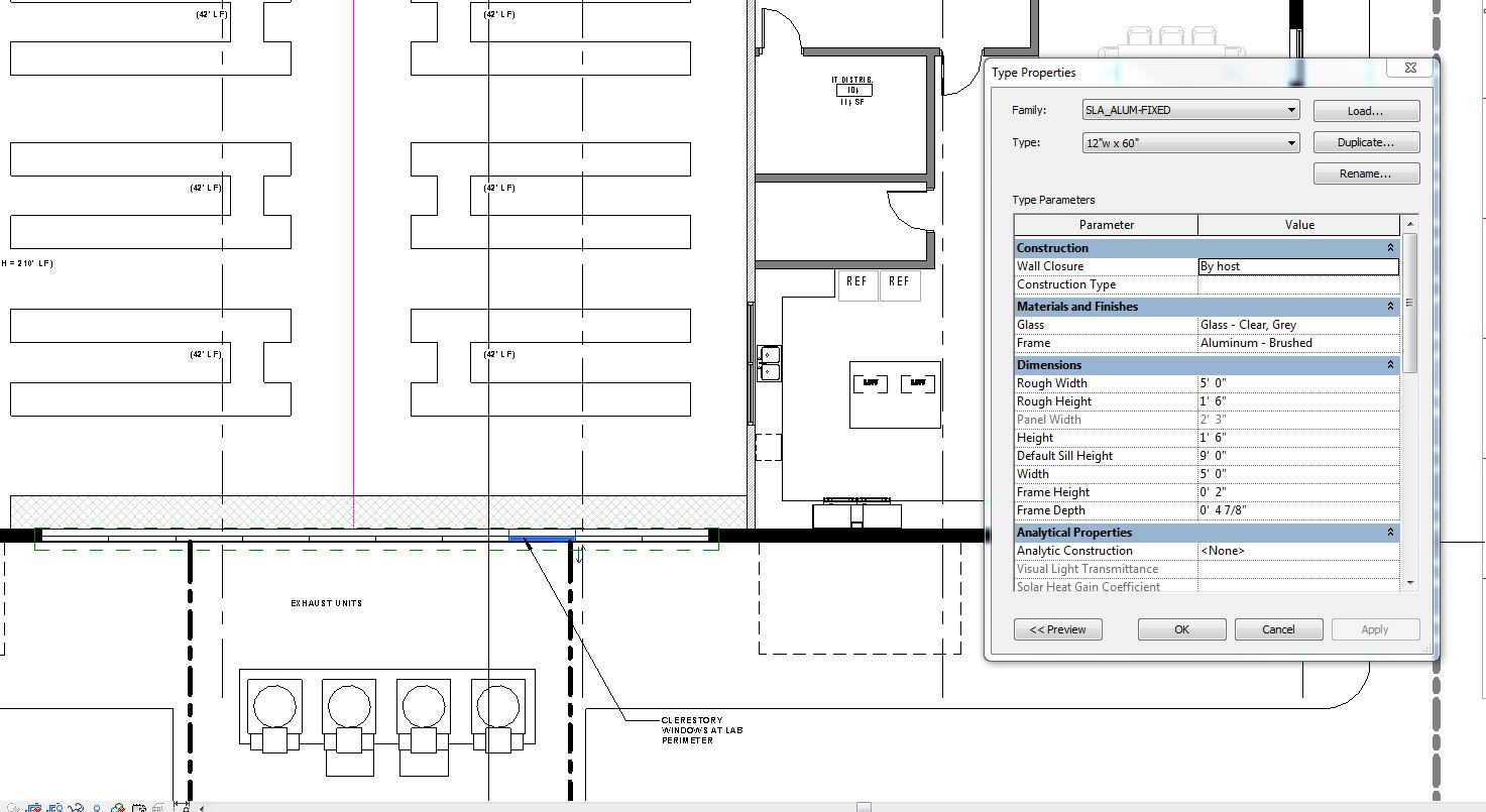
My apologies for the lack of information. Here are a couple screenshots of the plan region settings, as well as the window type properties. Hope this helps.
|
This user is offline |
|
 |
|
site moderator|||
Joined: Tue, May 16, 2006
13079 Posts
 |
No section shown...
That sill height in the family may not mean anything....
|
This user is offline |
|
 |
|
active
Joined: Tue, Apr 1, 2008
0 Posts No Rating |
|
This user is offline |
|
 |
|
active
Joined: Tue, Apr 1, 2008
0 Posts No Rating |
Not uploading. File is only 1.4 Mb. Argh!
|
This user is offline |
|
 |
|
active
Joined: Tue, Apr 1, 2008
0 Posts No Rating |
Of course...now it does after I said that. Anyway, hopefully this helps.
|
This user is offline |
|
 |
 |
Similar Threads |
|
Door Opening cut visibility issues |
Revit Building >> Technical Support
|
Thu, Aug 4, 2011 at 1:13:14 PM
|
2
|
|
Having visibility issues in view section |
Community >> The Studio
|
Wed, Mar 4, 2020 at 4:06:02 PM
|
1
|
|
Earth and Wall cut patterns not showing in wall section... |
Revit Building >> Technical Support
|
Thu, Jan 5, 2012 at 3:08:36 PM
|
7
|
|
New to revit, overlap visibility problem |
Revit Structure >> Technical Support
|
Wed, Sep 4, 2013 at 12:12:23 PM
|
3
|
|
Imported Drawings Visibility Issues |
Revit Building >> Technical Support
|
Mon, Oct 8, 2007 at 4:08:24 PM
|
2
|
 |