Forums
|
Forums >> General Discussion >> Revit ROI >> Revit Standards / Template Creation Timeline
|
|
|
active
Joined: Fri, Feb 6, 2015
0 Posts No Rating |
Good Morning Everyone,I'm new the the forums but have a fair amount of Revit experience under my belt (or so I think). Recently, in the office I work in, myself and two others were instructed to begin developing a Revit startup file and Revit standards (modelling and annotation) for our office in 2016.Recently, we completed the construction drawings for our first revit project without a complete set of standards / templates. We ended up having to complete details using AutoCAD due to time restraints and lingering changes from the client, which as a result meant that we weren't entirely using Revit to its full capabilities (manual referencing in many situations). I'm looking for some input from as many people as I can to take back to our administration staff. I have my own idea of what it should take but want to make sure I'm providing them with accurate information supported by people who have probably utilized revit for much longer than myself.Any information would be much appreciated!Thanks,
|
This user is offline |
|
 | |
|
|
site moderator|||
Joined: Tue, May 16, 2006
13079 Posts
 |
Creating your office template will take some time and you will modify it over time. Here are some suggestions
- VERY IMPORTANT! - Revit is not CAD so don't try and make it be CAD. Accept the few limitations because you will be well rewarded with the advantags. The entire office has to buy into this! ACCEPT REVIT's LINES and LINESCALING. (For now, don't mess with the linescales for view scales. Give this time. You only need the stock linetypes and maybe a couple more over time.)
- Keep your template relatively simple. You don't need everything but do set these up:
- All annotative elements like text types, dimension types, Grid Types, Category Tags callout heads..etc
- Sheet families - Load one size to begin with and have other sizes in your library.
- You might load initial sheets with standard legends like keynote legends, general notes, schedule sheets (define those).
- If you are an architectural firm, start working on wall types but this will take time. I suggest you only have a few basic ones in the template. We created all of our types and put them in a resource project where they were shown as legends that were fully tagged. To use in a project, we simply copy the legend with material tags and paste into the project legend.
- I doubt you will want any details but you will need a few commonly used detail components and a few more hatch patterns. Again, hatch patterns can be stored in a resource project were you can easily find them and copy into your project.
|
This user is offline |
|
 |
|
active
Joined: Fri, Feb 6, 2015
0 Posts No Rating |
Thank you very much for your insight. Were you involved in creating your own or your offices standards / templates? How much time did you or your office allocate you to do this? I know that its pretty tough to put a solid number on a question like that but even an estimate +/- a week or so.
In addition, what have you found the best ways to fully automate exterior elevation keynote legends and construction type assembly legends?
Thanks,
|
This user is offline |
|
 |
|
site moderator|||
Joined: Tue, May 16, 2006
13079 Posts
 |
I manage the use of Revit in our office. We started in about 2005-6 with just 5 users who took one week of training. We did several projects before we tackeled our template. You really have to understand how to use Revit before you paint yourself in a corner spending a lot of time developing bad content or bad habits. This core group together contributed different portions of our template. We also trained our staff or 40+.
I had uploaded an image of my first project that I did completely with Revit by myself. It was a precast parking garage that integrated with a Hotel I was doing in CAD. Here it is:
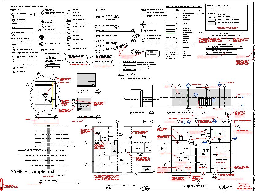
Our office had a notebook of our CAD standards. Over those first few projects, we had created many of the standard annotative elements we would need. We expanded on that and published our standards in a Revit project so new staff could refer to that as needed. See attached. Red notes are all explanations.
Time???? I can't really say. It really depends on your office standards. If your section / callout heads, view tags are close to stock, those are easily modified. But you can spend a lot of time when you don'y know the program well enough yet. Don't make bad decisions early. I modify our template several times a year as we see problems.
|
This user is offline |
|
 |
|
active
Joined: Fri, Feb 6, 2015
0 Posts No Rating |
That's pretty incredible to train that many people. After each project do you spend some time updating and revising your offices standards / template as needed based on issues you encountered during the project?
Two things i've always wondered is what is the best way to full automate construction type legends and exterior elevation keynote legends. I've attached some images of what our office did for our first project (ie: tried to make it look like AutoCAD). I know that there needs to be a more efficient way to do both but havent had much luck in my research. Do you have any suggestions ?
Thanks,
|
This user is offline |
|
 |
|
site moderator|||
Joined: Tue, May 16, 2006
13079 Posts
 |
Those legends are simple text/line legends and there is no way to automate that. You can transfer legends between projects.
We use the power of Revit to describe our wall assemblies. These are Revit legend components with material tags. The information comes directly from the material. This takes awhile to get in your template and to train your staff. IF YOU EDIT ONE OF THESE MATERIAL TAGS - IT CHANGES EVERY TAG ATTACHED TO THAT MATERIAL IN THE PROJECT! We only use the Description for our tag but you could use some of the other fields where appropriate.
We could assign the keynote here as well but we typically use keynote by element instead because we have not yet built a full keynote file like we want.
|
This user is offline |
|
 |
 |
Similar Threads |
|
BOMA Standards |
Revit Building >> Technical Support
|
Mon, Jun 1, 2009 at 11:02:14 AM
|
4
|
|
Revit 2009 Crashing In View Template Creation |
Revit Building >> Technical Support
|
Tue, Oct 25, 2011 at 11:45:51 AM
|
3
|
|
Changing .rte template midstream |
Revit Building >> Technical Support
|
Thu, Feb 14, 2008 at 1:03:47 PM
|
3
|
|
Transfer Project Standards not working |
General Discussion >> Revit Project Management
|
Tue, Jan 21, 2014 at 11:26:40 AM
|
3
|
|
TRANSFER PROJECT STANDARDS??? |
Revit Building >> Technical Support
|
Thu, Jan 8, 2009 at 1:27:37 PM
|
2
|
 |
|
Site Stats
Members: | 2161655 | Objects: | 23325 | Forum Posts: | 152479 | Job Listings: | 3 |
|