|
|
|
Home | Forums |
Downloads | Gallery |
News & Articles | Resources |
Jobs | FAQ |
| Join |
Welcome !
|
39 Users Online (37 Members):
Show Users Online
- Most ever was 626 - Mon, Jan 12, 2015 at 2:00:17 PM |
Forums
|
Forums >> General Discussion >> Revit Project Management >> Family from linked file not visible
|
|
|
active
Joined: Sat, May 4, 2013
0 Posts No Rating |
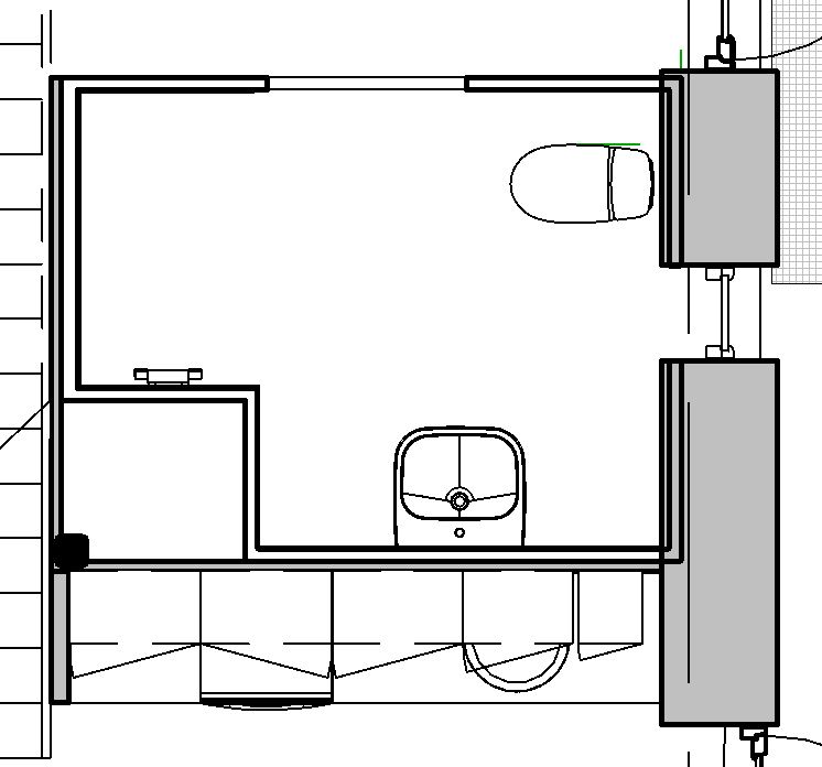
Hello,My problem is that at family from a linked file isnt visible in the floor plans while other familes are.I have attached some pictures to explain it.I have linked in a lavatory in the main file. In the the 3d view the sink is visible - in the floor plans it is not. If the plan view is set to "linked view" the sink is visible. But i would like to avoid that. I would prefere to control the view settings from "host view" since i have alot of files linked in the main file. And it would be very time consuming to go to every link to edit the floor plansHave anyone an idea why the sink isnt visible. The sink is categorized as a plumbing fixture, the same goes for the toilet and the shower mixer but they are visible and created in the same phase. Thanks in advance.
|
This user is offline |
|
 | |
|
|
site moderator|||
Joined: Tue, May 16, 2006
13079 Posts
 |
The category for that family is probably not on. You can set the VG for the linked file seperate from your host view.
BTW - no matter what family category you think it is, it may not be. Many users are very careless about using correct categories in their families. Also look at imports in families settings in VG. The element maybe imported CAD in the family.
|
This user is offline |
|
 |
|
active
Joined: Sat, May 4, 2013
0 Posts No Rating |
Aha - Thank you. I had to check the box "imports in families" Does that mean there is importet CAD in the family?
|
This user is offline |
|
 |
 |
Similar Threads |
|
Room Tags not visible in a linked file - Revit 2014 |
Revit Building >> Technical Support
|
Tue, Apr 4, 2017 at 5:54:04 PM
|
7
|
|
Help Needed: Unsolved Linked file Question |
Revit Structure >> Technical Support
|
Mon, Jul 9, 2012 at 4:32:29 PM
|
2
|
|
Level-Head on linked Revit-file visible... puzzler. |
Revit Building >> Technical Support
|
Wed, May 11, 2011 at 8:29:34 AM
|
2
|
|
Linked Revit model not visible |
General Discussion >> Revit Project Management
|
Fri, Aug 21, 2009 at 6:23:20 AM
|
1
|
|
Linked Revit Topography file displayed in hidden lines in 3d view main bld file |
Revit Building >> Technical Support
|
Sat, Jul 7, 2012 at 3:38:16 PM
|
9
|
 |
|
Site Stats
Members: | 2161655 | Objects: | 23325 | Forum Posts: | 152479 | Job Listings: | 3 |
|