RevitCity.com Logo

Home  |  Forums  |  Downloads  |  Gallery  |  News & Articles  |  Resources  |  Jobs  |  FAQ  |  SearchSearch  |  Join  |  LoginLogin

Welcome !

22 Users Online (20 Members): Show Users Online - Most ever was 626 - Mon, Jan 12, 2015 at 2:00:17 PM

 

Forums

Forums >> Revit Building >> Technical Support >> WINDOW FAMILY PROBLEM

Search this ThreadSearch this Thread | Page 1 of 1 |

Mon, Jan 26, 2015 at 9:15:57 AM | WINDOW FAMILY PROBLEM

#1

KYLIEBRAITHWAITE


active

Joined: Wed, Aug 6, 2014
0 Posts
No Rating


HI

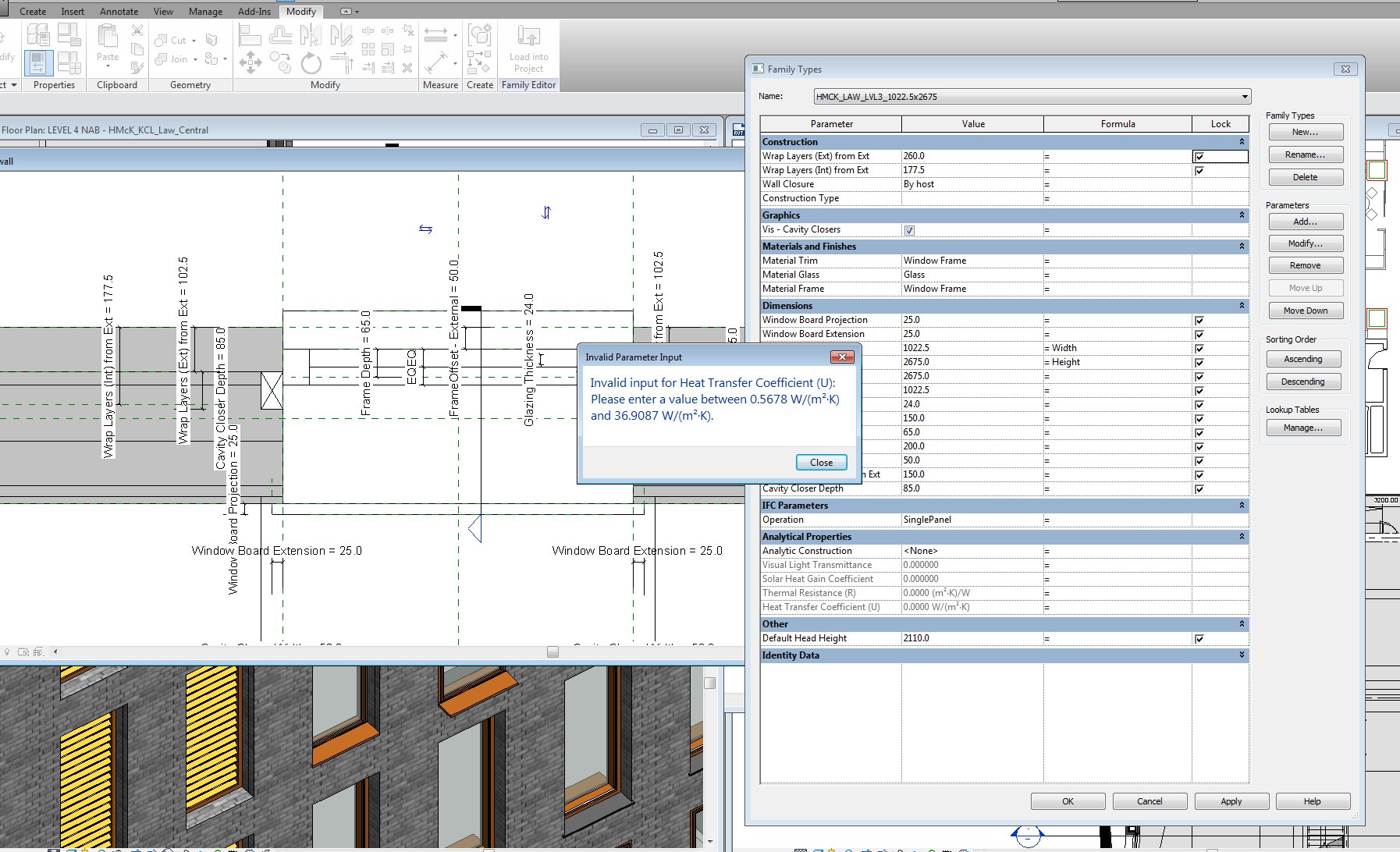
I HAVE COPIED A REVIT LIBRARY WINDOW FAMILY AND SAVED AS.

I WASNT ABLE TO CHANGE THE FRAME OFFSET AND CAVITY CLOSER FROM 50MM TO 225MM TO SIT FLUSH WITH THE INTERNAL FINISH AS I NEED.

I WENT INTO THE FAMILY AND TRIED TO CHANGE IT FROM THERE...NO SUCCESS

I ALSO EDITED THE WINDOW FAMILY WALL FROM 300MM TO 402.5MM AS THE WALL IM PLACING THE WINDOW INTO IS 402.5MM...NO SUCCESS

I SEEM TO BE GETTING A POP UP ABOUT THE 'WINDOW HEAT TRANSFER COEFFICIENT' WHEN I TRY TO MAKE CHANGES TO THE WINDOWS PARAMETERS.

 

MY SECOND PROBLEM IS WHEN I CHANGE THE WINDOW FRAME OFFSET OR CAVITY CLOSER OFFSET DIMENSIONS THE WALL IT IS PLACED INTO STOPS 'WRAPPING AT INSERTS' EVEN THOUGH IT IS SET TO 'WRAP AT INSERTS' 'EXTERNAL'

 

CAN ANYONE SHED LIGHT ON WHAT I'M DOING WRONG?

 

 

 

 

 



Attached Images

136902_Screenshot012615025931PM.jpg

This user is offline

 

Search this ThreadSearch this Thread | Page 1 of 1 |



Similar Threads

Thread/Thread Starter

Forum

Last Post

Replies

Problem with window cutplane/viewrange/.... Help! :)

Revit Building >> Technical Support

Tue, Oct 26, 2010 at 12:31:53 PM

12

Custom window family glazing problem

Revit Building >> Technical Support

Fri, Mar 27, 2009 at 2:26:30 PM

4

new window family

Revit Building >> Technical Support

Thu, Jul 16, 2009 at 5:50:17 PM

3

window frame family + nested window frame fill

Revit Building >> Technical Support

Wed, Apr 12, 2006 at 7:31:30 AM

0

Void Extrusion in window family problem

Revit Building >> Technical Support

Mon, May 18, 2015 at 3:55:23 PM

3

Site Stats

Members:

2161655

Objects:

23325

Forum Posts:

152479

Job Listings:

3

Sponsored Ads

Home | Forums | Downloads | Gallery | News & Articles | Resources | Jobs | Search | Advertise | About RevitCity.com | Link To Us | Site Map | Member List | Firm List | Contact Us

Copyright 2003-2010 Pierced Media LC, a design company. All Rights Reserved.

Page generation time: 1.2398

Login

User Name:

Password:

Remember Me  

Forgot Password?

Search Forums

Advanced Search

Search Forums

Advanced Search


Clear Highlights


Clear Highlights