|
|
|
Home | Forums |
Downloads | Gallery |
News & Articles | Resources |
Jobs | FAQ |
| Join |
Welcome !
|
69 Users Online (67 Members):
Show Users Online
- Most ever was 626 - Mon, Jan 12, 2015 at 2:00:17 PM |
Forums
|
Forums >> Revit Building >> Technical Support >> Filled region within detail family not showing in design option
|
|
|
active
Joined: Sun, May 31, 2009
4 Posts No Rating |
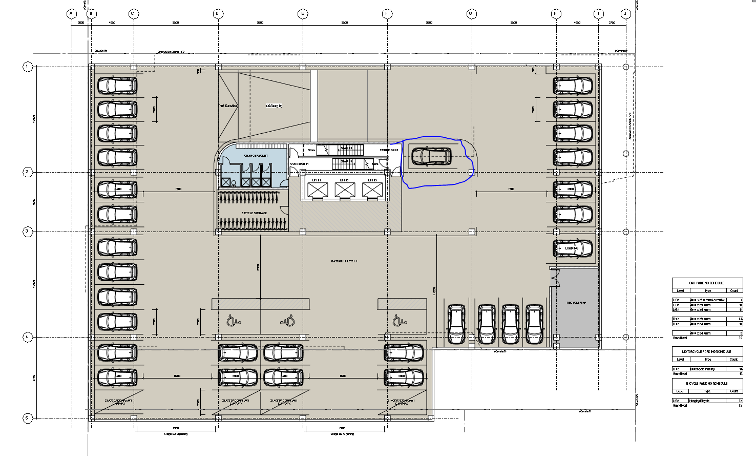
I'm having trouble working out why a filled region within a detail family is not showing up in the primary design option. I understand that filled regions by themselves can not be put into design options. I've enclosed an image showing the problem. The white filled cars are purely within the project, whereas the blue circled one is in the primary design option. I'm using Revit 2014.
|
This user is offline |
|
 | |
|
|
active
Joined: Sun, May 31, 2009
4 Posts No Rating |
I've tried to isolate what is causing the visibility issue. I created a black filled region next to the detail family and moved one of the carpark families to the edge of the building. The family highlighted with blue shows the black fill outside of the building and inside. What I thought could be the problem was the floor fill being turned on, or the color scheme (by department) could stop the black fill from showing through, both options did not work.
|
This user is offline |
|
 |
|
active
Joined: Sun, May 31, 2009
4 Posts No Rating |
So it turns out that the design option is not the root of the problem like originally thought. I tried to copy one of the families from outside the design option and had a similar fill visibility issue. I moved the family outside of the floor area and the fill shows up. Pretty peculiar, even tried to turn floor fill off and that didn't work.
|
This user is offline |
|
 |
 |
Similar Threads |
|
Filled Region in 3D Plumbing Family |
Revit Building >> Technical Support
|
Tue, Jun 12, 2012 at 9:06:04 AM
|
2
|
|
Filled Regions in Detail Components |
Revit Building >> Technical Support
|
Tue, Jul 17, 2018 at 9:19:34 PM
|
4
|
|
Detail Component / Filled Region |
Revit Building >> Technical Support
|
Wed, Aug 19, 2009 at 10:57:44 AM
|
0
|
|
Filled Regions in Annotation Family not showing properly |
Revit Building >> Technical Support
|
Sat, Jun 1, 2013 at 5:13:13 PM
|
6
|
|
Filled Region Family Not Displayed in Project Browser |
Revit Building >> Technical Support
|
Sun, Nov 9, 2014 at 8:06:37 PM
|
3
|
 |
|
Site Stats
Members: | 2161655 | Objects: | 23325 | Forum Posts: | 152479 | Job Listings: | 3 |
|