|
|
|
Home | Forums |
Downloads | Gallery |
News & Articles | Resources |
Jobs | FAQ |
| Join |
Welcome !
|
49 Users Online (47 Members):
Show Users Online
- Most ever was 626 - Mon, Jan 12, 2015 at 2:00:17 PM |
Forums
|
Forums >> Revit Building >> Technical Support >> Understanding Plan Region
|
|
|
active
Joined: Tue, May 13, 2014
0 Posts No Rating |
Hello,
I think that Plan Region is a great feature, but doesn't look like I understand it 100%.
My Ground level outside the house is 0, house's Lower Ground finish floor level is -1440. I want to have a cut section 1200mm above surfaces. So, in Ground Level view, I used Plan Region arround the house's perimeter, edited View Range. It seems that it helped, but still doesn't show it correctly.
Second thing is, when I adjust the Main View Range, it affects Plan Region area too!
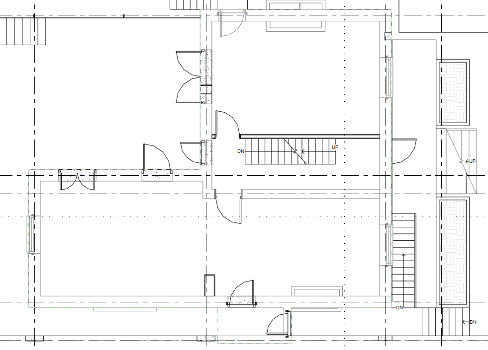
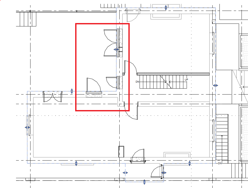
Please find 2x pictures attached showing door frames.
Thank you.
|
This user is offline |
|
 | |
|
|
site moderator|||
Joined: Tue, May 16, 2006
13079 Posts
 |
Without seeing the associated view range properties of the view and the plan region as well as something that tells us what levels these dorrs are on, these images don't tell us anything.
|
This user is offline |
|
 |
|
active
Joined: Tue, May 13, 2014
0 Posts No Rating |
Please find attached.
1. Main View Range 1200
2. Main View range 500
3. Plan Region View Range
I hope it helps!
|
This user is offline |
|
 |
|
site moderator|||
Joined: Tue, May 16, 2006
13079 Posts
 |
I'm sorry but this still doesn't make sense.
- Your Ground level is 0
- Your Lower level is -1440
- This plan view is what? Ground level ? Main view range 500/1200 to what?
- What is a garden view? You are confusing.
I suggest you make all of your settings from the level of the view like maybe this if I somewhat understand you.... an elevation with linework to show us the ranges you want sure would have helped)
- Ground Level - Top 2200, cut 1200, bottom 0 (all associated ground level)
- Plan Region - Top -240, cut -1440, bottom -2200 (all associated ground level)
You still don't tell us where these doors are in relation to anything.
|
This user is offline |
|
 |
|
active
Joined: Tue, May 13, 2014
0 Posts No Rating |
I found out that I have to move my Plan Region Line about 250mm away from the House Outer line in order to show the door frame correctly. I believe it is because Door Swing is overlapping the Plan Region Boundary line. That doesn't solve my problem, as I want Plan Region line no to go further than the house's outer line.
Garden House Level is 0.
Lower ground FFL is -1440.
The main view is Garden House Level, and I want to include Lower Ground FFL in it.
|
This user is offline |
|
 |
 |
Similar Threads |
|
Plan Region |
Revit Building >> Technical Support
|
Fri, Jul 21, 2006 at 4:23:10 PM
|
2
|
|
Plan Region problem - walls/slabs/framing displaying outside the region boundary |
Revit Structure >> Technical Support
|
Tue, Jun 23, 2009 at 4:46:32 PM
|
1
|
|
RA2008 Plan Region Removes Wall Detail Outside of Region [ 1 2 ] |
Revit Building >> Technical Support
|
Thu, Sep 18, 2008 at 8:19:25 AM
|
16
|
|
Plan region not showing lines in detail view [ 1 2 ] |
Revit Building >> Technical Support
|
Mon, May 11, 2015 at 11:17:48 AM
|
15
|
|
PLAN REGION PROBLEM |
Revit Building >> Technical Support
|
Wed, Sep 10, 2014 at 11:15:22 AM
|
11
|
 |
|
Site Stats
Members: | 2161655 | Objects: | 23325 | Forum Posts: | 152479 | Job Listings: | 3 |
|