RevitCity.com Logo

Home  |  Forums  |  Downloads  |  Gallery  |  News & Articles  |  Resources  |  Jobs  |  FAQ  |  SearchSearch  |  Join  |  LoginLogin

Welcome !

43 Users Online (41 Members): Show Users Online - Most ever was 626 - Mon, Jan 12, 2015 at 2:00:17 PM

 

Forums

Forums >> Revit Building >> Technical Support >> rotating a viewport with multiple buildings

Search this ThreadSearch this Thread | Page 1 of 1 |

Wed, Apr 16, 2014 at 7:54:36 PM | rotating a viewport with multiple buildings

#1

chris76


active

Joined: Mon, Oct 7, 2013
0 Posts
No Rating


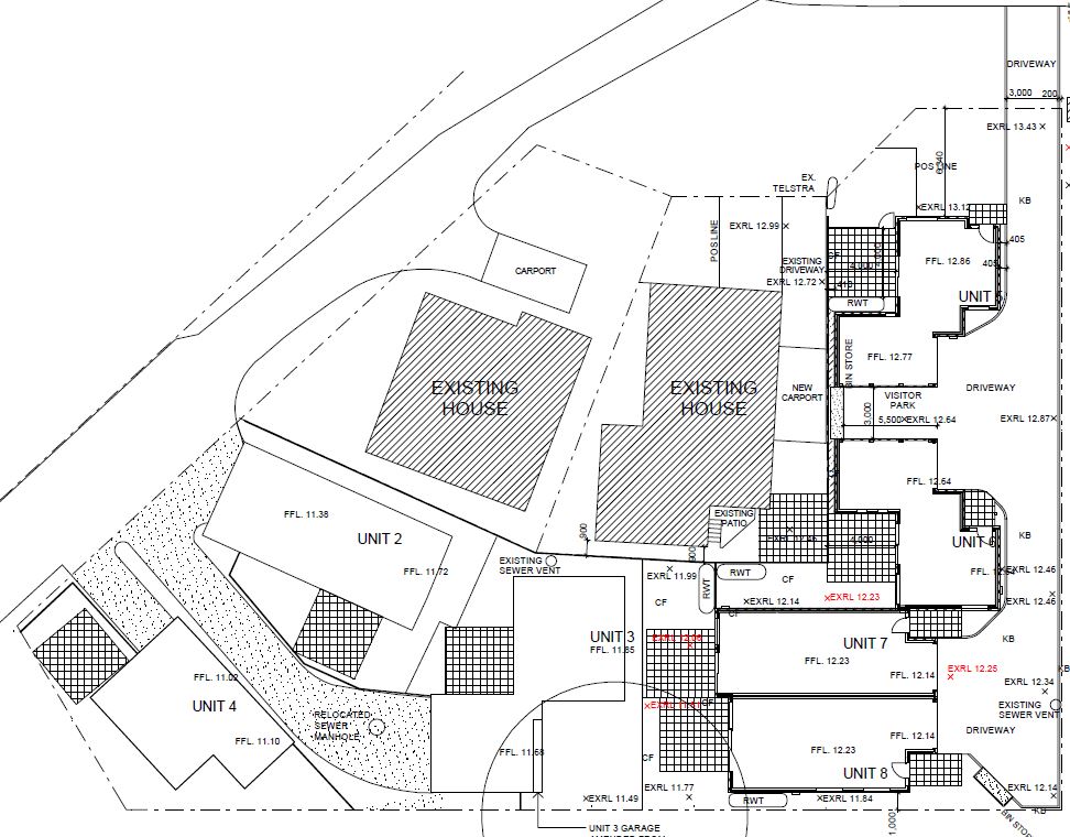
i have a project with 6 new buildings 2 of them (unit 2 & 4) are on a angel and i need to rotate them

so there square on the drawing sheet. i know you can rotate them 90 degrees but i can't figure out how to rotate it

any outher angle.

 



Attached Images

130688_001.JPG

This user is offline

 

Thu, Apr 17, 2014 at 7:08:27 AM | rotating a viewport with multiple buildings

#2

teafoe5


site moderator|||
teafoe5 Avatar

Joined: Fri, Nov 12, 2010
1749 Posts
4 Stars: 47 Votes


The rotation on the sheet can only be 90 degrees. You can however rotate the crop region in your view and it will rotate your building.


This user is offline

View Website

Search this ThreadSearch this Thread | Page 1 of 1 |



Similar Threads

Thread/Thread Starter

Forum

Last Post

Replies

Rotating View Titles

Revit Building >> Technical Support

Sun, Feb 8, 2015 at 2:10:09 PM

9

Rotating Viewports without rotating title

Revit Building >> Technical Support

Wed, Apr 22, 2009 at 10:52:58 PM

7

Multiple Buildings - 1 Drawing Set

Revit Building >> Technical Support

Wed, Jun 4, 2008 at 1:46:05 PM

3

Showing multiple phases in one viewport

General Discussion >> Revit Project Management

Tue, Jun 16, 2009 at 8:02:56 PM

1

Documenting Multiple buildings

Revit Building >> Technical Support

Thu, Feb 7, 2008 at 3:19:48 PM

0

Site Stats

Members:

2161655

Objects:

23325

Forum Posts:

152479

Job Listings:

3

Sponsored Ads

Home | Forums | Downloads | Gallery | News & Articles | Resources | Jobs | Search | Advertise | About RevitCity.com | Link To Us | Site Map | Member List | Firm List | Contact Us

Copyright 2003-2010 Pierced Media LC, a design company. All Rights Reserved.

Page generation time: 0.9148

Login

User Name:

Password:

Remember Me  

Forgot Password?

Search Forums

Advanced Search

Search Forums

Advanced Search


Clear Highlights


Clear Highlights