|
|
|
Home | Forums |
Downloads | Gallery |
News & Articles | Resources |
Jobs | FAQ |
| Join |
Welcome !
|
28 Users Online (26 Members):
Show Users Online
- Most ever was 626 - Mon, Jan 12, 2015 at 2:00:17 PM |
Forums
|
Forums >> General Discussion >> Revit Project Management >> Pin Element Visual
|
|
|
active
Joined: Tue, May 22, 2012
9 Posts No Rating |
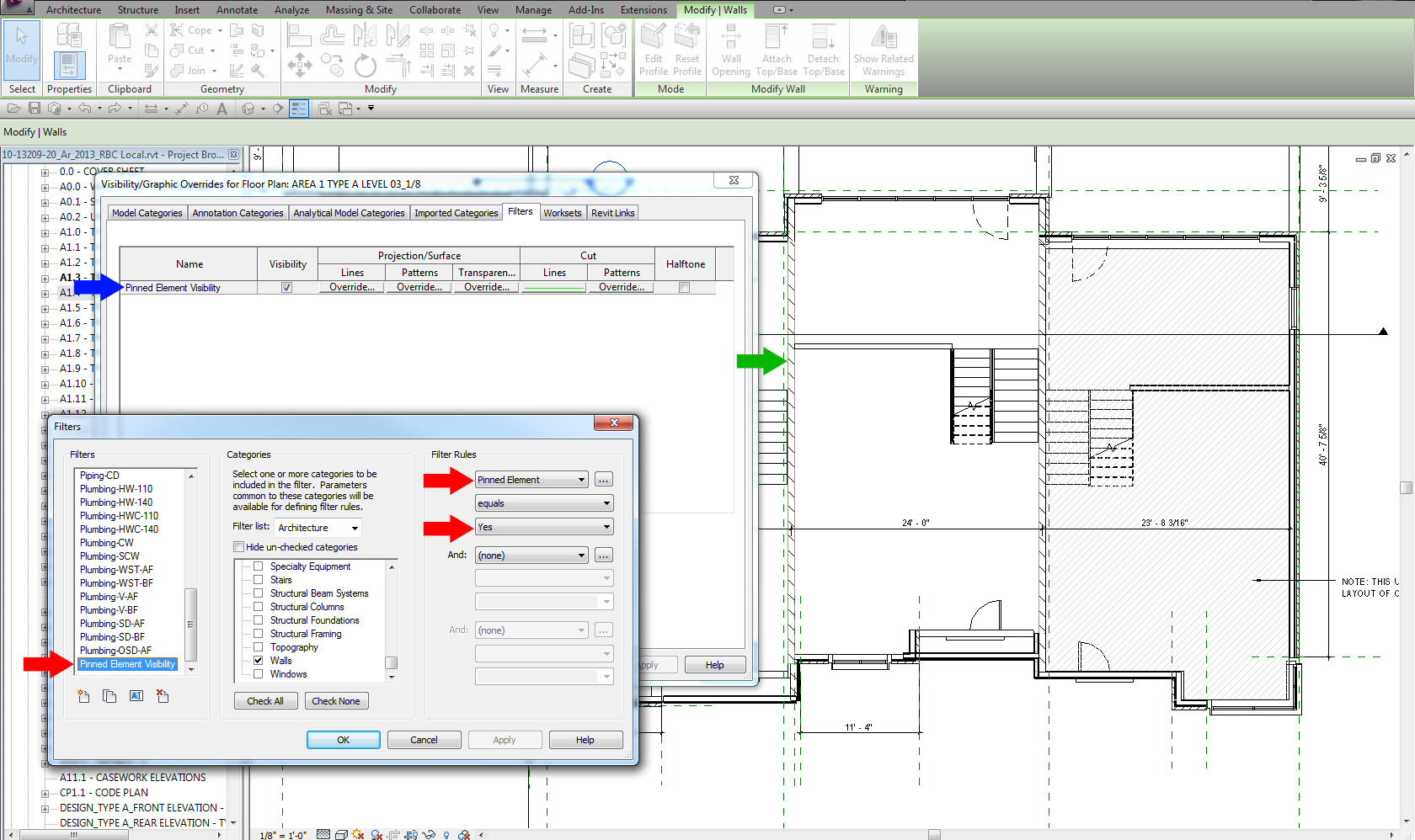
Is it possible to set a graphic override to display the pinned elements in a model? If so, whereis it set? I am trying to set this as a notifiaction to myself what walls have not been pinned as I start a new model.
Revit 2013
Thanks.
|
This user is offline |
|
 | |
|
|
active

Joined: Sun, Oct 19, 2008
101 Posts
 |
Yes, but could I suggest an alternative?
Why not just have a filter that turns the pinned walls (or elements) green (or blue, red..e.tc..)
Rather than leaving only the pinned walls/elements on, leave them on and turn them an easily readible color for other users to see.   assuming you're on a team).?.?
Just a thought. But yes, its possible.
-----------------------------------
RB Cameron
3D Medical Equipment
Download Revit Healthcare Models Now
Download Other Revit + 3dsMax Models Here |
This user is offline |
View Website
|
 |
|
active
Joined: Tue, May 22, 2012
9 Posts No Rating |
This would be great. I am going thru the filter set up now. Honestly we do not use filters much, so they are not something I knew how to set up.
I do not have pinned element as a filter type. Do you have to make that a parameter first?
|
This user is offline |
|
 |
|
active

Joined: Sun, Oct 19, 2008
101 Posts
 |
Yes, you'll need a filter-type parameter, and then a specific parameter in the element you want. So for the example I used, it was under the checkbox for Walls.
Again, you'd need to make this parameter active for other elements such as doors, windows...etc... but it is possible.
THE TRICK is to remember to check the box after pinning the object. It doesn't automatically know that once you pin an object, that it should checkbox itself.
So there is a disconnect of information that will need to be coordinated. Pretty awesome when it does work though, right?
Good luck!
-----------------------------------
RB Cameron
3D Medical Equipment
Download Revit Healthcare Models Now
Download Other Revit + 3dsMax Models Here |
This user is offline |
View Website
|
 |
 |
Similar Threads |
|
wall visual and door visual |
Revit Building >> Technical Support
|
Thu, Jul 23, 2009 at 11:46:39 AM
|
2
|
|
When to pin, When to lock - Best practices |
Revit Building >> Technical Support
|
Tue, Nov 27, 2007 at 8:43:11 AM
|
1
|
|
Pin Position |
Revit Building >> Technical Support
|
Tue, Oct 16, 2007 at 4:01:43 AM
|
1
|
|
when zooming lines glitching |
Revit Building >> Technical Support
|
Sun, Dec 19, 2021 at 7:22:55 AM
|
1
|
|
2'x2' Diemsional Grid |
Revit Building >> Technical Support
|
Wed, Feb 5, 2014 at 2:10:47 PM
|
1
|
 |
|
Site Stats
Members: | 2161655 | Objects: | 23325 | Forum Posts: | 152479 | Job Listings: | 3 |
|