|
|
|
Home | Forums |
Downloads | Gallery |
News & Articles | Resources |
Jobs | FAQ |
| Join |
Welcome !
|
54 Users Online (52 Members):
Show Users Online
- Most ever was 626 - Mon, Jan 12, 2015 at 2:00:17 PM |
Forums
|
Forums >> Revit Building >> Technical Support >> EQ Dimensions and Fixed Distances
|
|
|
active

Joined: Sat, Sep 4, 2010
173 Posts
 |
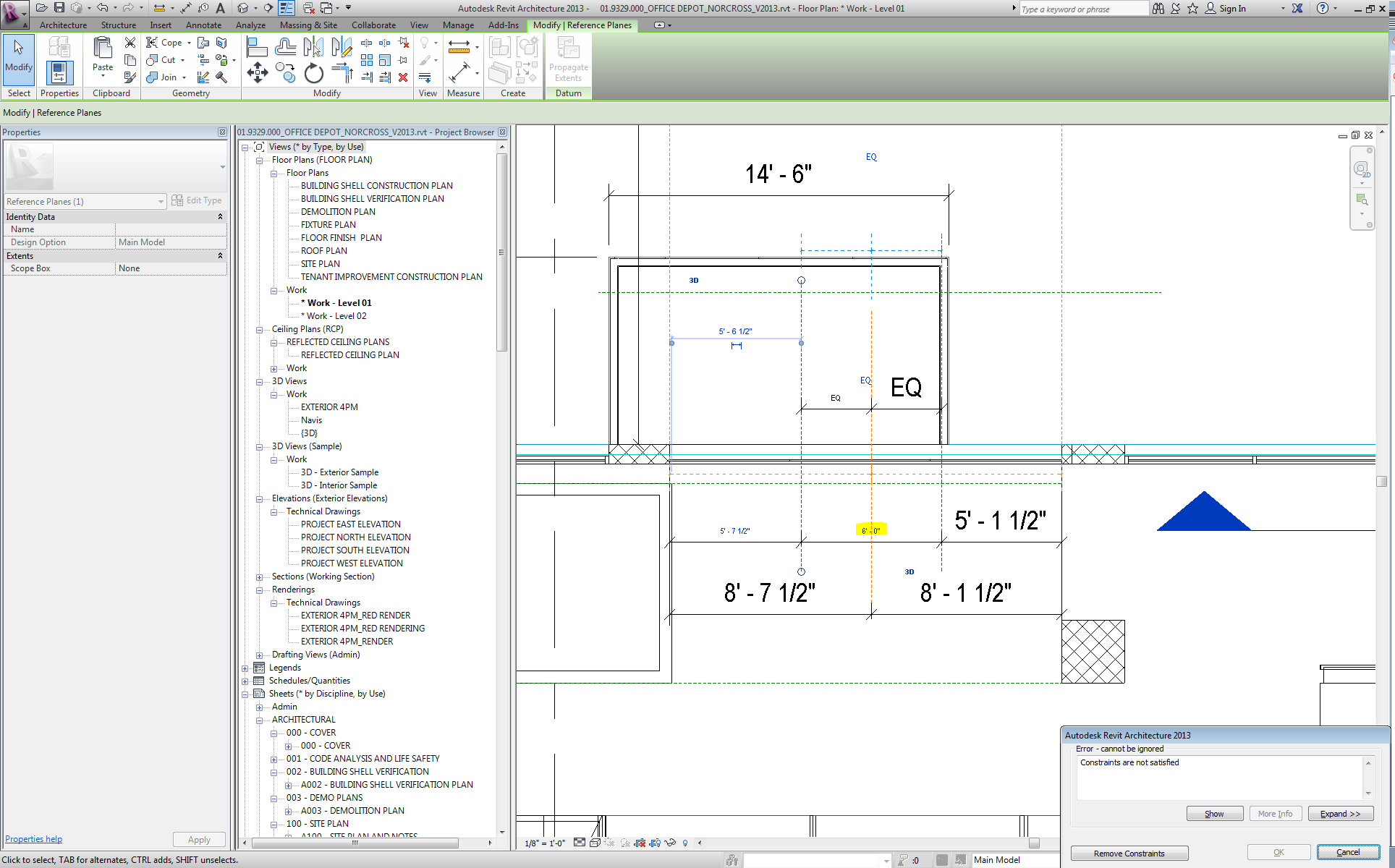
This has bugged me for a long time: If you have a fixed reference plane such as a Center (Left/Right) in a generic model family, and you create two reference planes on either side, why can't revit accept a fixed distance between the two reference planes equally from the fixed reference plane? It always says it has to remove the contraints and you're left to create it manually only to lose the ability to equally space. Why?
|
This user is offline |
|
 | |
|
|
active
Joined: Thu, Mar 29, 2012
113 Posts
 |
because you're locking the 1'0", unlock it and try again.
-dont put total length first
-put the equal measurement
-then put the total length
-then adjust the total lenght using a parameter
-if you dont need parameter, just switch it to "None" after adjusting the length
-----------------------------------
** dont be mad, i dont have much... i am homeless |
This user is offline |
|
 |
|
active

Joined: Sat, Sep 4, 2010
173 Posts
 |
Yes. That generally works. I guess I'm more curious about the order of operations in instances like these. There is a problem setting a fixed distance in relation to equal dimensions. In families creating the parameter appears to side step this limitation, but it persists in the project environment. Another example I have is laying out a curtain wall: I want a fixed distance for a sliding door opening while maintaining equal side lights. This occurs between two fixed reference planes with one more reference plane acting at the centerline. I first create two reference planes on either side of the extent of the curtain wall and pin them inplace. Then I set the center reference plane with equal dimensions relative to the outer pinned reference planes. Next I set up the remaining reference planes to begin setting up the desired division of the curtain wall into three sections - the outer sections being equal and the center being the fixed width for the door opening. These reference planes dividing the curtain wall are then set equal to the centerline which, in theory, should maintain equal dimensions regardless of the door size. Revit cannot accomplish this without breaking the contraints. I'm not seeing why this doesn't work. From what I can see is that a) the centerline will maintain fixed at the equal distance between the two pinned reference planes b) the door opening should remain centered relative to the center reference plane c) and the side lights should remain equal sizes as the opening is flexed. What am I missing?
|
This user is offline |
|
 |
|
active
Joined: Thu, Mar 29, 2012
113 Posts
 |
regarding your first step>>> i think you must use the outer border/grid of the curtain wall instead of using reference plane and pinning it.
another thing is, if you can, use the curtain grid command to create division into 3 section, then use it as a reference for your dimension.
but anyway, the attached file used curtain grid and reference plane. for your reference
-----------------------------------
** dont be mad, i dont have much... i am homeless |
This user is offline |
|
 |
|
active

Joined: Sat, Sep 4, 2010
173 Posts
 |
Thank you for your reply and the example file. However, the same problem persists in your example as well. The equality is maintained as I was previously trying to do, but it does not stay in place: it moves the entire curtain wall. The other only allows for the side lights to be flexible. Ideally the opening dimension would remain flexible operating to some degree as the parent of the side lights. This does not seem possible based on this feedback. You file was helpful though. I suppose I will have to work around these instances in a similar manner to your examples instead of trying to directly create the circumstance I want. Kinda buggy and annoying in my opionion though. Thanks again!
|
This user is offline |
|
 |
 |
Similar Threads |
|
Life Safety Plan Travel Distances? |
Revit Building >> Technical Support
|
Tue, Apr 24, 2007 at 2:29:47 PM
|
2
|
|
having trouble with bearing and distances |
Community >> Newbies
|
Mon, Jun 9, 2014 at 9:22:36 PM
|
9
|
|
Aligned dimensions for centering curtain wall door |
Revit Building >> Technical Support
|
Fri, Dec 23, 2011 at 6:26:40 AM
|
4
|
|
How to Scale Objects in Revit |
Revit Building >> Technical Support
|
Fri, Aug 25, 2017 at 10:51:46 AM
|
2
|
|
EQUAL CONSTRAINT DIMENSION |
Revit Building >> Tips & Tricks
|
Mon, Jan 10, 2005 at 1:06:29 PM
|
1
|
 |
|
Site Stats
Members: | 2161655 | Objects: | 23325 | Forum Posts: | 152479 | Job Listings: | 3 |
|