|
|
|
Home | Forums |
Downloads | Gallery |
News & Articles | Resources |
Jobs | FAQ |
| Join |
Welcome !
|
40 Users Online (38 Members):
Show Users Online
- Most ever was 626 - Mon, Jan 12, 2015 at 2:00:17 PM |
Forums
|
Forums >> Revit Building >> Technical Support >> Section not showing ceiling
|
|
|
site moderator|||

Joined: Fri, Nov 12, 2010
1749 Posts
 |
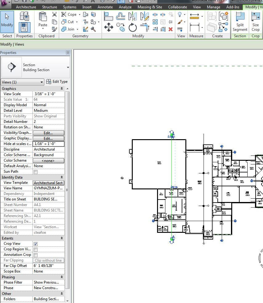
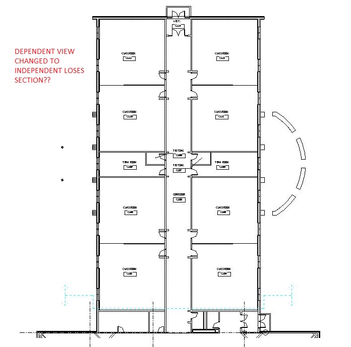
I have a FP view I created as a depended view, I cut my sections in the views then I created my Reflected Ceiling Plans and added ceilings. I decided I didn't want my FP views to be dependent anymore so I changed them to indepentent again. For some reason I can't see my section cuts I created earlier on the RCP and when I go to my section view I don't see my ceiling that I put in. However if I create a new section I see the section in my RCP and my ceiling in my section like I want. Whats going on? i'm assuming it has to do with creating my views as dependent but not sure??
I just noticed that the sections show on my overall plan but not on my independent views.. this must have happened after I changed them to independent, is there a way to get them to show in all views again?
Edited on: Fri, Jun 14, 2013 at 10:50:36 AM
Edited on: Fri, Jun 14, 2013 at 10:53:48 AM
Edited on: Fri, Jun 14, 2013 at 10:54:13 AM
|
This user is offline |
View Website
|
 | |
|
|
site moderator|||

Joined: Fri, Nov 12, 2010
1749 Posts
 |
|
This user is offline |
View Website
|
 |
|
site moderator|||
Joined: Tue, May 16, 2006
13079 Posts
 |
It has nothing to do with creating your views as dependent or not. There is a difference between plan views and detail views. Also, your section cuts can be set not to show in views smaller than.....
|
This user is offline |
|
 |
|
site moderator|||

Joined: Fri, Nov 12, 2010
1749 Posts
 |
I am so confused, maybe because its Friday. They are both plan views, I created them all the same way. The plan where it shows is 1/16" the one where it doesn't is 1/8" so its not hidden. I just saw another thing. When I click on the section I don't get any options for it, like its locked but if I click on other sections they are fine? I must have something messed up.
|
This user is offline |
View Website
|
 |
|
site moderator|||

Joined: Fri, Nov 12, 2010
1749 Posts
 |
Wow happy Friday. Someone created a section cut referencing another view, hence why I cant change anything.
|
This user is offline |
View Website
|
 |
 |
Similar Threads |
|
ceiling plan, light fixture not showing |
Community >> Newbies
|
Sun, May 24, 2015 at 5:05:30 PM
|
1
|
|
Ceiling Level Keeps Showing up |
Revit Building >> Technical Support
|
Sat, May 29, 2004 at 10:33:13 AM
|
4
|
|
Ceiling Views not showing |
Revit Building >> Technical Support
|
Tue, Apr 27, 2010 at 1:08:35 PM
|
2
|
|
Light Fixture on Sloped Ceiling Displays incorrectly in section |
Revit Building >> Technical Support
|
Wed, Jun 1, 2016 at 6:43:11 PM
|
6
|
|
Void extrusion not showing in section cut |
Revit Building >> Technical Support
|
Thu, Jun 12, 2014 at 12:36:06 PM
|
2
|
 |
|
Site Stats
Members: | 2161655 | Objects: | 23325 | Forum Posts: | 152479 | Job Listings: | 3 |
|