|
|
|
Home | Forums |
Downloads | Gallery |
News & Articles | Resources |
Jobs | FAQ |
| Join |
Welcome !
|
66 Users Online (64 Members):
Show Users Online
- Most ever was 626 - Mon, Jan 12, 2015 at 2:00:17 PM |
Forums
|
Forums >> Revit Building >> Technical Support >> Placing an opening through a wall 'island'
|
|
|
active
Joined: Mon, May 27, 2013
3 Posts No Rating |
Hi all,
I'm in the midst of trying to model an opening for a two-sided shelf in an 'island' within a livingroom, placed alongside a double-sided fireplace. I want the opening to pass-through to the partition on the opposite side of the island assembly, meaing that I want a seamless opening through, in the same material as the surrounding wall (gypsum). The opening would be used to hold firewood.
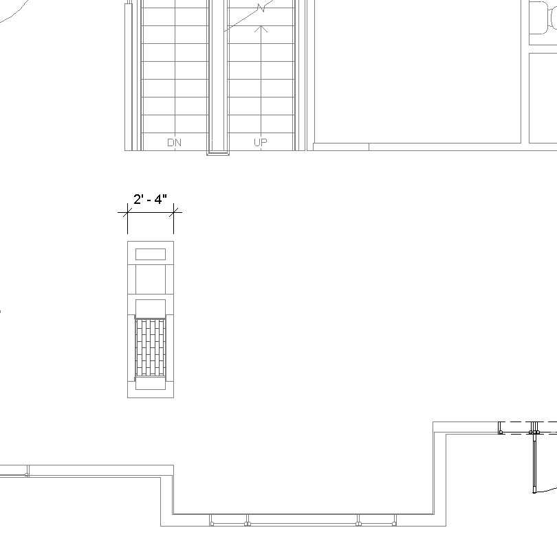
Can anyone provide any clues as to how I should go about doing this? I've uploaded an image of the island and the opening. As you can see, I have managed to cut out an opening profile on each side of the island assembly, but have not been able to 'join' the two.
I'm using Revit 2013.
Lend me a hand!
Thanks 
Edited on: Wed, Jun 5, 2013 at 12:00:00 PM
|
This user is offline |
|
 | |
|
|
site moderator|||
Joined: Tue, May 16, 2006
13079 Posts
 |
Create a simple window family that has the gyp bd around the opening ....
...or...
simply paint the interior edges with gyp bd.
|
This user is offline |
|
 |
|
active
Joined: Mon, May 27, 2013
3 Posts No Rating |
You haven't understood my problem. Again, the opening has to cross over to the other side of the island assembly. The island is 2'-4" deep, so creating an opening and painting the edges or adding a window will not solve the problem. As is visible in the uploaded image, openings have been created on each side of the island, such that there is an opening in the wall assembly, but nothing crossing over between the two walls, within the island.
I've uploaded a plan view, so that everyone can better understand my dilemma.
Edited on: Wed, Jun 5, 2013 at 11:57:20 AM
|
This user is offline |
|
 |
|
site moderator|||

Joined: Fri, Nov 12, 2010
1749 Posts
 |
Create and in-place family the HxWxD that you need and make it the same material as your gypsum board (or whatever material you want it to be.
|
This user is offline |
View Website
|
 |
|
site moderator|||
Joined: Tue, May 16, 2006
13079 Posts
 |
No - I didn't miss-understand. You did not indicate how thick the wall was. That could have been one - thick wall. You need to be more descriptive in your question.
The window stiil works as one solution. Hosted in one wall but with the sides adjustable to pass through the other wall. As does the paint, if the wall is modeled as a thick wall with two wyuthes of studs. So too will an in-place family that goes through your opening.
|
This user is offline |
|
 |
|
active
Joined: Mon, May 27, 2013
3 Posts No Rating |
Thanks for your help + insights, everyone! Sorry for not being descriptive enough in explaining my Revit issue 
|
This user is offline |
|
 |
 |
Similar Threads |
|
Tapered Opening |
Revit Building >> Technical Support
|
Fri, Apr 14, 2006 at 9:34:26 AM
|
3
|
|
When use ''door opening'' dasced lines present only at 1:50 but not at 1:400 f.e |
Revit Building >> Technical Support
|
Fri, Jun 11, 2021 at 7:44:53 AM
|
5
|
|
Opening Tool + Phases |
Revit Building >> Technical Support
|
Wed, Jan 4, 2006 at 4:58:12 PM
|
2
|
|
problem with wall intersection |
Revit Building >> Technical Support
|
Thu, Sep 7, 2006 at 12:18:32 AM
|
2
|
|
Holding a wall off of a column line |
Revit Building >> Technical Support
|
Thu, Jul 20, 2006 at 3:08:57 PM
|
2
|
 |
|
Site Stats
Members: | 2161655 | Objects: | 23325 | Forum Posts: | 152479 | Job Listings: | 3 |
|