|
|
|
Home | Forums |
Downloads | Gallery |
News & Articles | Resources |
Jobs | FAQ |
| Join |
Welcome !
|
47 Users Online (45 Members):
Show Users Online
- Most ever was 626 - Mon, Jan 12, 2015 at 2:00:17 PM |
Forums
|
Forums >> Revit Building >> Technical Support >> Phasing / Floor Infill
|
|
|
active

Joined: Thu, Feb 24, 2011
29 Posts
 |
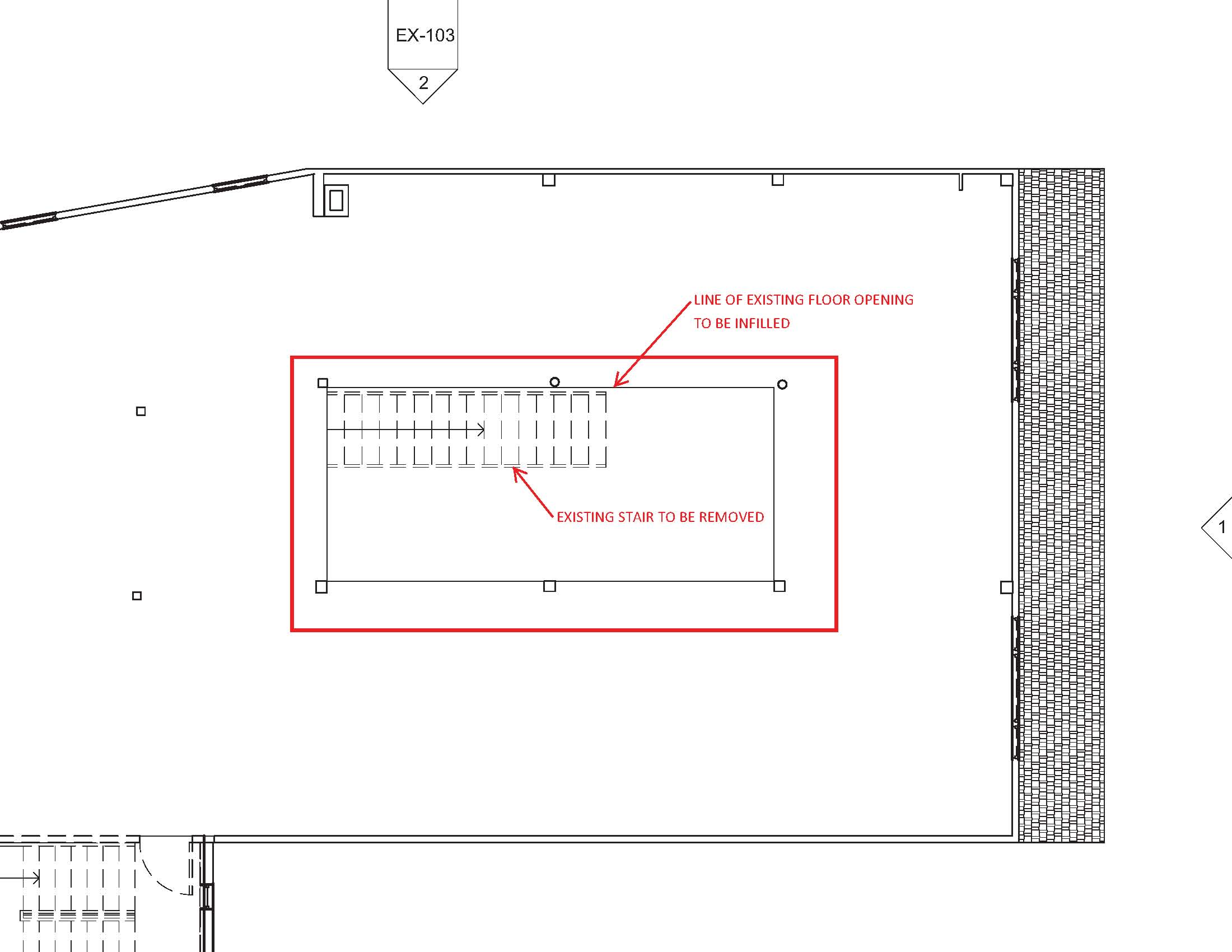
I'm working on a renovation project where there are several existing stairs being removed and relocated, which will require infilling the existing stair opening in the floor. (see image)
Is there a way to show phasing when infilling the floor? As I see it now, I have two options: 1. create a new floor in the new construction phase to infill the existing stair opening, or 2. Edit the boundary of the existing floor and remove the boundary at the opening where the stairs have been removed.
#1 seems like the best choice, however I don't want to see the outline of the infill as a bold line. #2 does not seem like a good choice, because by editing the boundary of the existing floor, there will be no way to differetiate between existing and infill floor construction.
What is the best practice for creating floor infills?
Edited on: Fri, Mar 2, 2012 at 3:26:02 PM
|
This user is offline |
|
 | |
|
|
active
Joined: Thu, Sep 13, 2007
63 Posts
 |
IMHO, the best option is to create a new floor in the existing opening because this is what will be happening in real life.
You can use the Join Geometry tool and it will get rid of the lines if they are both the same material. You can also
create a new finish floor (wood, carpet, tile, stone) in the whole room to "cover up" the resulting joint lines. You can also
use the linework tool to make the lines invisible in the views you apply it to. Hope this helps.
|
This user is offline |
|
 |
|
active

Joined: Thu, Feb 24, 2011
29 Posts
 |
Stealth,
Thank you, this seems like the most practical way to proceed.
|
This user is offline |
|
 |
 |
Similar Threads |
|
Infill walls and phasing |
Revit Building >> Technical Support
|
Mon, Feb 19, 2018 at 10:03:25 AM
|
10
|
|
Automatic infill phasing |
General Discussion >> Revit Project Management
|
Fri, Jan 22, 2021 at 3:08:59 PM
|
2
|
|
infill wall alignment to host wall |
Revit Building >> Technical Support
|
Tue, Oct 17, 2017 at 12:58:13 PM
|
2
|
|
Floor pattern not visible in plan view |
Revit Building >> Technical Support
|
Mon, Oct 24, 2016 at 11:44:30 PM
|
9
|
|
wall infills |
Revit Building >> Technical Support
|
Fri, Jun 29, 2012 at 12:26:17 PM
|
3
|
 |
|
Site Stats
Members: | 2161655 | Objects: | 23325 | Forum Posts: | 152479 | Job Listings: | 3 |
|