|
|
|
Home | Forums |
Downloads | Gallery |
News & Articles | Resources |
Jobs | FAQ |
| Join |
Welcome !
|
37 Users Online (35 Members):
Show Users Online
- Most ever was 626 - Mon, Jan 12, 2015 at 2:00:17 PM |
Forums
|
Forums >> Revit Building >> Technical Support >> Structural column acts strange in medium scale
|
|
|
active
Joined: Mon, Mar 23, 2009
5 Posts No Rating |
Hello everybody,
This is my first thread in this forum so please don't be very critical about it 
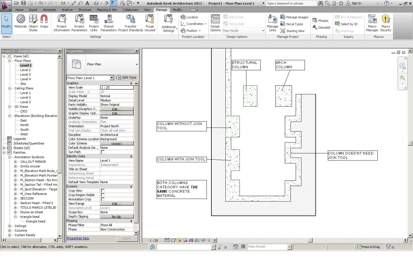
The case is that my structural colums dont act like it should, well in some cases it does. I attached the explanatory image.
Does enybody encountered problems like this? Have I missed any threads about this?
Thank you in advance
|
This user is offline |
|
 | |
|
|
active

Joined: Mon, Jul 13, 2009
273 Posts
 |
The problem is that you have to set the correct category, and then join the column when its needed.
Here you have an example file
|
This user is offline |
|
 |
|
active
Joined: Mon, Mar 23, 2009
5 Posts No Rating |
I do understand the issue with differences between structural and architectural columns, but when i join walls and structural column, somehow column and 2 layers of plasterboards and thermal insulation merges into one. pic 1
|
This user is offline |
|
 |
 |
Similar Threads |
|
MEDIUM SCALE FILL COLOR AND PATTERN |
Revit Building >> Technical Support
|
Tue, Sep 11, 2012 at 7:06:12 AM
|
2
|
|
Creating Wall Pilasters in revit |
Revit Building >> Technical Support
|
Thu, Apr 17, 2014 at 11:26:21 AM
|
1
|
|
structural column visability |
Revit Building >> Technical Support
|
Thu, Sep 8, 2011 at 1:14:26 PM
|
0
|
|
Structural column doesn't define room boundary (but only sometimes!) |
Revit Building >> Technical Support
|
Wed, Apr 1, 2015 at 10:23:56 AM
|
4
|
|
Visibility graphics of a structural column |
General Discussion >> Revit Project Management
|
Mon, Aug 16, 2010 at 8:21:00 AM
|
3
|
 |
|
Site Stats
Members: | 2161655 | Objects: | 23325 | Forum Posts: | 152479 | Job Listings: | 3 |
|