|
|
|
Home | Forums |
Downloads | Gallery |
News & Articles | Resources |
Jobs | FAQ |
| Join |
Welcome !
|
83 Users Online (81 Members):
Show Users Online
- Most ever was 626 - Mon, Jan 12, 2015 at 2:00:17 PM |
Forums
|
Forums >> Revit Building >> Technical Support >> Leader Line Origin in Ceiling Tag
|
|
|
active
Joined: Wed, Feb 17, 2010
2 Posts No Rating |
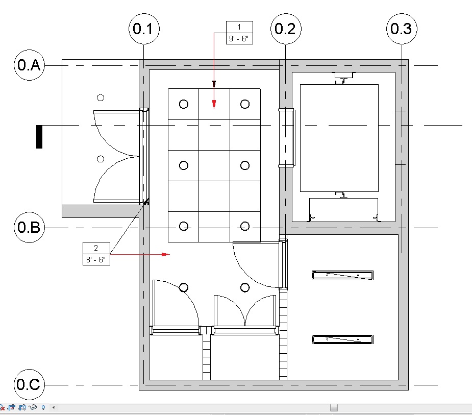
Its Possible to change the location of where the leader points in a ceiling tag? I would like it to point to the surface of the ceiling rather than the boundary of the ceiling. The attached document explains it (the red arrows is where i would like the tag to point at.
Thanks for any help.
|
This user is offline |
|
 | |
|
|
active
Joined: Wed, Oct 7, 2009
654 Posts
 |
With the tag selected try changing the leader from Attached End to Free End on the options bar. I'm assuming you can do that with a ceiling tag, I don't use them but it works for the other types of tags I use.
|
This user is offline |
|
 |
|
site moderator|||

Joined: Tue, May 22, 2007
5921 Posts
 |
"With the tag selected try changing the leader from Attached End to Free End on the options bar. I'm assuming you can do that with a ceiling tag, I don't use them but it works for the other types of tags I use."
Ditto.
-----------------------------------
I Hope and I Wish to LEARN more, and more, and more.... REVIT |
This user is offline |
|
 |
|
active
Joined: Wed, Feb 17, 2010
2 Posts No Rating |
Works Perfectly,
Thanks a lot.
|
This user is offline |
|
 |
 |
Similar Threads |
|
Positioning the leader on a tag. |
Revit Building >> Technical Support
|
Thu, Aug 6, 2015 at 12:16:39 PM
|
1
|
|
Leader origin for multi-line keynote text |
Revit Building >> Technical Support
|
Thu, Jul 5, 2012 at 9:43:50 AM
|
1
|
|
Tag Leader Origin Location |
General Discussion >> Wishlist
|
Sat, Jun 23, 2018 at 3:53:42 AM
|
10
|
|
Ceiling Tag associate to Center of Ceiling instead of Perimeter. |
Revit Systems >> Technical Support
|
Mon, Feb 8, 2016 at 12:46:31 PM
|
3
|
|
ceiling annotation tag custom family |
General Discussion >> Revit Project Management
|
Mon, May 14, 2012 at 11:22:45 AM
|
3
|
 |
|
Site Stats
Members: | 2161655 | Objects: | 23325 | Forum Posts: | 152479 | Job Listings: | 3 |
|