|
|
|
Home | Forums |
Downloads | Gallery |
News & Articles | Resources |
Jobs | FAQ |
| Join |
Welcome !
|
25 Users Online (23 Members):
Show Users Online
- Most ever was 626 - Mon, Jan 12, 2015 at 2:00:17 PM |
Forums
|
Forums >> Community >> Newbies >> Sample Project - Light Industrial/Commercial
|
|
|
active
Joined: Sun, May 22, 2011
1 Posts No Rating |
Hi everyone,
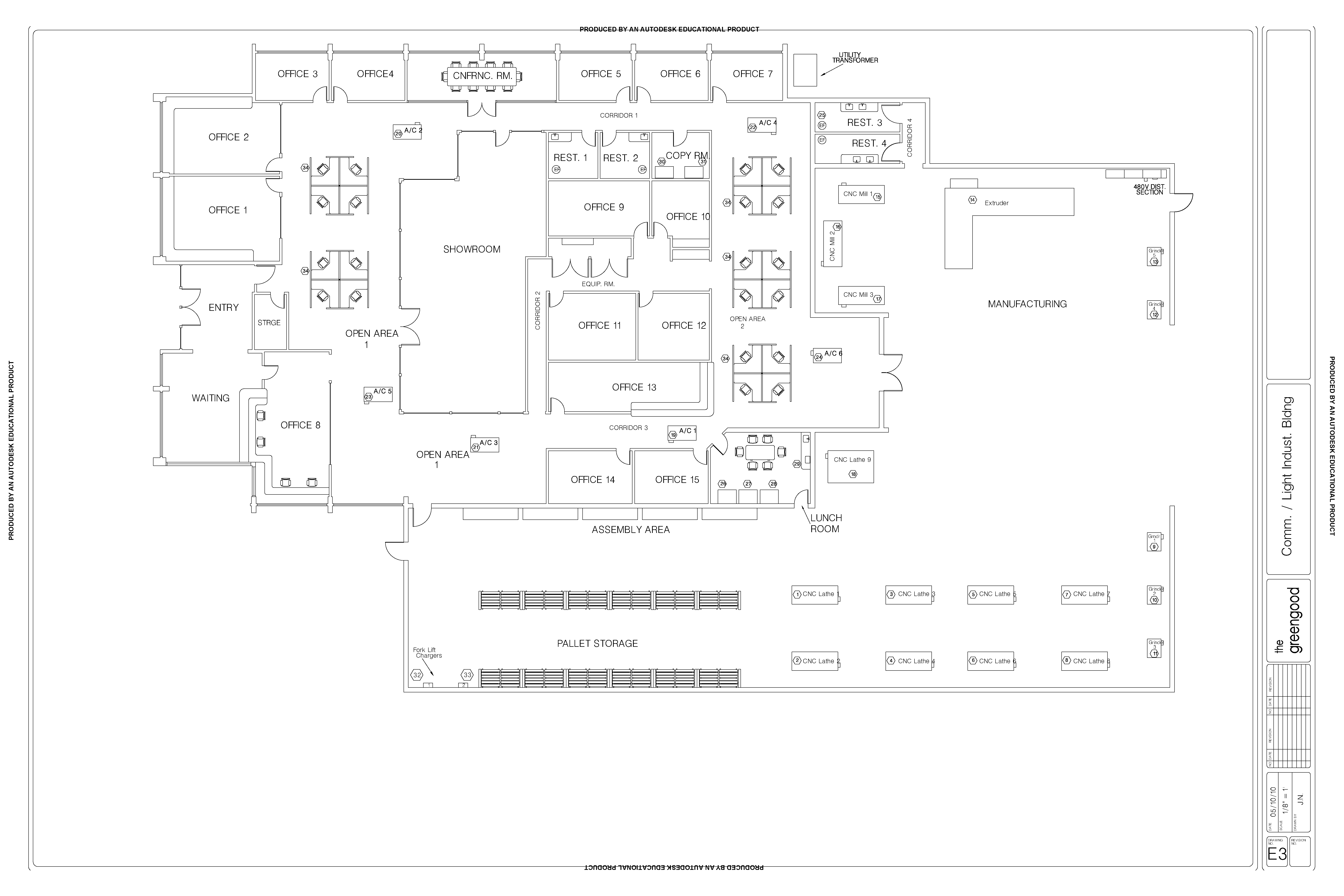
I have been looking for a Revit Arch project of a commericial/light industrial building. A single level building with some manufacturing would be ideal. The file would be ready for an engineering firm to take and develop the HVAC/Power systems. I'm an engineering student and I'm looking to teach myself RMEP. Getting such a file would be very helpful. To get an idea, I've attached a floorplan of such a building.
Does anyone know where I could find such a sample? Is anyone willing to share one with me?
Thank you for your time.
Respectfully yours,
Jose
|
This user is offline |
|
 |
 |
Similar Threads |
|
Large Project - Help & advise please!! |
Community >> The Studio
|
Mon, Mar 1, 2010 at 7:48:47 AM
|
2
|
|
Sample project file |
Community >> Newbies
|
Tue, Aug 24, 2010 at 9:20:41 PM
|
2
|
|
Revit MEP Sample Project |
General Discussion >> Revit Project Management
|
Tue, Jul 2, 2013 at 3:50:11 AM
|
0
|
|
Where to find sample projects. |
Revit Building >> Technical Support
|
Fri, Dec 21, 2007 at 8:00:45 AM
|
4
|
|
Wanted: Commercial Interior Design Datasets |
Community >> The Studio
|
Thu, Jan 24, 2008 at 4:32:45 PM
|
2
|
 |
|
Site Stats
Members: | 2161582 | Objects: | 23325 | Forum Posts: | 152465 | Job Listings: | 3 |
|