|
|
|
Home | Forums |
Downloads | Gallery |
News & Articles | Resources |
Jobs | FAQ |
| Join |
Welcome !
|
10 Users Online (8 Members):
Show Users Online
- Most ever was 626 - Mon, Jan 12, 2015 at 2:00:17 PM |
Forums
|
Forums >> Revit Building >> Technical Support >> Interesting Roof - Having Troubles
|
|
|
Joined: Thu, Apr 30, 2009
2 Posts No Rating |
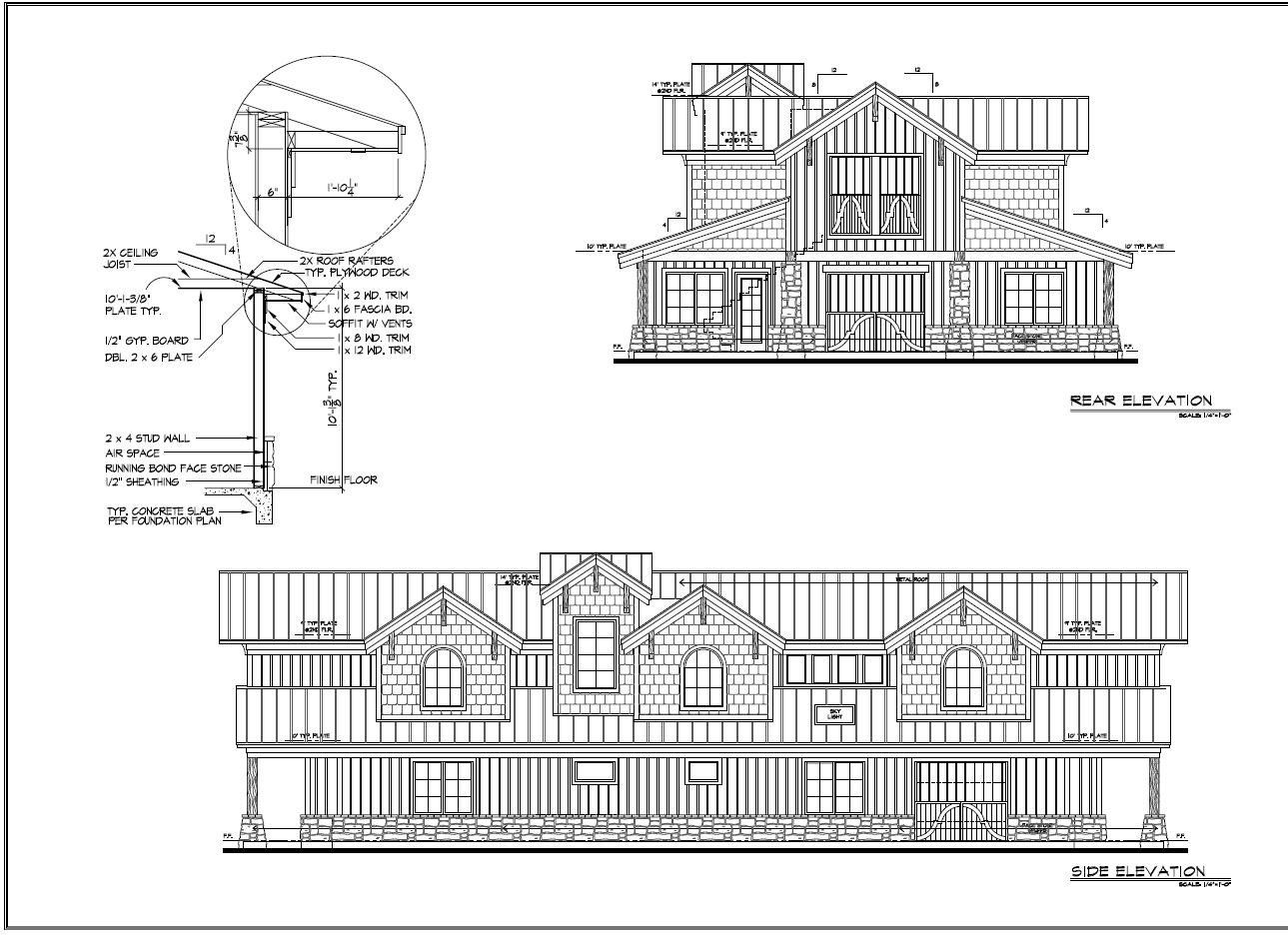
I'm using Revit 2011 Arch. trying to put together an interesting roof to top a stair tower (see attached). All I've been able to do so far is build two gable roofs on top of each other. When I join them, the eaves remain on all sides (see drawings - only rakes). I've tried to cut openings using the dormer tool. No luck. Any advice? Thanks!
|
This user is offline |
|
 | |
|
|
site moderator|||

Joined: Tue, May 22, 2007
5921 Posts
 |
You can create that in one piece, "roof by footprint", just draw the shape (square right??) then split those 4 lines in the midlle, then use the "Slope Arrow" where you can give the "slope / height of tail" to those Arrows, you must create 8 slope arrows (2 for each side: ----><-----)
-----------------------------------
I Hope and I Wish to LEARN more, and more, and more.... REVIT |
This user is offline |
|
 |
|
Joined: Thu, Apr 30, 2009
2 Posts No Rating |
Typhoon, I'll give it a shot. The other thing I just thought of late last night was joining the geometry and then using two void forms to get rid of the excess "roof". I'll try your method out later today.
|
This user is offline |
|
 |
|
site moderator|||

Joined: Fri, Apr 14, 2006
584 Posts
 |
Typhoon's method is definitely the way to go with this roof. The Void method will work but is a lot more steps.
|
This user is offline |
|
 |
|
active

Joined: Thu, Mar 17, 2005
1231 Posts
 |
That's the ticket. Slope arrows but you don't have to split the gable lines. Leave them as 4 gables and let the slope arrows do the work. See attached image and project file.
Edited on: Fri, Sep 10, 2010 at 9:54:01 AM
-----------------------------------
.
FULL 'DOWNLOAD ACCESS' to all 850+ CADclips videos for only $150
|
This user is offline |
View Website
|
 |
 |
Similar Threads |
|
Teaching Revit - How to Make it Interesting |
Workflow & Implementation >> Training
|
Tue, Oct 6, 2009 at 7:55:48 AM
|
9
|
|
Hello, new user troubles |
Community >> Newbies
|
Tue, Jul 11, 2023 at 5:59:30 AM
|
2
|
|
Fire Place Troubles |
Revit Building >> Technical Support
|
Thu, Jan 16, 2014 at 7:48:37 AM
|
1
|
|
work plane troubles |
Community >> The Studio
|
Wed, Jan 25, 2006 at 8:36:53 PM
|
1
|
|
car and tree families for plan, section and elevation drawings |
General Discussion >> Wishlist
|
Sun, Feb 10, 2013 at 10:41:45 AM
|
0
|
 |
|
Site Stats
Members: | 2161655 | Objects: | 23325 | Forum Posts: | 152479 | Job Listings: | 3 |
|