|
Forums >> Revit Building >> Technical Support >> Wall display issue
|
|
|
active
Joined: Thu, Aug 13, 2009
4 Posts No Rating |
Hi everyone. I'm having, what I presume to be, a display issue. A few days ago I noticed that a wall in my Revit model is not displaying correctly in certain views. The wall does not display at all in any of my plan views (Both a 1/8” Orientation plan and a ¼” full size plan). The wall displays correctly in all section views. The wall is phased correctly, is in the correct workset and the views have no filter applied which would be hiding it. I’ve checked to make sure that the wall has not been hidden in any of the views or a plan region is obscuring it. I’ve also checked both local copies and the Central File, and in all files the wall is missing from the plan views. Approximate file size is ~120megs, it is an addition onto an existing building w a New and Existing phase. Does anyone have any suggestions!? Am I missing something? I’m @ about 99% CDs and ready to just “fake” it in w/ detail lines and filled regions to get the project out the door.
|
This user is offline |
|
 |
|
|
|
active
Joined: Wed, Jun 4, 2008
7 Posts No Rating |
I'm having the same issue with two walls in my plan in revit 2011. One of the walls I had issues with I was able to cut and paste "aligned in same place" and the wall showed up. I have tried this method with the other walls that are not showing in plan but it didn't work. I have resorted to 2d drafting to fake it in. No phasing, no plan regions. Anybody know how to fix this???
|
This user is offline |
|
 |
|
site moderator|||
Joined: Tue, May 16, 2006
13079 Posts
 |
M1GREERE - You say you are using phases? Cycle through them in your view properties and see if the wall shows.Most users really do not understand the different view setting terminology. And you did reveal hidden elements? MLB24 - There should be no reason to use 2D drafting. How did you copy in order to paste aligned - same place? You had to have a view it did show up in - what was that? More information could help us. Design options? Did you heck reveal hidden elements? You are sure nothing has been assigned to a phase? A snapshot of the wall's properties and your view with view properties would help. BTW - screen hunter is free and produces a very small gif file for posting here.
|
This user is offline |
|
 |
|
active
Joined: Thu, Aug 13, 2009
4 Posts No Rating |
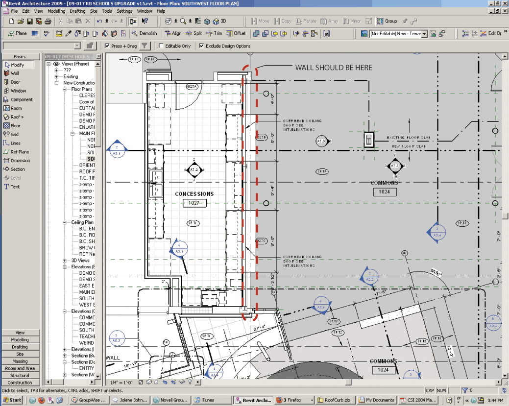
WWHub, Attached are a Floor Plan view showing the location of the missing wall & a wall section showing the wall in section. I also grouped the wall and exported it and have attached it as a Rvt file. The wall is properly phased: it is in Phase "New Construction" and has not been demolished. We do have design options enabled in the model but the wall is not part of any design option, it is part of "main model" like all the adjacent objects. When using the reveal hidden elements command the wall does NOT show up. The wall also resides on the correct workset "New-Exterior Enclosure" which IS visible in the floor plan view. Also, the wall does not appear in any of my floor plan views, but all section views.
|
This user is offline |
|
 |
|
active
Joined: Thu, Aug 13, 2009
4 Posts No Rating |
Whoops, Attached wrong wall section JPG... here's correct one.
|
This user is offline |
|
 |
|
active
Joined: Wed, Jun 4, 2008
7 Posts No Rating |
WWHub I agree, I prefer not to 2D draft and model everything that I can. I copied and pasted from a section view where the wall is visible. It also shows up in elevation - just not in plan view. I do not have design options implemented and I have checked hidden elements, and varying view range settings (cut plane is set to 4'-0" now). This is a new house so I haven't touched phasing. I am attaching a file (not) showing the wall in plan with the view properties open and a section view with the wall properties open. I would love not to 2D draft this wall!!! Thanks in advance for your time.
|
This user is offline |
|
 |
|
active
Joined: Thu, Aug 13, 2009
4 Posts No Rating |
Whoops, Attached wrong wall section JPG... here's correct one.
|
This user is offline |
|
 |
|
active
Joined: Thu, Apr 29, 2010
1 Posts No Rating |
Try to adjust the view range of your section cut
|
This user is offline |
|
 |
|
site moderator|||
Joined: Tue, May 16, 2006
13079 Posts
 |
M1.... I agree with ggail. I think I see a wall - are you cutting through the sill and not the opening?
|
This user is offline |
|
 |
|
active
Joined: Sun, Apr 25, 2004
1207 Posts
 |
Also be sure you do not have a view filter that turns the wall off. Your attachment doesn't provide enough complete information, but the wall in question has a type comment of ' PLEASE GO AWAY'. This is very suspicious as a view filter that looks for this type comment could have been established to turn off this wall. To fix, either go to the VG of the view and go to the filters tab and see if one has been applied and if so turn off. Another option is to go to the type properties of the wall and remove the type comment. FYI, to troubleshoot view problems such as this I duplicate the view and see if the object in question now shows up. Since any object over-rides are view specific this exposes if something has been hidden by someone or via a filter. Also as others have suggested, it may be a view range issue. In any case if the wall is in the model and visible in one view you will never have to resort to drafting lines to display it in another. There is always a cause for the display issue and solvable.
-----------------------------------
Tom www.reviteer.com http://twitter.com/Reviteer |
This user is offline |
View Website
|
 |
|
|
|
active
Joined: Wed, Jun 4, 2008
7 Posts No Rating |
Cut plane is set to 4'-0". The sill is at 5'-8". I have duplicated the view - wall still missing - so I don't think I have an override issue. I felt like it was a view range/cut plane issue originally and have tried many variations with no success.
|
This user is offline |
|
 |
 |