|
|
|
Home | Forums |
Downloads | Gallery |
News & Articles | Resources |
Jobs | FAQ |
| Join |
Welcome !
|
36 Users Online (34 Members):
Show Users Online
- Most ever was 626 - Mon, Jan 12, 2015 at 2:00:17 PM |
Forums
|
Forums >> Revit Building >> Technical Support >> phases not showing proper
|
|
|
active
Joined: Wed, Aug 20, 2008
318 Posts
 |
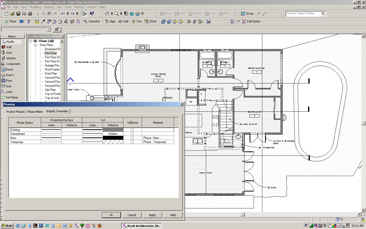
How the hell do you get this to work? here is a screen shot. What im trying to do is this.: Existing walls to show normal, no fill, regular line. New walls to be filled in with a tone like grey. demo walls to be dotted. So Everyrthing is OK except the new walls will not be changed......the exiting walls can be given a tone (like the picture) but I cant get it to work the way Ive noted above. What is going on please?!!!!!?!?!?!? If you adjust the graphic overrides on the phase window, you get nothing changing regarding the new walls. even if you tell it to have 16 thick lines and pink fill.....nothing......although if I did that with the existing walls it works fine? what gives? the typical way Architects draw new and existing and demo walls can not be satified... I know Im missing something but curse its frustrating when a dialog box simply does not repsond....
|
This user is offline |
View Website
|
 | |
|
|
active

Joined: Mon, Feb 12, 2007
51 Posts
 |
Go to Manage and select Phases. You can use filters and graphic overides to achieve what you want. See attached screen shots:
-----------------------------------
stanmpd
Belz A&C
Memphis, TN |
This user is offline |
View Website
|
 |
|
active
Joined: Wed, Aug 20, 2008
318 Posts
 |
Thats what im saying man, when I do that for my "new walls" they simply dont change. I can assign any colors and sizes, but the view doesn't get changed.....although that does work with the existing walls etc...
|
This user is offline |
View Website
|
 |
|
active

Joined: Mon, Feb 12, 2007
51 Posts
 |
Make sure your phase in the phase for the view you are working on is not set to Project Completion. Sometimes that will mess it up. The other thing I did was to set the material for our metal studs to a solid material that was gray. It will show up on the New Construction phase as a grey tone, but not show up on existing walls. Hopefully I am understanding what you are asking and not frustrating you even more.
-----------------------------------
stanmpd
Belz A&C
Memphis, TN |
This user is offline |
View Website
|
 |
|
active
Joined: Wed, Aug 20, 2008
318 Posts
 |
Thanks for the last reply. I have tried that with the material itself being shaded. but just wanted this to work, so your image helped me out though. It was in the first part of the Phase filters. you have to make sure that it says "overridden" in the phase under the "new" column so that when you DO go into the visibility/graphics box the changes you make take effect. otherwise it still will defer to the "catergory" if thats what it says in the phase filter itself. SO thats how its done. your double screen shot showing both dialog boxes helped a little more than my single window of the VG dialog box.
|
This user is offline |
View Website
|
 |
|
active

Joined: Mon, Feb 12, 2007
51 Posts
 |
Well, I'm glad I helped out some. It's a great program even though it can frustrate the crap out of you at times.
-----------------------------------
stanmpd
Belz A&C
Memphis, TN |
This user is offline |
View Website
|
 |
|
active

Joined: Thu, Mar 17, 2005
1231 Posts
 |
Having the view set to 'Course' detail can also play a part. . . . .
-----------------------------------
.
FULL 'DOWNLOAD ACCESS' to all 850+ CADclips videos for only $150
|
This user is offline |
View Website
|
 |
 |
Similar Threads |
|
Showing multiple phases in one viewport |
General Discussion >> Revit Project Management
|
Tue, Jun 16, 2009 at 8:02:56 PM
|
1
|
|
showing inserts in existing phases |
Revit Building >> Technical Support
|
Thu, May 10, 2007 at 3:48:51 PM
|
1
|
|
Phases and linked files |
Revit Building >> Technical Support
|
Thu, Dec 20, 2007 at 9:36:41 AM
|
2
|
|
Capabilities to isolate phases |
General Discussion >> Wishlist
|
Tue, Nov 28, 2006 at 5:43:02 AM
|
2
|
|
Demo Plan with multi phases |
Community >> Newbies
|
Tue, Jul 28, 2015 at 7:34:43 AM
|
1
|
 |
|
Site Stats
Members: | 2161655 | Objects: | 23325 | Forum Posts: | 152479 | Job Listings: | 3 |
|