|
|
|
Home | Forums |
Downloads | Gallery |
News & Articles | Resources |
Jobs | FAQ |
| Join |
Welcome !
|
44 Users Online (42 Members):
Show Users Online
- Most ever was 626 - Mon, Jan 12, 2015 at 2:00:17 PM |
Forums
|
Forums >> Revit Building >> Technical Support >> Are you a roof expert? I need some roof help...
|
|
|
active
Joined: Mon, Mar 19, 2007
78 Posts No Rating |
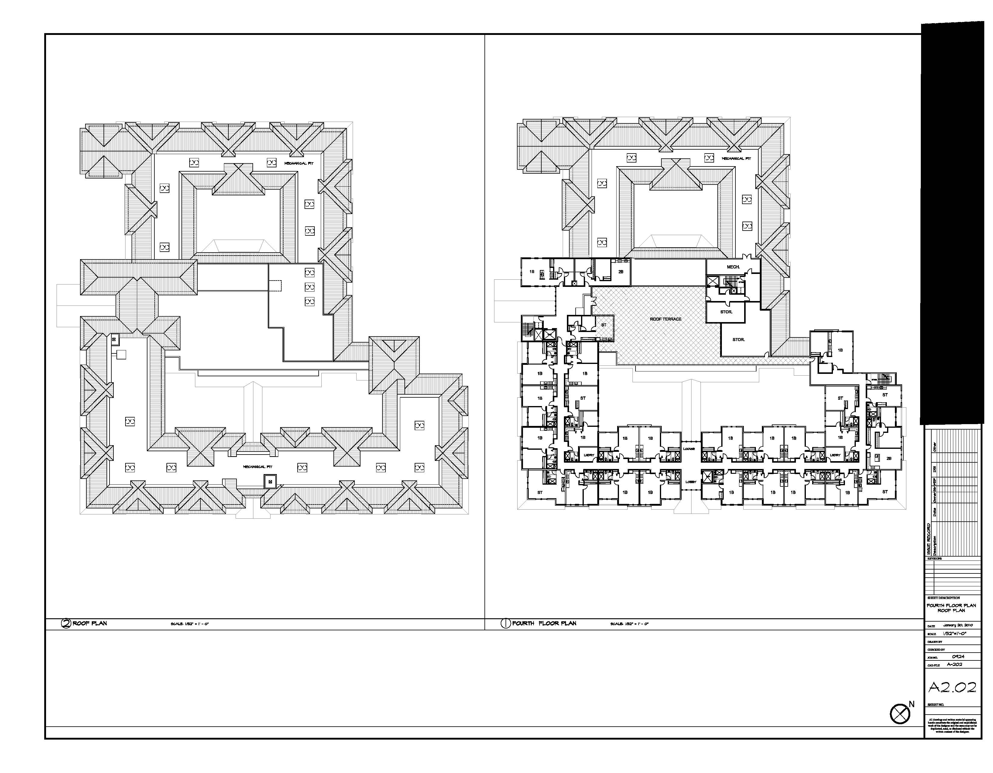
We are currently working on a large senior care facility. We started the drawings in AutoCAD and are now transferring that information and building the model in Revit. The roofs in particular are giving me some hiccups. The attached jpgs are exports from CAD. They show the roof plan and elevations. The pdf is my attempt at trying to build part of the roof. The part that I cannot figure out is the gable that comes over the ridge into the mechanical pit (as illustrated in A-202 but not in P4 Roof Plan, see below). Also, I think that I need to make two roofs to accurately model the gable over the him (see A-202 on the north facade and 1/A302). I am just trying to block everything out right now and will be adding the detail later. Thanks for any assistance.
|
This user is offline |
|
 | |
|
|
active
Joined: Thu, Jul 24, 2008
1 Posts No Rating |
Looks to me like you could increase the pitch to the connector to hide the pit @ it's present elevation. By doing this you will still remain under the ridgeline of the adjacent roofs.
|
This user is offline |
|
 |
|
active
Joined: Mon, Mar 19, 2007
78 Posts No Rating |
The roof pitch will remain at 6 / 12", so that isn't really an option. I have attached an image of a diagrammatic section to illustrate what is happening with the roof in question. Thanks again for any assistance.
|
This user is offline |
|
 |
|
active
Joined: Wed, Oct 7, 2009
654 Posts
 |
Ok, I think I see what you are asking about. You want to model the little return into the pit, correct? There are a few ways to do that. The first would be to do like you mentioned and model a second roof. Another way (and this is going to require a little more time and effort) is to make it the same roof. To do that you will need to figure out how high above your reference level the mechanical pit eaves will be, then in the instance properties of the sketch lines set the offset to that number. I attached a couple of images of what I am talking about.
|
This user is offline |
|
 |
|
active
Joined: Mon, Mar 19, 2007
78 Posts No Rating |
That's exactly what I'm trying to do, TKennedy. I'll give it a shot and let you know how it goes. Another question... In the attached jpgs, you will see that there is a gable over a hip roof (1/a301, and north part of the roof plan a202). I have no idea how to go about creating this. Any suggestions?
|
This user is offline |
|
 |
|
active
Joined: Wed, Oct 7, 2009
654 Posts
 |
You may need to create different roofs, then join them with the other roof tools. Where exactly are you talking about?
|
This user is offline |
|
 |
|
active
Joined: Mon, Mar 19, 2007
78 Posts No Rating |
I have attached two more files highlighting the areas in question
|
This user is offline |
|
 |
|
active
Joined: Wed, Oct 7, 2009
654 Posts
 |
That's what I thought you were talking about, but I just wanted to make sure. I would make those seperate roofs.
|
This user is offline |
|
 |
 |
Similar Threads |
|
***Attention ROOF expert*** need your help! |
Revit Building >> Technical Support
|
Sat, Feb 13, 2010 at 9:22:34 AM
|
6
|
|
Roof Rafters |
Revit Building >> Technical Support
|
Tue, Apr 8, 2008 at 2:41:45 PM
|
4
|
|
Roof Plan Issues- lower roof showing above upper roof |
Revit Building >> Technical Support
|
Thu, Dec 10, 2015 at 3:10:46 PM
|
2
|
|
Additional Roof will not attach to original roof |
Revit Building >> Technical Support
|
Fri, Jun 7, 2013 at 7:56:40 AM
|
5
|
|
problemed roof |
Revit Building >> Technical Support
|
Fri, Mar 23, 2007 at 5:12:30 PM
|
5
|
 |
|
Site Stats
Members: | 2161655 | Objects: | 23325 | Forum Posts: | 152479 | Job Listings: | 3 |
|