|
|
|
Home | Forums |
Downloads | Gallery |
News & Articles | Resources |
Jobs | FAQ |
| Join |
Welcome !
|
52 Users Online (50 Members):
Show Users Online
- Most ever was 626 - Mon, Jan 12, 2015 at 2:00:17 PM |
Forums
|
Forums >> Revit Building >> Technical Support >> TOPOGRAPHY PROBLEM
|
|
|
active
Joined: Sun, Nov 15, 2009
4 Posts No Rating |
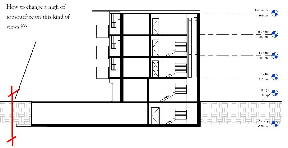
HELLO, I am prepering a project to my school, and I am heaving a problem with hight of topography. I made a screenshoot, to show what kind of problem I.ve got. Meaby you will be able to help me. THX
|
This user is offline |
|
 | |
|
|
site moderator|||
Joined: Tue, May 16, 2006
13079 Posts
 |
In 2010, from a plan view, pick the massing and site tab, then the lower right diagonal arrow - setting is the elevation of the poche base.
|
This user is offline |
|
 |
 |
Similar Threads |
|
TOPOGRAPHY SPLIT PROBLEM |
Revit Structure >> Technical Support
|
Mon, Sep 22, 2008 at 2:51:42 PM
|
4
|
|
problem pads and subregions , weird depression on topography |
Revit Building >> Technical Support
|
Sun, Mar 22, 2015 at 1:46:45 PM
|
7
|
|
Topography |
Revit Building >> Technical Support
|
Wed, Oct 19, 2016 at 6:19:21 AM
|
2
|
|
Topography dissapearing |
Revit Building >> Technical Support
|
Wed, Nov 7, 2012 at 2:46:15 PM
|
2
|
|
PADS dont cut the TOPOGRAPHY |
Revit Building >> Technical Support
|
Mon, Mar 10, 2014 at 8:12:14 AM
|
1
|
 |
|
Site Stats
Members: | 2161655 | Objects: | 23325 | Forum Posts: | 152479 | Job Listings: | 3 |
|