|
Forums >> Revit Building >> Technical Support >> Stepped Foundations walls dont show in view?
|
|
|
active
Joined: Sun, Sep 13, 2009
5 Posts No Rating |
I am drawing a foundation plan for a residential house with a stepped foundation wall and walkout basement. I do not seem to know how to view all of my foundation in my view. Any help would be much appreciated Thanks
|
This user is offline |
|
 |
|
|
|
active
Joined: Wed, Oct 7, 2009
654 Posts
 |
Have you tried setting your view depth to unlimited?
|
This user is offline |
|
 |
|
active
Joined: Sun, Sep 13, 2009
5 Posts No Rating |
Yes I have the detail I want still does not show.
Edited on: Tue, Nov 3, 2009 at 9:10:51 AM
|
This user is offline |
|
 |
|
site moderator|||
Joined: Tue, May 16, 2006
13079 Posts
 |
duckhuntermn - detail - plan - what are you using? You are confusing us. If plan, then set your view range - bottom & view depth - both to unlimited. Otherwise - make sure they are turned on in VG - structural foundations?
|
This user is offline |
|
 |
|
active
Joined: Sun, Sep 13, 2009
5 Posts No Rating |
I am using plan view from the top of my foundation at the garage to the bottom of my walkout footing is approx 12 feet and to get my garage foundation and walkout foundation i do not achieve a fluent detailing through out.. I have set both to unlimited but still they do not show in detail its either one or the other. I can email you if anyone would want to take a look. Thanks
Edited on: Tue, Nov 3, 2009 at 11:18:14 AM
|
This user is offline |
|
 |
|
site moderator|||
Joined: Tue, May 16, 2006
13079 Posts
 |
Sorry, but I do not understand what you are saying. Perhaps you should include a small image showing your problem.
|
This user is offline |
|
 |
|
active
Joined: Sun, Sep 13, 2009
5 Posts No Rating |
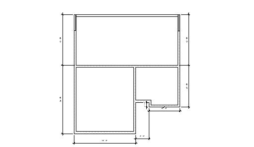
Here are two images. The first one you can see that the foundation block is not shown in detail. I have changed the view range multiple times to mulitple settings.. The second picture you can see how the foundation is working out.
|
This user is offline |
|
 |
|
site moderator|||
Joined: Tue, May 16, 2006
13079 Posts
 |
You wrote "...The first one you can see that the foundation block is not shown in detail." Do you mean you can't see the block as individual units? You won't! It appears that you have block walls and they show with a diagonal fill pattern which is pretty typical as a material indication.
|
This user is offline |
|
 |
|
active
Joined: Sun, Sep 13, 2009
5 Posts No Rating |
I am not looking for individual blocks, I am missing my 6" top course blocks around my garage and front of house and the hatch does not continue down the stepped wall. Any help would be much appreciated
|
This user is offline |
|
 |
|
site moderator|||
Joined: Tue, May 16, 2006
13079 Posts
 |
I'm sorry but you are still not clear. When you post here, remember, we don't know your project. Obviously, we don't know where the garage is, or where the 6" blocks should be because you don't point anything out. In addition, your image is so small that when opened in the browser, you can't even see the hatch. That being said, in order to see a wall hatched, the section must cut through the wall. Revit doesn't like short walls so play with your two depth settings. You might also look at plan regions.
|
This user is offline |
|
 |
|
|
|
active
Joined: Mon, May 9, 2011
0 Posts No Rating |
I am having the same problem as duckhuntermn. I have a walk-out basement houseplan and would like to show an independent foundation plan, because the basement floorplan is very busy and I want to separate the structural information from the architectural information. When you set your view range, there is no way to show all of the foundation in 1 view, because of the difference in the foundation heights from 1 level to another. I have tried a stepped plan detail cut, which shows all the concrete foundation that I want to show, but the corners of the wallsdo not clean up, even tho the walls are joined and mitered.
|
This user is offline |
|
 |
|
site moderator|||
Joined: Tue, May 16, 2006
13079 Posts
 |
If you set your view range to show everything, then what is the problem? A marked up image pointing out the problem would be helpfull.
Structural and architectural seperation can be achieved by the view properties if you have modeled correctly.
|
This user is offline |
|
 |
 |