RevitCity.com Logo

Home  |  Forums  |  Downloads  |  Gallery  |  News & Articles  |  Resources  |  Jobs  |  FAQ  |  SearchSearch  |  Join  |  LoginLogin

Welcome !

50 Users Online (48 Members): Show Users Online - Most ever was 626 - Mon, Jan 12, 2015 at 2:00:17 PM

 

Forums

Forums >> Revit Building >> Technical Support >> Parametric Conceptual Massing- Trapazoid (revit 2010)

Search this ThreadSearch this Thread | Page 1 of 1 |

Wed, Oct 28, 2009 at 2:45:02 PM | Parametric Conceptual Massing- Trapazoid (revit 2010)

#1

jsel13


active

Joined: Wed, Mar 5, 2008
67 Posts
5 Stars: 1 Votes


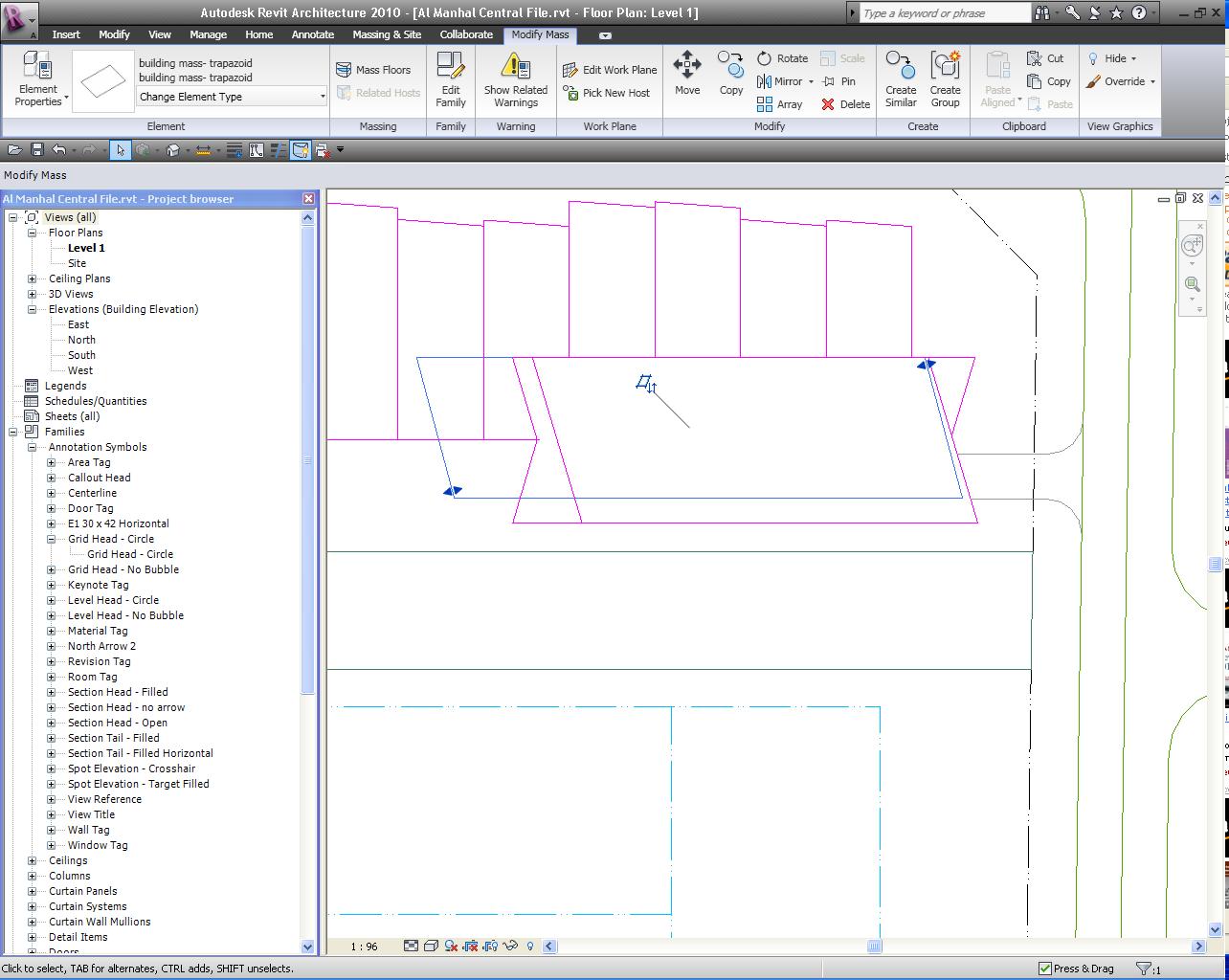
I'm doing a master plan and we have a few buildings that are in the shape of a trapazoid.  I'm trying to make a conceptual mass which is in the shape of a trapazoid that can be adjusted by pushing and pulling and snapping to my imported autocad drawing. 

seems easy enough, only i have been trying to figure out how to do it and i cant for some reason.  i'm drawing a blank.  

I've attached an image of a piece of the plan and my attempt at the mass. i cant get it to push and pull in all 4 directions, only 2.  anyone have any suggestions? id really appreciate it.

 

thanks!

 

 



Attached Images

68149_revit_image.JPG

This user is offline

 

Search this ThreadSearch this Thread | Page 1 of 1 |



Similar Threads

Thread/Thread Starter

Forum

Last Post

Replies

2010 Conceptual Massing and .sat files

Revit Building >> Technical Support

Fri, May 27, 2011 at 12:46:18 PM

10

conceptual massing...undulating roof shape

Revit Building >> Technical Support

Thu, Jun 24, 2010 at 3:01:55 PM

10

Revit 2010 massing, conceptual design and constraints restaining floor area

Revit Building >> Technical Support

Fri, May 22, 2009 at 8:55:36 AM

3

Conceptual Massing Problems

General Discussion >> Revit Project Management

Sun, Jun 28, 2015 at 10:22:44 AM

1

Conceptual Massing Loading Problem

Revit Building >> Technical Support

Thu, Sep 19, 2013 at 12:13:40 PM

1

Site Stats

Members:

2161655

Objects:

23325

Forum Posts:

152479

Job Listings:

3

Sponsored Ads

Home | Forums | Downloads | Gallery | News & Articles | Resources | Jobs | Search | Advertise | About RevitCity.com | Link To Us | Site Map | Member List | Firm List | Contact Us

Copyright 2003-2010 Pierced Media LC, a design company. All Rights Reserved.

Page generation time: 1.3986

Login

User Name:

Password:

Remember Me  

Forgot Password?

Search Forums

Advanced Search

Search Forums

Advanced Search


Clear Highlights


Clear Highlights