|
Forums >> Revit Building >> Technical Support >> Roof slope line incorrect
|
|
|
active

Joined: Tue, Jul 21, 2009
51 Posts
 |
Can someone tell me why this is dimensioning incorrectly? The roof properties show the roof slope is 6" in 12". Why does one elevation say the slope is 6" in 12" but the other one shows it as 4 1/2" in 12"? Help needed urgently!!
-----------------------------------
www.globaldesignstudio.com
Be Inspired! |
This user is offline |
View Website
|
 |
|
|
|
site moderator|||
Joined: Tue, May 16, 2006
13079 Posts
 |
Looks like one is a tag and the other is drafted. I don't believe the 4 1/4 because it sure looks like 6
|
This user is offline |
|
 |
|
active

Joined: Tue, Jul 21, 2009
51 Posts
 |
They are both slope arrows, I put them both on. Why I'm particularly puzzled is that it is the same roof being dimensioned. In one elevation it shows as 6 in 12, the other it shows as 4 1/2 in 12. Also attached is the section, where the top of the roof shows a different dimension to the bottom, even though they are both the same slope. Any other ideas?
-----------------------------------
www.globaldesignstudio.com
Be Inspired! |
This user is offline |
View Website
|
 |
|
site moderator|||
Joined: Tue, May 16, 2006
13079 Posts
 |
Show us the slope properties of your roof sketch
|
This user is offline |
|
 |
|
active

Joined: Tue, Jul 21, 2009
51 Posts
 |
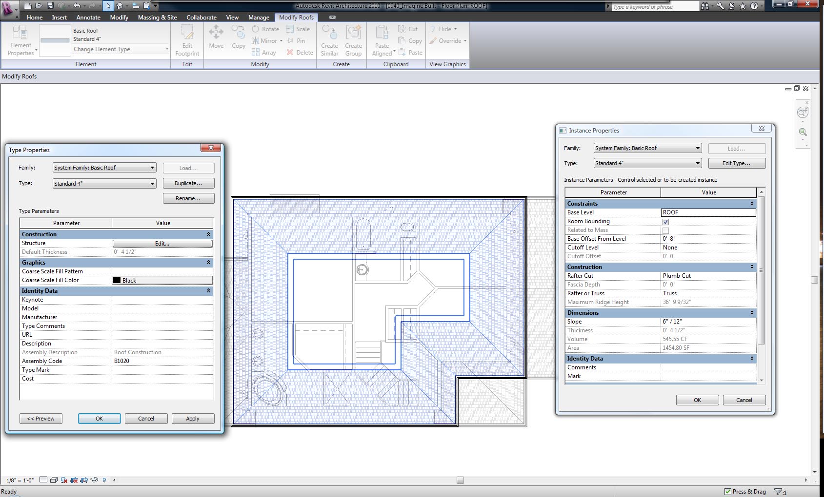
Here are the roof properties
-----------------------------------
www.globaldesignstudio.com
Be Inspired! |
This user is offline |
View Website
|
 |
|
site moderator|||
Joined: Tue, May 16, 2006
13079 Posts
 |
So .... at least one side is 6/12... did you check them all? I believe the 6/12 - I don't believe the 4 1/4 - 12 which you keep writing 4-1/2 - 12 but clearly says 4 1/4. BTW - is this all the same roof slope tag? No unit problems in the tag is there?
|
This user is offline |
|
 |
|
active

Joined: Mon, Feb 18, 2008
251 Posts
 |
Sometimes Revit finds the hip. Tab through and make sure you have the "rafter".
|
This user is offline |
View Website
|
 |
|
active

Joined: Tue, Jul 21, 2009
51 Posts
 |
Yes that seems to be it, thank you jarosa, if I hit tab it will switch between the 4 1/4 and 6. I couldn't figure out what would be 4 1/4, bt that makes sense,the hip. Thanks for your help too WWWHub!
-----------------------------------
www.globaldesignstudio.com
Be Inspired! |
This user is offline |
View Website
|
 |
|
active

Joined: Sun, Feb 17, 2008
197 Posts
 |
Nice Jarosa, have not ever thought of that...
-----------------------------------
J. Allen Ball Revit Architecture 2010 Certified Professional |
This user is offline |
|
 |
|
active

Joined: Tue, Feb 19, 2008
71 Posts
 |
Don't know why but it is right there, it is reading the default thickness of the structure of 4 1/2
|
This user is offline |
|
 |
 |
Similar Threads |
|
Wall Sweep ending at roof slope/roof line |
Revit Building >> Technical Support
|
Wed, Nov 21, 2007 at 11:07:34 PM
|
0
|
|
Roof slope not showing up correct |
Revit Structure >> Technical Support
|
Thu, Jul 11, 2013 at 10:37:30 AM
|
3
|
|
Default Roof Slope? |
Revit Building >> Technical Support
|
Fri, Jan 20, 2012 at 5:21:58 AM
|
3
|
|
Roof's wont slope :( |
Revit Building >> Technical Support
|
Mon, Apr 2, 2007 at 5:34:05 PM
|
4
|
|
Help slope tag showing wrong slope |
Revit Building >> Technical Support
|
Thu, Feb 27, 2014 at 8:21:23 PM
|
2
|
 |