RevitCity.com Logo

Home  |  Forums  |  Downloads  |  Gallery  |  News & Articles  |  Resources  |  Jobs  |  FAQ  |  SearchSearch  |  Join  |  LoginLogin

Welcome !

45 Users Online (43 Members): Show Users Online - Most ever was 626 - Mon, Jan 12, 2015 at 2:00:17 PM

 

Forums

Forums >> Revit Building >> Technical Support >> make exterioir wall different from interior- how?

Search this ThreadSearch this Thread | Page 1 of 1 |

Wed, Sep 2, 2009 at 5:36:19 PM | make exterioir wall different from interior- how?

#1

TrueNoob


active

Joined: Wed, Aug 19, 2009
4 Posts
No Rating


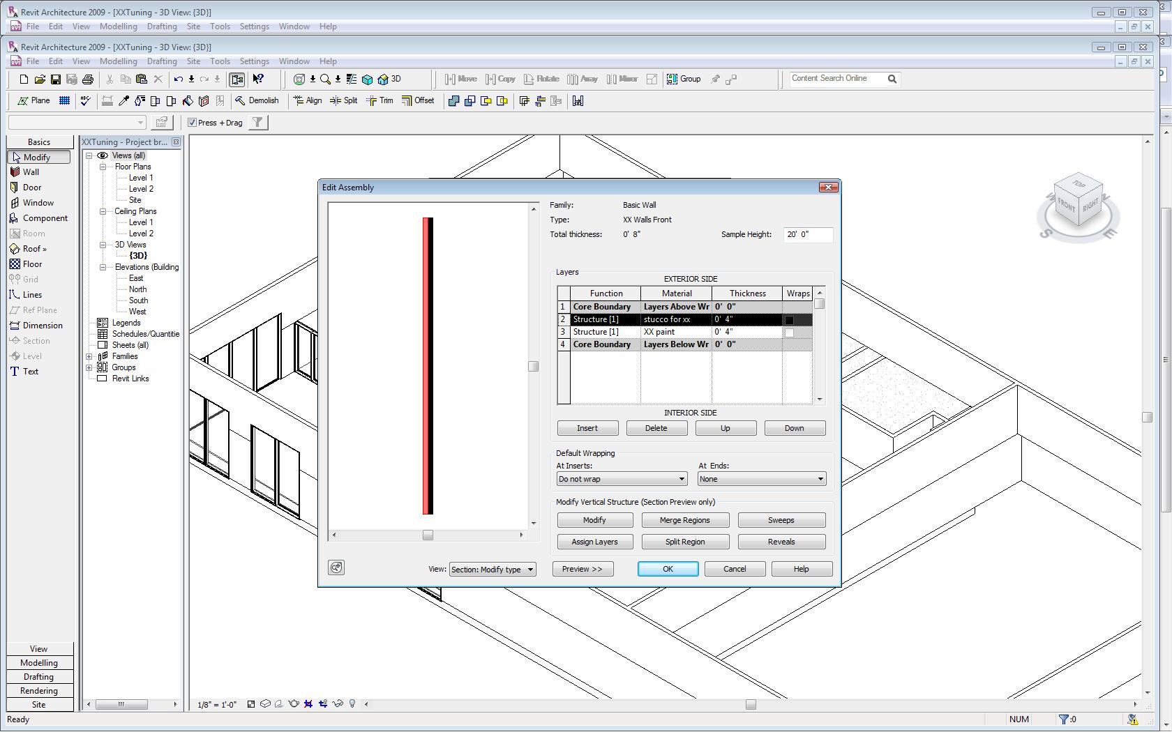
[IMG]http://i124.photobucket.com/albums/p35/TrueNoob/projectquestion2.jpg[/IMG]

[IMG]http://i124.photobucket.com/albums/p35/TrueNoob/projectquestion.jpg[/IMG]

 

my question is - how do i make the exterior appearence different from the interior? what did i do wrong?



Attached Images

65662_project_question.jpg65662_project_question_2.jpg

This user is offline

 

Wed, Sep 2, 2009 at 6:20:44 PM | make exterioir wall different from interior- how?

#2

TrueNoob


active

Joined: Wed, Aug 19, 2009
4 Posts
No Rating


figured it out. i just had to flip ext - int

This user is offline

 

Search this ThreadSearch this Thread | Page 1 of 1 |



Similar Threads

Thread/Thread Starter

Forum

Last Post

Replies

Maintaining interior dimensions when changing walls

Revit Building >> Technical Support

Mon, Mar 16, 2009 at 11:19:25 AM

4

interior walls in foundation

Revit Building >> Technical Support

Wed, Nov 8, 2006 at 11:32:49 AM

4

Exterior Render-Interior too dark!!

Revit Building >> Technical Support

Tue, May 4, 2010 at 7:31:50 AM

3

Wall interior finishes - new wall type or a better way?

Revit Building >> Technical Support

Tue, Mar 8, 2005 at 1:07:59 PM

3

Place interior wall

Community >> The Studio

Mon, May 8, 2006 at 12:23:21 PM

1

Site Stats

Members:

2161655

Objects:

23325

Forum Posts:

152479

Job Listings:

3

Sponsored Ads

Home | Forums | Downloads | Gallery | News & Articles | Resources | Jobs | Search | Advertise | About RevitCity.com | Link To Us | Site Map | Member List | Firm List | Contact Us

Copyright 2003-2010 Pierced Media LC, a design company. All Rights Reserved.

Page generation time: 3.0080

Login

User Name:

Password:

Remember Me  

Forgot Password?

Search Forums

Advanced Search

Search Forums

Advanced Search


Clear Highlights


Clear Highlights