|
|
|
Home | Forums |
Downloads | Gallery |
News & Articles | Resources |
Jobs | FAQ |
| Join |
Welcome !
|
30 Users Online (28 Members):
Show Users Online
- Most ever was 626 - Mon, Jan 12, 2015 at 2:00:17 PM |
Forums
|
Forums >> Revit Building >> Technical Support >> Problem with duplicating view as a dependant
|
|
|
active
Joined: Tue, Jan 20, 2009
35 Posts No Rating |
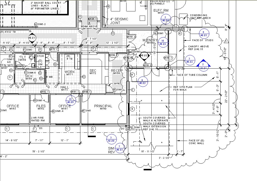
I seem to be having a problem. I'm working in 2009 and have a rather large file. I'm working on creating addendum items and when i go to duplicate the view as a dependant it shifts all my detail marks. It seems like it takes the bends out of them. I have attached a pic of the correct view, then what happeneds when I duplicate it. Please help... I don't know what to think.
|
This user is offline |
|
 | |
|
|
active
Joined: Tue, Jan 20, 2009
35 Posts No Rating |
Heres the right attachements.
|
This user is offline |
|
 |
|
site moderator|||
Joined: Tue, May 16, 2006
13079 Posts
 |
There is a much better way of doing addendum's than dependent views. First - archive your file for the record. Follow this thread to create a sketch overlay family. This places right overtop of your sheet. You edit the view - bubble it & tag the revision - then place this sketch which masks all except what you want to show. After printing, you can discard the sketch & your file is up to date. http://forums.augi.com/showthread.php?t=53492&highlight=addendum This works great ... it will take you awhile to figure out how the family works so that you can modify it with your titleblock. We use both 8.5x11 and 11x17 sketches.
|
This user is offline |
|
 |
 |
Similar Threads |
|
Dimension Visability in Dependant View |
Revit Building >> Technical Support
|
Wed, May 28, 2008 at 11:50:35 AM
|
5
|
|
Callouts & Dependant Views |
Revit Building >> Technical Support
|
Wed, Aug 13, 2008 at 5:41:41 PM
|
2
|
|
duplicating views without duplilcating callouts or view tags |
Revit Building >> Technical Support
|
Wed, Sep 11, 2013 at 3:09:15 PM
|
8
|
|
what are not shared between parent view and dependant view? |
General Discussion >> Revit Project Management
|
Wed, Dec 1, 2010 at 1:01:47 PM
|
1
|
|
My dependant elevation view tag will not show up in my dependant plan view |
Revit Building >> Technical Support
|
Tue, Jan 8, 2008 at 11:47:57 AM
|
0
|
 |
|
Site Stats
Members: | 2161655 | Objects: | 23325 | Forum Posts: | 152479 | Job Listings: | 3 |
|