|
|
|
Home | Forums |
Downloads | Gallery |
News & Articles | Resources |
Jobs | FAQ |
| Join |
Welcome !
|
26 Users Online (24 Members):
Show Users Online
- Most ever was 626 - Mon, Jan 12, 2015 at 2:00:17 PM |
Forums
|
Forums >> Revit Building >> Technical Support >> overlaying viewports on sheet?
|
|
|
active
Joined: Sat, Mar 7, 2009
9 Posts No Rating |
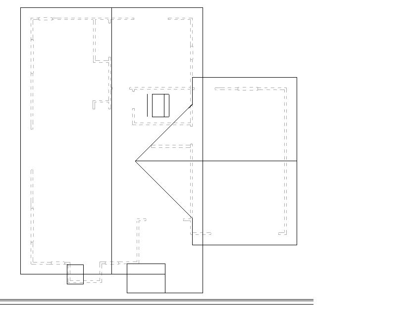
Hey All, I know that I read somewhere about overylaying views and pinning them together but cannot figure it out. I would have great flexability when doing structural drafting if I could overlay views as shown. Any help on aligning them and pinning them together? Thanks, Garrett
|
This user is offline |
|
 | |
|
|
active
Joined: Tue, Apr 24, 2007
104 Posts
 |
to accomplish this you don't have to overlay nothing, select all your walls and change discipline to structural combine, then on the floor plan, right click and on view properties change you view discipline to structural that should do it. let me know
|
This user is offline |
|
 |
|
active
Joined: Sat, Mar 7, 2009
9 Posts No Rating |
Thanks but that really didn't produce the result that I was looking for. My model is of a steep roofed house and a loft above the first story. I have to set my "view range" low enough to show my first floor walls and then high enough to show all of the roof. Of course this includes the loft walls as well. Even walls that I didn't change to "structural combined" showed up in my roof plan. In reality I am used to autocad. We make a drawing of the walls and then x-ref that into a sheet. Then add structural in the sheet. That makes it nice when using consultants. We send them the x-ref and they add their structural to that. What is the protocal in revit? Garrett
|
This user is offline |
|
 |
|
active
Joined: Tue, Apr 24, 2007
104 Posts
 |
I COULD NOT EXPLAINED GOOD I WAS AT WORK. SELECT ALL WALLS AND CHANGE DISCIPLINE TO STRUCTURAL COMBINE GO TO ROOF PLAN AND CHANGE THE VIEW DISCIPLINE TO STRUCTURAL THIS IS GOING TO LET YOU SEE THE WALLS AS HIDDEN LINES IN ROOF PLAN AS YOU WISH.
I ALWAYS DO THIS AND IT HAPPENS. IF YOU ARE HAVE PROBLEMS UNDERSTANDING. GO TO YOUR ROOF PLANS AND IN VIEW PROPERTIES ON UNDERLAYMENT SET IT TO YOUR LOWER FLOOR. ONCE YOU THAT USE YOUR HIDDEN LINE AND SELECT ANY LINES TO CHANGE IT TO HIDDEN.
|
This user is offline |
|
 |
 |
Similar Threads |
|
Viewports orginizing on sheet |
Revit Building >> Technical Support
|
Mon, Apr 18, 2016 at 10:45:14 AM
|
2
|
|
Getting viewports to stack |
Revit Building >> Technical Support
|
Thu, Mar 29, 2007 at 10:13:07 AM
|
2
|
|
sheet organization |
Revit Building >> Technical Support
|
Fri, Mar 4, 2005 at 8:19:26 PM
|
2
|
|
Help please with my viewports |
Revit Building >> Technical Support
|
Mon, Aug 12, 2013 at 12:29:17 PM
|
2
|
|
Aligning Sheets (Titles, Viewports, ETC.) HELP! |
Community >> The Studio
|
Tue, Mar 11, 2008 at 1:25:09 AM
|
2
|
 |
|
Site Stats
Members: | 2161655 | Objects: | 23325 | Forum Posts: | 152479 | Job Listings: | 3 |
|