|
|
|
Home | Forums |
Downloads | Gallery |
News & Articles | Resources |
Jobs | FAQ |
| Join |
Welcome !
|
37 Users Online (35 Members):
Show Users Online
- Most ever was 626 - Mon, Jan 12, 2015 at 2:00:17 PM |
Forums
|
Forums >> Revit Building >> Technical Support >> WINDOW ISSUE
|
|
|
active
Joined: Fri, Feb 9, 2007
56 Posts No Rating |
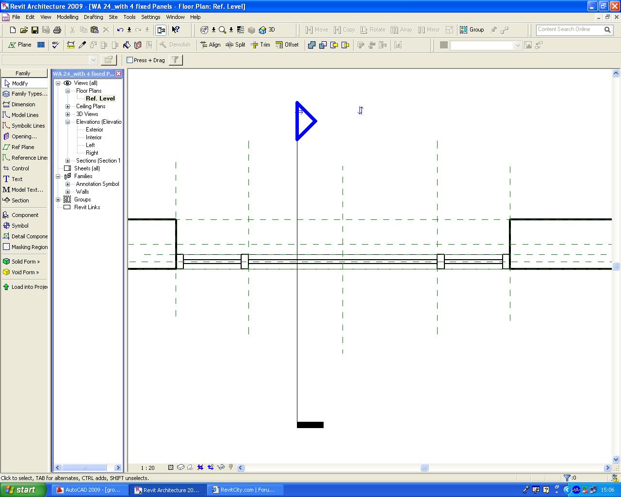
Hi all, please have look at my window, in family in plan view its looking ok, but when i load into project the cutting plan is always on top (i need to cut it below the arch in plan view) though i changed cut plane in view range its not changing. Could any one help me to solve this issue? i attached images of window plan view in project plan and family. push
Edited on: Wed, Apr 15, 2009 at 6:17:43 AM
|
This user is offline |
|
 | |
|
|
site moderator|||

Joined: Tue, May 22, 2007
5921 Posts
 |
Like you can see in the image, put off those elements in the family (glass and frame in the top)....
-----------------------------------
I Hope and I Wish to LEARN more, and more, and more.... REVIT |
This user is offline |
|
 |
|
active
Joined: Fri, Feb 9, 2007
56 Posts No Rating |
thank you typhoon its working fine now.............
|
This user is offline |
|
 |
|
site moderator|||

Joined: Tue, May 22, 2007
5921 Posts
 |
You Welcome...
-----------------------------------
I Hope and I Wish to LEARN more, and more, and more.... REVIT |
This user is offline |
|
 |
 |
Similar Threads |
|
wall disappears when placing window!!! |
Revit Building >> Technical Support
|
Fri, Sep 14, 2012 at 6:43:39 AM
|
8
|
|
Window Family issue - Revit 2012 |
Revit Building >> Technical Support
|
Sun, Jun 12, 2011 at 11:12:58 AM
|
4
|
|
Window Trim overlap issue help? |
Revit Building >> Technical Support
|
Tue, Nov 13, 2007 at 2:53:11 PM
|
4
|
|
existing - new consdtruction issue |
Revit Building >> Technical Support
|
Mon, Mar 21, 2011 at 4:17:47 PM
|
3
|
|
Dual monitors- Child window issue |
Revit Building >> Technical Support
|
Tue, Dec 15, 2009 at 8:44:32 AM
|
1
|
 |
|
Site Stats
Members: | 2161655 | Objects: | 23325 | Forum Posts: | 152479 | Job Listings: | 3 |
|