RevitCity.com Logo

Home  |  Forums  |  Downloads  |  Gallery  |  News & Articles  |  Resources  |  Jobs  |  FAQ  |  SearchSearch  |  Join  |  LoginLogin

Welcome !

59 Users Online (57 Members): Show Users Online - Most ever was 626 - Mon, Jan 12, 2015 at 2:00:17 PM

 

Forums

Forums >> Revit Building >> Technical Support >> When mirror why dimension won't stay the same

Search this ThreadSearch this Thread | Page 1 of 1 |

Thu, Mar 12, 2009 at 4:13:42 PM | When mirror why dimension won't stay the same

#1

Needwiz


active
Needwiz Avatar

Joined: Fri, Aug 24, 2007
50 Posts
No Rating


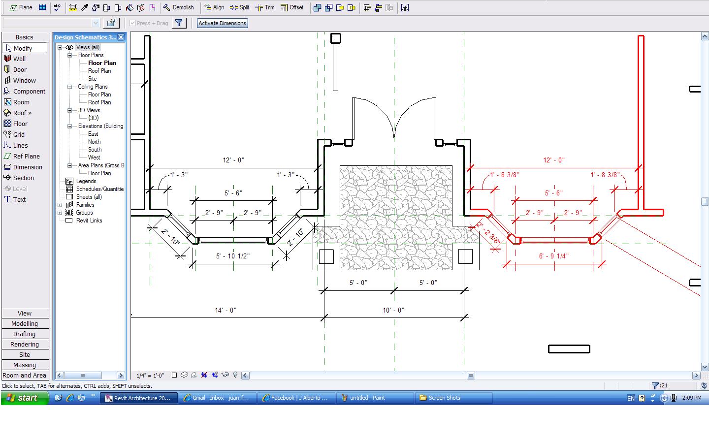
Whenever I mirror objects with dimension the dimensions changes their orignal snap point. Any idea why? See creen shots

Attached Images

55011_Mirroring_1.JPG55011_Mirroring_2.JPG55011_Mirroring_3.JPG

This user is offline

 

Fri, Mar 13, 2009 at 4:42:26 PM | When mirror why dimension won't stay the same

#2

Needwiz


active
Needwiz Avatar

Joined: Fri, Aug 24, 2007
50 Posts
No Rating


Can anyone comment on a solution or it is something the has to be done manually?

This user is offline

 

Search this ThreadSearch this Thread | Page 1 of 1 |



Similar Threads

Thread/Thread Starter

Forum

Last Post

Replies

Extrusion Won't Mirror

General Discussion >> Revit Project Management

Mon, Sep 27, 2010 at 4:40:33 PM

2

HELP... need to mirror a plan

Revit Building >> Technical Support

Wed, Jul 2, 2008 at 12:27:55 PM

12

Dims

Revit Building >> Technical Support

Thu, Nov 17, 2005 at 9:52:10 PM

1

Dimension line, line weights won't change

Revit Building >> Technical Support

Tue, May 26, 2009 at 6:54:21 PM

2

using the mirror comand [ 1 2 ]

General Discussion >> Wishlist

Thu, Oct 15, 2009 at 9:13:36 AM

17

Site Stats

Members:

2161655

Objects:

23325

Forum Posts:

152479

Job Listings:

3

Sponsored Ads

Home | Forums | Downloads | Gallery | News & Articles | Resources | Jobs | Search | Advertise | About RevitCity.com | Link To Us | Site Map | Member List | Firm List | Contact Us

Copyright 2003-2010 Pierced Media LC, a design company. All Rights Reserved.

Page generation time: 4.4113

Login

User Name:

Password:

Remember Me  

Forgot Password?

Search Forums

Advanced Search

Search Forums

Advanced Search


Clear Highlights


Clear Highlights