RevitCity.com Logo

Home  |  Forums  |  Downloads  |  Gallery  |  News & Articles  |  Resources  |  Jobs  |  FAQ  |  SearchSearch  |  Join  |  LoginLogin

Welcome !

40 Users Online (38 Members): Show Users Online - Most ever was 626 - Mon, Jan 12, 2015 at 2:00:17 PM

 

Forums

Forums >> Revit Building >> Technical Support >> problems with metal roof surface pattern

Search this ThreadSearch this Thread | Page 1 of 1 |

Tue, Mar 10, 2009 at 2:02:45 AM | problems with metal roof surface pattern

#1

stankovic


active
stankovic Avatar

Joined: Tue, Dec 30, 2008
49 Posts
4.5 Stars: 7 Votes


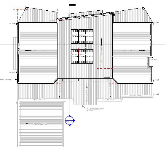
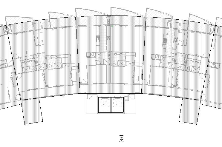
For some reason when I rotate view on the sheet, roof surface pattern (metal roof) does not rotate and stays in the same position as it was before rotation. Also same problem with this second roof, pattern is not following the rotation of the roof. Have a look at these attachments and let me know how can this be fixed? Thanks 



Attached Images

54744_Metal_roof_patern.jpg54744_rotated_view.jpg54744_As_it_should_be.jpg

This user is offline

 

Search this ThreadSearch this Thread | Page 1 of 1 |



Similar Threads

Thread/Thread Starter

Forum

Last Post

Replies

Sloped roof surface pattern grayed.....Revit 2015

Revit Building >> Technical Support

Thu, Jan 15, 2015 at 1:48:15 PM

4

Surface pattern problem

Revit Building >> Technical Support

Tue, May 18, 2010 at 9:15:56 AM

3

Surface pattern move/align/adjust problems [ 1 2 ]

Revit Building >> Technical Support

Thu, Sep 17, 2020 at 10:29:33 AM

19

Surface Pattern Problems - Basic Roof

Revit Building >> Technical Support

Fri, May 2, 2008 at 2:41:11 PM

6

Surface pattern problems

Revit Building >> Technical Support

Sat, Jul 23, 2011 at 8:29:46 PM

5

Site Stats

Members:

2161655

Objects:

23325

Forum Posts:

152479

Job Listings:

3

Sponsored Ads

Home | Forums | Downloads | Gallery | News & Articles | Resources | Jobs | Search | Advertise | About RevitCity.com | Link To Us | Site Map | Member List | Firm List | Contact Us

Copyright 2003-2010 Pierced Media LC, a design company. All Rights Reserved.

Page generation time: 1.8221

Login

User Name:

Password:

Remember Me  

Forgot Password?

Search Forums

Advanced Search

Search Forums

Advanced Search


Clear Highlights


Clear Highlights