RevitCity.com Logo

Home  |  Forums  |  Downloads  |  Gallery  |  News & Articles  |  Resources  |  Jobs  |  FAQ  |  SearchSearch  |  Join  |  LoginLogin

Welcome !

38 Users Online (36 Members): Show Users Online - Most ever was 626 - Mon, Jan 12, 2015 at 2:00:17 PM

 

Forums

Forums >> Revit Building >> Technical Support >> Revit MEP: Pipes not showing up in floor plans ??

Search this ThreadSearch this Thread | Page 1 of 1 |

Fri, Dec 5, 2008 at 4:14:12 PM | Revit MEP: Pipes not showing up in floor plans ??

#1

jawii


active

Joined: Sat, Oct 25, 2008
22 Posts
No Rating


Hi!

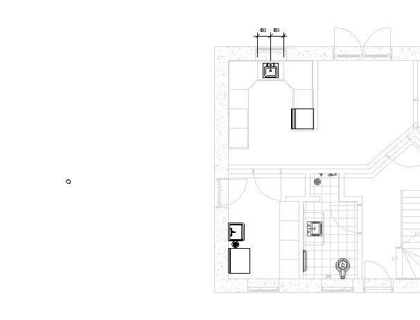
 I've just started a sanitary system, but somehow I can't see my piping in any of my floor plans or elevations, they do show up in 3D view ??

And YES, I've checked the view range, and all the other view properties, and everything seems as it should be.

Any ideas ?

 Thx

/jw



Attached Images

49339_3D_view.jpg49339_floorplan.jpg

This user is offline

 

Mon, Feb 2, 2009 at 12:04:19 PM | Revit MEP: Pipes not showing up in floor plans ??

#2

gr0412


active

Joined: Mon, Oct 27, 2008
3 Posts
No Rating


the only thing i can think of is you forgot to set the view discipline to plumbing. Try that

This user is offline

 

Search this ThreadSearch this Thread | Page 1 of 1 |



Similar Threads

Thread/Thread Starter

Forum

Last Post

Replies

Can we convert lines to pipes? (Revit MEP)

Revit Systems >> Technical Support

Tue, Aug 28, 2007 at 9:26:18 AM

3

NEED HELP with Revit MEP - pipes obscured by connector "halo" on plan views

Revit Building >> Technical Support

Tue, Jul 14, 2009 at 10:02:59 AM

1

can't "reach" pipes (revit MEP)

Revit Systems >> Technical Support

Wed, Dec 21, 2011 at 6:24:35 PM

3

REVIT MEP 2012 Demo Phasing Disconnecting Pipes

Revit Building >> Technical Support

Wed, Jul 18, 2012 at 12:20:02 PM

1

pipes won't show up...

Revit Building >> Technical Support

Mon, Jun 15, 2009 at 1:36:08 PM

1

Site Stats

Members:

2161655

Objects:

23325

Forum Posts:

152479

Job Listings:

3

Sponsored Ads

Home | Forums | Downloads | Gallery | News & Articles | Resources | Jobs | Search | Advertise | About RevitCity.com | Link To Us | Site Map | Member List | Firm List | Contact Us

Copyright 2003-2010 Pierced Media LC, a design company. All Rights Reserved.

Page generation time: 1.8850

Login

User Name:

Password:

Remember Me  

Forgot Password?

Search Forums

Advanced Search

Search Forums

Advanced Search


Clear Highlights


Clear Highlights