|
|
|
Home | Forums |
Downloads | Gallery |
News & Articles | Resources |
Jobs | FAQ |
| Join |
Welcome !
|
72 Users Online (70 Members):
Show Users Online
- Most ever was 626 - Mon, Jan 12, 2015 at 2:00:17 PM |
Forums
|
Forums >> Community >> Newbies >> complicated/complex driveway
|
|
|
active
Joined: Thu, Jan 10, 2008
8 Posts No Rating |
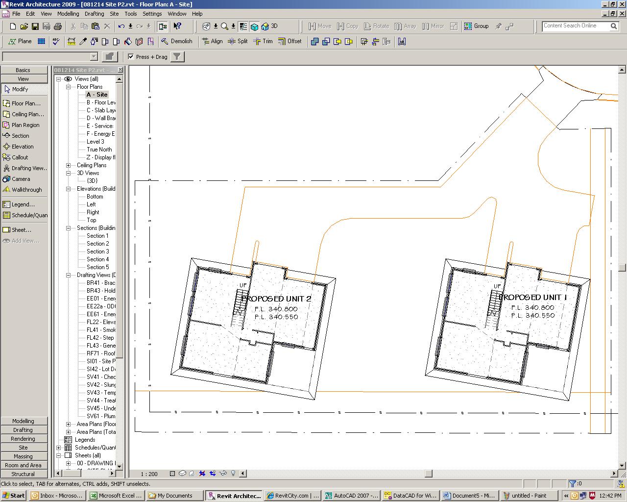
Hi All. New to revit and i'm trying to produce a complicated driveway on a sloping site, also need to have a 100 nib on some parts of the driveway. Note I need alot of fill on the site aswell, to get above flood level, so site will look like the rolling hills when i'm done. See attachment for site layout. What is the best way to do this. Cheers & beers Kat
|
This user is offline |
|
 | |
|
|
active
Joined: Tue, Oct 31, 2006
127 Posts
 |
I think just the standard tools:- ie use of pads, retaining walls, sub-regions to represent the surface types, etc. Regards, Ian
-----------------------------------
www.RevitZone.com News / Articles / Tutorials / Forums / Beginners Guide to Revit |
This user is offline |
View Website
|
 |
 |
Similar Threads |
|
DRIVEWAY APRON? |
General Discussion >> Wishlist
|
Thu, Oct 27, 2005 at 11:16:46 AM
|
7
|
|
how to make double curve surface of driveway |
Revit Building >> Technical Support
|
Sun, Jul 2, 2023 at 5:50:05 AM
|
1
|
|
Driveway curbs |
Revit Building >> Tips & Tricks
|
Fri, Nov 18, 2005 at 4:47:10 PM
|
1
|
|
is it possible to create an angled cut plane? |
Revit Building >> Technical Support
|
Mon, Jan 25, 2010 at 8:03:26 PM
|
0
|
|
driveways and sidewalks |
Revit Building >> Technical Support
|
Wed, Apr 19, 2006 at 10:22:00 PM
|
0
|
 |
|
Site Stats
Members: | 2161655 | Objects: | 23325 | Forum Posts: | 152479 | Job Listings: | 3 |
|